WEIDA Immobilien

Herr Siegmar WEIDA

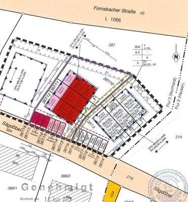
SOFORT bebaubares Baugrundstück mit ca. 804 m² - mit Baugenehmigung für 3 Reihenhäuser in Murrhardt!

€ 225.000
Kaufpreis
804 m²
Grundstücksfl. ca.

Der Anbieter dieses Objekts hat gegenüber der AVIV Germany GmbH als Betreiber dieses Online-Marktplatzes erklärt, nicht als Unternehmer im Sinne des § 1 KSchG zu handeln. Die im Verbraucherschutzrecht der Union verankerten Verbraucherrechte (insbesondere Informationspflichten und Rücktritts- bzw. Widerrufsrechte) finden auf den Vertrag zwischen dem Anbieter des Objekts und Ihnen (dem Interessenten) keine Anwendung.

Provisionsfrei
Gewerblicher Anbieter

Der Anbieter dieses Objekts hat gegenüber der AVIV Germany GmbH als Betreiber dieses Online-Marktplatzes erklärt, als Unternehmer im Sinne des § 1 KSchG zu handeln.

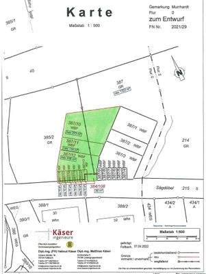
AdresseSägdöbel 33
71540 Murrhardt 
Auf Karte ansehen

Preise & Kosten

Kaufpreis € 225.000 Preis/m² € 280

Provision für Käufer

provisionsfrei

Lage

In Murrhardt, in einer kaum befahrenen Seiten- und Anlieger-Straße gelegen, Stadtrand-Lage, direkt neben Wald und Wiesen - gleich im Anschluss "Natur Pur"!

Das Grundstück

  • Grundstücksnutzung: Wohnen
  • bebaubar nach Bebauungsplan, Baugenehmigung vorhanden
  • teilweise erschlossen

Details

Objektbeschreibung

SOFORT bebaubares Grundstück mit ca. 804 m² - Naturnah leben - angrenzend zu Wald und Wiesen - in 71540 Murrhardt!

Die wichtigsten Eckdaten hierfür sind:

- Real geteilte Einzelgrundstücke, sind bis zur Grundstücksgrenze voll erschlossen.
- Alle 3 Grundstücke sind grundbuchmäßig nicht belastet.
- Jedes...

Mehr anzeigen

Weitere Informationen

Stichworte
Stadtrandlage, Keine Makler- und Vermittlungs-Provision!

Anbieter der Immobilie

WEIDA Immobilien

Winnender Straße 9, 71404 Korb

user

Herr Siegmar WEIDA

Dein Ansprechpartner

Anbieter-Website Anbieter-Profil Anbieter-Impressum

Online-ID: 2mhzs5k

Referenznummer: 673#cR7syh

Finde Angebote wie dieses

imageimageimage

Hier geht es zu unserem Impressum, den Allgemeinen Geschäftsbedingungen, den Hinweisen zum Datenschutz und nutzungsbasierter Online-Werbung.