


1 / 14



1 / 14
Wohnung zum Kauf - Erstbezug335000 €335.000 €8.225 €/m²2 Zimmer • 40,7 m² • 5. Geschoss
335000 €335.000 €
8.225 €/m²
2 Zimmer • 40,7 m² • 5. Geschoss
"DONAU PERLE" ERSTBEZUG! HELLE 2-ZIMMER IM DACHGESCHOSS MIT SONNENBALKON UND PARKBLICK!
"DONAU PERLE" - IHR WOHNTRAUM MIT MEHRWERT
Willkommen in Floridsdorf - hier entsteht ein Zuhause, das weit mehr ist als nur vier Wände. Ein Ort zum Wohlfühlen, Durchatmen und Ankommen. Dieses innovative Neubauprojekt vereint modernen urbanen Lifestyle mit der Ruhe und Schönheit der Natur - eine außergewöhnliche Kombination, die Wohnqualität auf höchstem Niveau garantiert.
Ob beim Einkaufsbummel am traditionsreichen Floridsdorfer Markt oder im Einkaufszentrum SCN, bei erholsamen Stunden an der Alten oder Neuen Donau, sportlichen Aktivitäten am Golfplatz, auf den Padelplätzen oder im Schwimmbad, oder bei einem Glas Wein in den idyllischen Kellergassen von Stammersdorf - all dies befindet sich in unmittelbarer Nähe. Eine hervorragende Infrastruktur, die exzellente Verkehrsanbindung inner- und außerhalb Wiens sowie die naturnahe Umgebung machen diesen Standort besonders attraktiv.
Die 34 Eigentumswohnungen sind individuell durchdacht und bieten Freiflächen wie Gärten, Loggien, Balkone oder Terrassen. Mit Größen zwischen 42 und 105 m² (2 bis 4 Zimmer) verbinden sie zeitgemäßen Wohnkomfort mit höchsten Ansprüchen.
BESONDERHEITEN, DIE BEGEISTERN
Nachhaltig leben:
* Energieeffiziente Heizung und Warmwasseraufbereitung über Sole-Wasser-Wärmepumpen aus Erdwärme
* Photovoltaikanlage, die einen erheblichen Teil des allgemeinen Stromverbrauchs abdeckt
* Vollwärmeschutz und innovative Technik, wie Betonkernaktivierung
Komfort genießen:
* Geräuschlose Deckenkühlung und Vorbereitung für zusätzliche Klimatisierung in den Dachgeschoßen
* Große, bodentiefe Fensterfronten und lichtdurchflutete Räume
* Hochwertige Materialien, präzise Verarbeitung, zeitloses Design
Sicherheit & Individualität:
* Planen und bauen - alles aus einer Hand. Und das auf höchstem Niveau
* Sie profitieren von maximaler Transparenz, Sicherheit und Qualität
* Sonderwünsche bei Ausstattung und Grundriss können, soweit technisch möglich, berücksichtigt werden - ein weiterer Vorteil für Schnellentschlossene!
TIEFGARAGE MIT 14 STELLPLÄTZEN SAMT E-LADESTATIONEN
Ein Stellplatz kann bei Bedarf zusätzlich erworben werden.
ERSTBEZUG! MODERNE 2-ZIMMER-WOHNUNG MIT BALKON UND TRAUMHAFTEM PARKBLICK!
Diese außergewöhnliche 2-Zimmer-Wohnung im 1. Dachgeschoss überzeugt durch ihren großzügigen Grundriss und dem Balkon. Die beiden lichtdurchfluteten Räume mit bodentiefen, hellen Fensterfronten schaffen ein Ambiente voller Komfort und bieten ein bemerkenswertes Maß an Lebensqualität.
* geräumige Wohn- Küche mit Fenster und direktem Ausgang zum herrlichen Balkon
* elegantes Badezimmer mit Walk-in-Dusche, Toilette und Fenster
* Gäste-WC
* zentraler Vorraum
* ruhiges Masterbedroom mit En-Suite-Bad
AUSSTATTUNG FÜR HÖCHSTE ANSPRÜCHE
* Fußbodenheizung und Deckenkühlung für ein perfektes Raumklima
* außenliegenden, elektrischen Raffstores zur Beschattung & Verdunkelung
* 3-fach verglaste Wärmeschutzfenster mit Aludeckschale
* Loggia mit Glasgeländer und Edelstahlprofilen
* exklusive Innentüren (flächenbündig mit Holzzarge)
* Mehrschicht-Parkettböden - Eichen Landhausdielen
* hochwertige Sanitärausstattung (u.a. Laufen Kartell, Laufen Lua)
* Regendusche
* exklusiver Handtuchheizkörper
* bodenebene Walk-in-Dusche mit Echtglas-Trennwand
* hochqualitative, italienische, großflächige Fliesen (60x60 cm) aus Feinsteinzeug
* einbruchshemmende Sicherheitstüre (WK III)
* Video-Gegensprechanlage
URBANE WOHNOASE AM PARK - IN DONAUNÄHE - MIT PERFEKTER VERKEHRSANBINDUNG UND INFRASTUKTUR
Das Wohnprojekt befindet sich in einer Toplage im zentralen Herzen von Floridsdorf. Dieser Bezirk ist bekannt für seine angenehme Mischung aus urbanem Flair und grünen Rückzugsorten, was ihn zu einer der begehrtesten Wohngegenden in Wien macht.
Hier wohnen Sie zentral und dennoch dem Grünen so nah. Alles, was Sie brauchen, liegt in fußläufiger Entfernung: öffentliche Verkehrsmittel, Markt, Einkaufszentrum, Möbelhäuser, Baumarkt, Restaurants, Schulen, Ärzte und Parks.
Die Straßenbahnen 25, 26, 30, 31, 33 und der Bus 36a befinden sich fast vor der Haustüre. So erreichen Sie in wenigen Minuten den Bahnhof Floridsdorf (U-Bahnlinie U6, div. S-Bahn, Regionalzüge) sowie die Alte und Neue Donau und gelangen mit der Straßenbahn 31 rasch und ohne Umsteigen direkt in die Wiener Innenstadt oder ins Weinbaugebiet Stammersdorf. Die Straßenbahnlinie 26 ist die perfekte Verbindung zwischen dem 21. und 22. Bezirk und bietet somit eine direkte Anbindung an die Vienna International School, die Japanische Internationale Schule, die veterinärmedizinische Universität und den Campus Donaufeld. Mit der Schnellbahn vom Bahnhof Floridsdorf erreichen sie auch ohne Umsteigen den Flughafen Wien. Es gibt wahrscheinlich keinen Standort der eine bessere öffentliche Verkehrsanbindung in und rund um Wien anbietet.
Die Nähe zu A22, B3 und B7 sorgt für optimale Anbindung in alle Richtungen.
Zahlreiche Kindergärten, Schulen und Spielplätze bieten Familien hervorragende Bildungs- und Freizeitmöglichkeiten.
Die Umgebung bietet ideale Voraussetzungen für Erholungssuchende, Familien, Hundebesitzer und sportlich Aktive. Neben zahlreichen Parks, Sportvereinen und Fitnessstudios überzeugt insbesondere die Nähe zur Alten und Neuen Donau: Hier erwarten Sie der Floridsdorfer Wasserpark, das Angelibad sowie die weitläufige Erholungslandschaft der Donauinsel. Auch der Marco Polo Golfplatz und moderne Padelplätze sind mit dem Bus in rund 20 Minuten bequem erreichbar. Darüber hinaus befindet sich das Floridsdorfer Hallenbad mit angeschlossener Sauna in fußläufiger Entfernung.
FINANZIERUNGSSERVICE - IHRE WUNSCHIMMOBILIE OPTIMAL FINANZIERT
Unsere Finanzierungsexperten vergleichen unabhängig & unverbindlich die besten Kreditangebote für Sie - und helfen Ihnen, Zeit und Geld zu sparen.
Die Aufstellung der verfügbaren Wohneinheiten samt Kaufpreisen finden Sie auch in entsprechenden pdf-Datei.
Senden Sie uns Ihre Anfrage per Mail und Sie erhalten umgehend alle detaillierten Informationen samt Plänen zu diesem Projekt.
Für etwaige Rückfragen stehen wir Ihnen selbstverständlich jederzeit auch gerne telefonisch zur Verfügung.
ON REQUEST YOU WILL GET ANY INFORMATION IN ENGLISH!
?? ??????? ?? ??????????? ??? ?????????? ?? ???????!
_Alle Angaben basieren alleinig auf Informationen, die uns von unserem Auftraggeber übermittelt wurden. Trotz aller Sorgfalt können wir für die Richtigkeit, Vollständigkeit und Aktualität dieser Angaben keine Gewähr übernehmen. Jegliche Weitergabe der übermittelten Daten an Dritte ist nicht gestattet. Der Maklervertrag kommt durch schriftliche Vereinbarung oder Inanspruchnahme unserer Maklertätigkeit zustande. Der Makler kann als Doppelmakler tätig werden. Sollte das von uns nachgewiesene Objekt bereits bekannt sein, teilen sie uns dies bitte unverzüglich mit._
_Das Vermittlungshonorar ist ausschließlich bei Zustandekommen eines gültigen Rechtsgeschäfts fällig und vom Käufer an Novel Real Immobilien GmbH zu zahlen. Es wird ausdrücklich auf die Nebenkostenübersicht hingewiesen. Bei den Visualisierungen und Abbildungen der Immobilie (insbesondere von Inneneinrichtungen) kann es sich um Symbolfotos bzw. fototechnisch optimierte Fotos handeln._
_Hiermit weisen wir auf das Bestehen eines familiären und/oder wirtschaftlichen Naheverhältnisses zum Verkäufer hin_
Infrastruktur / Entfernungen
Gesundheit
Arzt <500m
Apotheke <500m
Klinik <1.000m
Krankenhaus <1.000m
Kinder & Schulen
Schule <500m
Kindergarten <500m
Universität <1.500m
Höhere Schule <1.000m
Nahversorgung
Supermarkt <500m
Bäckerei <500m
Einkaufszentrum <500m
Sonstige
Geldautomat <500m
Bank <500m
Post <500m
Polizei <1.000m
Verkehr
Bus <500m
U-Bahn <1.000m
Straßenbahn <500m
Bahnhof <500m
Autobahnanschluss <500m
Angaben Entfernung Luftlinie / Quelle: OpenStreetMap
Willkommen in Floridsdorf - hier entsteht ein Zuhause, das weit mehr ist als nur vier Wände. Ein Ort zum Wohlfühlen, Durchatmen und Ankommen. Dieses innovative Neubauprojekt vereint modernen urbanen Lifestyle mit der Ruhe und Schönheit der Natur - eine außergewöhnliche Kombination, die Wohnqualität auf höchstem Niveau garantiert.
Ob beim Einkaufsbummel am traditionsreichen Floridsdorfer Markt oder im Einkaufszentrum SCN, bei erholsamen Stunden an der Alten oder Neuen Donau, sportlichen Aktivitäten am Golfplatz, auf den Padelplätzen oder im Schwimmbad, oder bei einem Glas Wein in den idyllischen Kellergassen von Stammersdorf - all dies befindet sich in unmittelbarer Nähe. Eine hervorragende Infrastruktur, die exzellente Verkehrsanbindung inner- und außerhalb Wiens sowie die naturnahe Umgebung machen diesen Standort besonders attraktiv.
Die 34 Eigentumswohnungen sind individuell durchdacht und bieten Freiflächen wie Gärten, Loggien, Balkone oder Terrassen. Mit Größen zwischen 42 und 105 m² (2 bis 4 Zimmer) verbinden sie zeitgemäßen Wohnkomfort mit höchsten Ansprüchen.
BESONDERHEITEN, DIE BEGEISTERN
Nachhaltig leben:
* Energieeffiziente Heizung und Warmwasseraufbereitung über Sole-Wasser-Wärmepumpen aus Erdwärme
* Photovoltaikanlage, die einen erheblichen Teil des allgemeinen Stromverbrauchs abdeckt
* Vollwärmeschutz und innovative Technik, wie Betonkernaktivierung
Komfort genießen:
* Geräuschlose Deckenkühlung und Vorbereitung für zusätzliche Klimatisierung in den Dachgeschoßen
* Große, bodentiefe Fensterfronten und lichtdurchflutete Räume
* Hochwertige Materialien, präzise Verarbeitung, zeitloses Design
Sicherheit & Individualität:
* Planen und bauen - alles aus einer Hand. Und das auf höchstem Niveau
* Sie profitieren von maximaler Transparenz, Sicherheit und Qualität
* Sonderwünsche bei Ausstattung und Grundriss können, soweit technisch möglich, berücksichtigt werden - ein weiterer Vorteil für Schnellentschlossene!
TIEFGARAGE MIT 14 STELLPLÄTZEN SAMT E-LADESTATIONEN
Ein Stellplatz kann bei Bedarf zusätzlich erworben werden.
ERSTBEZUG! MODERNE 2-ZIMMER-WOHNUNG MIT BALKON UND TRAUMHAFTEM PARKBLICK!
Diese außergewöhnliche 2-Zimmer-Wohnung im 1. Dachgeschoss überzeugt durch ihren großzügigen Grundriss und dem Balkon. Die beiden lichtdurchfluteten Räume mit bodentiefen, hellen Fensterfronten schaffen ein Ambiente voller Komfort und bieten ein bemerkenswertes Maß an Lebensqualität.
* geräumige Wohn- Küche mit Fenster und direktem Ausgang zum herrlichen Balkon
* elegantes Badezimmer mit Walk-in-Dusche, Toilette und Fenster
* Gäste-WC
* zentraler Vorraum
* ruhiges Masterbedroom mit En-Suite-Bad
AUSSTATTUNG FÜR HÖCHSTE ANSPRÜCHE
* Fußbodenheizung und Deckenkühlung für ein perfektes Raumklima
* außenliegenden, elektrischen Raffstores zur Beschattung & Verdunkelung
* 3-fach verglaste Wärmeschutzfenster mit Aludeckschale
* Loggia mit Glasgeländer und Edelstahlprofilen
* exklusive Innentüren (flächenbündig mit Holzzarge)
* Mehrschicht-Parkettböden - Eichen Landhausdielen
* hochwertige Sanitärausstattung (u.a. Laufen Kartell, Laufen Lua)
* Regendusche
* exklusiver Handtuchheizkörper
* bodenebene Walk-in-Dusche mit Echtglas-Trennwand
* hochqualitative, italienische, großflächige Fliesen (60x60 cm) aus Feinsteinzeug
* einbruchshemmende Sicherheitstüre (WK III)
* Video-Gegensprechanlage
URBANE WOHNOASE AM PARK - IN DONAUNÄHE - MIT PERFEKTER VERKEHRSANBINDUNG UND INFRASTUKTUR
Das Wohnprojekt befindet sich in einer Toplage im zentralen Herzen von Floridsdorf. Dieser Bezirk ist bekannt für seine angenehme Mischung aus urbanem Flair und grünen Rückzugsorten, was ihn zu einer der begehrtesten Wohngegenden in Wien macht.
Hier wohnen Sie zentral und dennoch dem Grünen so nah. Alles, was Sie brauchen, liegt in fußläufiger Entfernung: öffentliche Verkehrsmittel, Markt, Einkaufszentrum, Möbelhäuser, Baumarkt, Restaurants, Schulen, Ärzte und Parks.
Die Straßenbahnen 25, 26, 30, 31, 33 und der Bus 36a befinden sich fast vor der Haustüre. So erreichen Sie in wenigen Minuten den Bahnhof Floridsdorf (U-Bahnlinie U6, div. S-Bahn, Regionalzüge) sowie die Alte und Neue Donau und gelangen mit der Straßenbahn 31 rasch und ohne Umsteigen direkt in die Wiener Innenstadt oder ins Weinbaugebiet Stammersdorf. Die Straßenbahnlinie 26 ist die perfekte Verbindung zwischen dem 21. und 22. Bezirk und bietet somit eine direkte Anbindung an die Vienna International School, die Japanische Internationale Schule, die veterinärmedizinische Universität und den Campus Donaufeld. Mit der Schnellbahn vom Bahnhof Floridsdorf erreichen sie auch ohne Umsteigen den Flughafen Wien. Es gibt wahrscheinlich keinen Standort der eine bessere öffentliche Verkehrsanbindung in und rund um Wien anbietet.
Die Nähe zu A22, B3 und B7 sorgt für optimale Anbindung in alle Richtungen.
Zahlreiche Kindergärten, Schulen und Spielplätze bieten Familien hervorragende Bildungs- und Freizeitmöglichkeiten.
Die Umgebung bietet ideale Voraussetzungen für Erholungssuchende, Familien, Hundebesitzer und sportlich Aktive. Neben zahlreichen Parks, Sportvereinen und Fitnessstudios überzeugt insbesondere die Nähe zur Alten und Neuen Donau: Hier erwarten Sie der Floridsdorfer Wasserpark, das Angelibad sowie die weitläufige Erholungslandschaft der Donauinsel. Auch der Marco Polo Golfplatz und moderne Padelplätze sind mit dem Bus in rund 20 Minuten bequem erreichbar. Darüber hinaus befindet sich das Floridsdorfer Hallenbad mit angeschlossener Sauna in fußläufiger Entfernung.
FINANZIERUNGSSERVICE - IHRE WUNSCHIMMOBILIE OPTIMAL FINANZIERT
Unsere Finanzierungsexperten vergleichen unabhängig & unverbindlich die besten Kreditangebote für Sie - und helfen Ihnen, Zeit und Geld zu sparen.
Die Aufstellung der verfügbaren Wohneinheiten samt Kaufpreisen finden Sie auch in entsprechenden pdf-Datei.
Senden Sie uns Ihre Anfrage per Mail und Sie erhalten umgehend alle detaillierten Informationen samt Plänen zu diesem Projekt.
Für etwaige Rückfragen stehen wir Ihnen selbstverständlich jederzeit auch gerne telefonisch zur Verfügung.
ON REQUEST YOU WILL GET ANY INFORMATION IN ENGLISH!
?? ??????? ?? ??????????? ??? ?????????? ?? ???????!
_Alle Angaben basieren alleinig auf Informationen, die uns von unserem Auftraggeber übermittelt wurden. Trotz aller Sorgfalt können wir für die Richtigkeit, Vollständigkeit und Aktualität dieser Angaben keine Gewähr übernehmen. Jegliche Weitergabe der übermittelten Daten an Dritte ist nicht gestattet. Der Maklervertrag kommt durch schriftliche Vereinbarung oder Inanspruchnahme unserer Maklertätigkeit zustande. Der Makler kann als Doppelmakler tätig werden. Sollte das von uns nachgewiesene Objekt bereits bekannt sein, teilen sie uns dies bitte unverzüglich mit._
_Das Vermittlungshonorar ist ausschließlich bei Zustandekommen eines gültigen Rechtsgeschäfts fällig und vom Käufer an Novel Real Immobilien GmbH zu zahlen. Es wird ausdrücklich auf die Nebenkostenübersicht hingewiesen. Bei den Visualisierungen und Abbildungen der Immobilie (insbesondere von Inneneinrichtungen) kann es sich um Symbolfotos bzw. fototechnisch optimierte Fotos handeln._
_Hiermit weisen wir auf das Bestehen eines familiären und/oder wirtschaftlichen Naheverhältnisses zum Verkäufer hin_
Infrastruktur / Entfernungen
Gesundheit
Arzt <500m
Apotheke <500m
Klinik <1.000m
Krankenhaus <1.000m
Kinder & Schulen
Schule <500m
Kindergarten <500m
Universität <1.500m
Höhere Schule <1.000m
Nahversorgung
Supermarkt <500m
Bäckerei <500m
Einkaufszentrum <500m
Sonstige
Geldautomat <500m
Bank <500m
Post <500m
Polizei <1.000m
Verkehr
Bus <500m
U-Bahn <1.000m
Straßenbahn <500m
Bahnhof <500m
Autobahnanschluss <500m
Angaben Entfernung Luftlinie / Quelle: OpenStreetMap
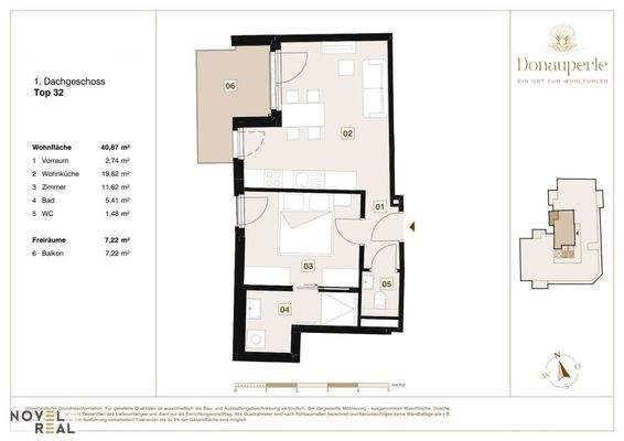
Merkmale
- 5. Geschoss
- offene Küche
- Personenaufzug
- Gäste-WC
- Balkon
Grundrisse
Grundrisse
1 / 1
Realisiere Dein Projekt
Bausubstanz und Energie
Heizwärmebedarf (HWB)
B
Gesamtenergieeffizienz (fGEE)
Der Anbieter hat keine Daten zum Energieausweis hinterlegt.
- Zustand der ImmobilieNeubau, Erstbezug
- HeizungsartFußbodenheizung
- EnergieträgerErdwärme
Preisdetails
Kaufpreis
335000 €335.000 €
8.224,90 €/m²
Provision für Käufer
3% des Kaufpreises zzgl. 20% USt.
Lage

Wien (1210)
In unmittelbarer Nähe der Immobilie befinden sich der Marie Schuller Park und das Shopping-Center Nord (SCN). Die Lage ist äußerst praktisch, da sich viele wichtige Einrichtungen wie Supermärkte, ein Arzt, eine Apotheke, ein Krankenhaus, eine Schule, ein Kindergarten und eine Höhere Schule in der Umgebung befinden. Die Anbindung an das öffentliche Verkehrsnetz ist ausgezeichnet eine Haltestelle der Straßenbahnen 30,31 und des Busses 36A sind fußläufig bequem erreichbar. Diese ermöglichen eine schnelle Verbindung zu zentralen Umsteigepunkten wie dem Bahnhof Floridsdorf und dem Floridsdorfer Markt. Die Nähe zur Donaukanalstraße, der A22 (Donauuferautobahn) und der Prager Straße sorgen für eine zügige Verbindung in Richtung Stadtzentrum, zum Flughafen oder zu anderen Destinationen in und um Wien.
Weitere Informationen
Stichworte
Tiefgarage vorhanden, Fahrradraum, Nutzfläche: 40,73 m², Anzahl der Badezimmer: 1, Anzahl der separaten WCs: 2, Anzahl Balkone: 1, Balkon-Terrassen-Fläche: 7,22 m², Bundesland: Wien, 7 Etagen
Sonstiges/Wohnen: seniorengerechtes Wohnen
Weitere Services
Lust auf eine Besichtigung?
Eine Frage zur Immobilie?
Über den Anbieter
Novel Real Immobilien GmbHMaklerbüro
Dorotheergasse 6-8/8-9, 1010 Wien
Partnerschaft
Frau Ulrike KremplDein Kontakt
Online-ID: 25LQRDKN9N94
Referenznummer: OBGC20250826130631641348f2d7937

Novel Real Immobilien GmbH
Wie zufrieden bist du mit dieser Seite (nicht mit der Immobilie selbst)?