
Sparkasse Attendorn Geschäftsstelle Lennestadt-Kirchhundem
Herr Marc Rohrmann
027 ···
Nr. anzeigenPreise & Kosten
Kaution
1.350,00
Warum sehe ich diese Anzeige? – Du siehst diese Anzeige basierend auf Ihrer Navigation auf unserer Website und den Suchkriterien, die du verwendet hast.
Lage
Im sogenannten "Kölner Tor", somit zentral im westlichen Bereich der Attendorner Innenstadt gelegen, erwartet Sie dieses kernsanierte und somit sehr ansprechende Wohn- und Geschäftshaus. Kurze Wege zu allen Besorgungen des alltäglichen Lebens sind sehr schnell und bequem erreicht. Genießen Sie das Leben inmitten der...
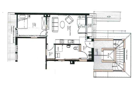
Die Wohnung
Wohnungslage
3. Geschoss (Dachgeschoss)
Wohnanlage
Energie & Heizung
Warum sehe ich diese Anzeige? – Du siehst diese Anzeige basierend auf Ihrer Navigation auf unserer Website und den Suchkriterien, die du verwendet hast.
Energieausweistyp
Verbrauchsausweis
Gebäudetyp
Wohngebäude
Baujahr laut Energieausweis
1920
Wesentliche Energieträger
Gas
Gültigkeit
08.07.2015 bis 07.07.2025
Effizienzklasse
E
Endenergieverbrauch
156,00 kWh/(m²·a)
Weitere Energiedaten
Energieträger
Gas
Heizungsart
Etagenheizung
Details
Objektbeschreibung
Kurzbeschreibung
Klein aber fein und nicht alltäglich, hell, ansprechend und zentral in der Innenstadt.
Objekt
Diese Dachgeschosswohnung erstrahlt immer noch im neuwertigen Glanz! Der Ursprung geht zurück auf das Jahr 1920, doch wurde im Jahre 2017/2018 das komplette Wohn- und Geschäftshaus kernsaniert und mit...
Ausstattung
Individuelle Ausstattungsmerkmale:
- Gegensprechanlage mit Kamera
- Rollläden elektrisch
Die Ausstattung im Inneren ist modern und dezent gehalten, aber dennoch ansprechend und einladend. Natürlich können hier noch eigene Ideen zur eigenen Gestaltung einfließen, um mit dem vorhandenen Potenzial eine tolle...
Preisinformation
Nettokaltmiete: 450,00 EUR
Weitere Informationen
Sonstiges
Es gibt keine eigenen PKW-Stellplätze, Sie haben allerdings als Bewohner der Innenstadt die Möglichkeit günstig einen Anwohner-Parkausweis bei der Stadt Attendorn zu betragen.
Die Räumlichkeiten werden gerade frisch gestrichen und daher ist eine Besichtigung nach Absprache möglich.
VERBRAUCHERINFO
1...
Anbieter der Immobilie
Sparkasse Attendorn Geschäftsstelle Lennestadt-Kirchhundem
Kölner Straße 10, 57439 Attendorn

Online-ID: 2mjep5z
Referenznummer: 2008
Finde Angebote wie dieses
Hier geht es zu unserem Impressum, den Allgemeinen Geschäftsbedingungen, den Hinweisen zum Datenschutz und nutzungsbasierter Online-Werbung.