
WEIDA Immobilien
Herr Siegmar WEIDA
+49 ···
Nr. anzeigenPreise & Kosten
Verhandlungsbasis
Provision für Käufer
provisionsfrei
Lage
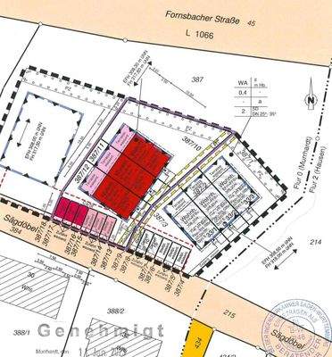
In Murrhardt im Stadtteil-Wohngebiet Sägdöbel, in einer kaum befahrenen Seiten- und Anlieger-Straße gelegen, Stadtrand-Lage, direkt neben Wald und Wiesen - gleich im Anschluss "Natur Pur"!
Das Grundstück
Details
Objektbeschreibung
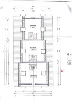
Attraktives Baugrundstück mit ca. 804 m² und genehmigtem Projekt - für 3 moderne Reihenhäuser in Murrhardt!
SOFORT bebaubares Grundstück - Naturnah leben - angrenzend zu Wald und Wiesen!
Zum Verkauf steht ein äußerst interessantes Baugrundstück inklusive rechtskräftiger Baugenehmigung für die Errichtung von drei...
Weitere Informationen
Stichworte
Stadtrandlage
Anbieter der Immobilie
WEIDA Immobilien
Winnender Straße 9, 71404 Korb
Online-ID: 2mjtr5r
Referenznummer: 673#cR7syh
Finde Angebote wie dieses
Hier geht es zu unserem Impressum, den Allgemeinen Geschäftsbedingungen, den Hinweisen zum Datenschutz und nutzungsbasierter Online-Werbung.