
Jennifer Raulf Immobilien + Hausverwaltungen GmbH & Co. KG
Frau Jennifer Raulf
054 ···
Nr. anzeigenPreise & Kosten
Provision für Käufer
provisionsfrei
Lage
Die Immobilie befindet sich in einer ruhigen und gewachsenen Wohnlage von Bad Rothenfelde, einem anerkannten Kurort im südlichen Landkreis Osnabrück. Die Umgebung zeichnet sich durch gepflegte Einfamilien- und Doppelhäuser sowie viel Grün aus - ideal für alle, die naturnah und dennoch gut angebunden wohnen möchten.
Bad...
Das Haus
Kategorie
Doppelhaushälfte
Baujahr
1999
Bezug
sofort
Derzeitige Nutzung
vermietet
Energie & Heizung
Warum sehe ich diese Anzeige? – Du siehst diese Anzeige basierend auf Ihrer Navigation auf unserer Website und den Suchkriterien, die du verwendet hast.
Energieausweistyp
Verbrauchsausweis
Gebäudetyp
Wohngebäude
Baujahr laut Energieausweis
1999
Wesentliche Energieträger
Gas
Gültigkeit
30.06.2025 bis 29.06.2035
Effizienzklasse
D
Endenergieverbrauch
111,20 kWh/(m²·a) - Warmwasser enthalten
Weitere Energiedaten
Haustyp
Massivhaus
Energieträger
Gas
Details
Objektbeschreibung
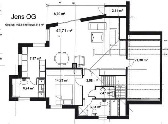
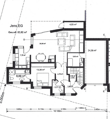
Diese gepflegte Doppelhaushälfte aus dem Baujahr 1999 befindet sich auf einem ca. 553 m² großen Eigentumsgrundstück und umfasst zwei vollständig vermietete Wohneinheiten mit einer Gesamtwohnfläche von ca. 194 m². Das Gebäude wird durch eine effiziente Gas-Zentralheizung beheizt und überzeugt durch eine solide Bausubstanz...
Ausstattung
- Baujahr 1999
- Grundstücksfläche ca. 553 m²
- Gas-Zentralheizung
- Zwei separat vermietete Wohneinheiten
- Solide Bausubstanz, gepflegter Zustand
- Ruhige Wohnlage mit guter Anbindung
- Zwei Pkw-Stellplätze (je Wohnung einer)
- Eigene Garage für Erdgeschosswohnung
-...
Preisinformation
2 Stellplätze
1 Garagenstellplatz
Weitere Informationen
Sonstiges
Alle Angaben sind ohne Gewähr und basieren ausschließlich auf Informationen, welche uns vom Eigentümer übermittelt worden sind. Wir übernehmen keine Gewähr für die Vollständigkeit, Richtigkeit und Aktualität dieser Angaben.
Irrtümer sind trotz sorgfältiger Prüfung und Verarbeitung der uns zur Verfügung...
Anbieter der Immobilie

Jennifer Raulf Immobilien + Hausverwaltungen GmbH & Co. KG
Frankfurter Straße 52, 49214 Bad Rothenfelde
Online-ID: 2mjzh5f
Referenznummer: 5520#Ytz8L
Finde Angebote wie dieses
Hier geht es zu unserem Impressum, den Allgemeinen Geschäftsbedingungen, den Hinweisen zum Datenschutz und nutzungsbasierter Online-Werbung.