
Zefi Immobilien GmbH
Herr Klaudio Zefi
+43 ···
Nr. anzeigenPreise & Kosten
Provision für Käufer
3% des Kaufpreises zzgl. 20% USt.
Lage
Das Haus befindet sich in ruhiger und sonniger Lage im begehrten Schnablfeld von Going am Wilden Kaiser, nur wenige Gehminuten vom Ortszentrum entfernt. Die Astbergbahn ist in rund fünf Minuten erreichbar und bietet direkten Zugang zur SkiWelt Wilder Kaiser - Brixental. Der Golfclub Wilder Kaiser Ellmau liegt nur etwa fünf...
Das Haus
Baujahr
2020
Bezug
sofort
Energie & Heizung
Warum sehe ich diese Anzeige? – Du siehst diese Anzeige basierend auf Ihrer Navigation auf unserer Website und den Suchkriterien, die du verwendet hast.
Weitere Energiedaten
Haustyp
Massivhaus, Niedrigenergiehaus
Heizungsart
Fußbodenheizung, Luft-/Wasser-Wärmepumpe, Zentralheizung
Details
Objektbeschreibung
Architektur trifft Alpen - Exklusives Designhaus im Bergdoktor-Dorf Going am Wilden Kaiser
Ein Statement aus Raum, Licht und Design
Dieses außergewöhnliche Einfamilienhaus im begehrten Schnablfeld von Going am Wilden Kaiser verbindet italienische Designästhetik mit alpiner Klarheit und großzügiger...
Preisinformation
1 Stellplatz
2 Garagenstellplätze
Weitere Informationen
Stichworte
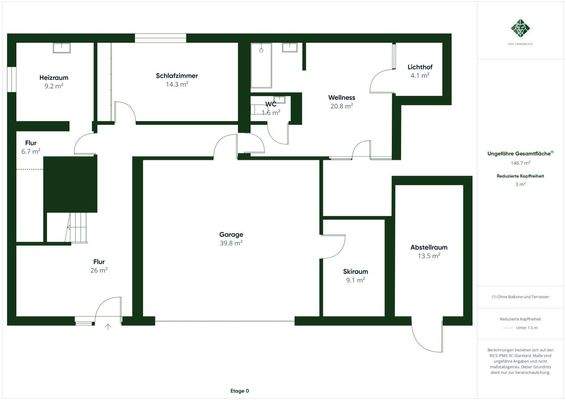
Garage vorhanden, Nord-Ost-Süd-Balkon/Terrasse, Rolladen, Anzahl der Badezimmer: 4, Anzahl der separaten WCs: 5, Anzahl Balkone: 2, Anzahl Terrassen: 1, Balkon-Terrassen-Fläche: 133,43 m², Kellerfläche: 32,61 m², Bundesland: Tirol, 3 Etagen
Wellness: Wellnessbereich
Sonstiges: Kabelkanäle
Anbieter der Immobilie
Zefi Immobilien GmbH
Josef-Speckbacher-Str. 12, 6300 WÖRGL
Online-ID: 2mk7254
Referenznummer: OBGC202510031411099990f7e62d25a
Finde Angebote wie dieses
Günstige Immobilienfinanzierung einfach online berechnen
Persönliches Angebot berechnenWarum sehe ich diese Werbung? – Du siehst diese Werbung basierend auf Deiner Navigation auf unserer Website und der von Dir verwendeten Suchkriterien.
Diese Werbung wird bezahlt von durchblicker
Werbung melden
Hier geht es zu unserem Impressum, den Allgemeinen Geschäftsbedingungen, den Hinweisen zum Datenschutz und nutzungsbasierter Online-Werbung.