
Wentzel Dr. Vertriebs GmbH
Vermietungsteam Hamburg BE
Kontaktiere den Anbieter schriftlich, es ist keine Telefonnummer hinterlegt.
Preise & Kosten
in Warmmiete enthalten
Kaution
2.583,00
Warum sehe ich diese Anzeige? – Du siehst diese Anzeige basierend auf Ihrer Navigation auf unserer Website und den Suchkriterien, die du verwendet hast.
Lage
Der Buntentorsteinweg befindet sich in der Bremer Neustadt und ist hervorragend an das öffentliche Nahverkehrsnetz angebunden. Entlang der Straße verkehren mehrere Straßenbahnlinien, insbesondere die Linien 4 und 6, die eine direkte Verbindung in die Bremer Innenstadt sowie zu anderen Stadtteilen bieten. Zusätzlich gibt es...
Die Wohnung
Wohnungslage
2. Geschoss
Bezug
01.01.2026
Wohnanlage
Energie & Heizung
Warum sehe ich diese Anzeige? – Du siehst diese Anzeige basierend auf Ihrer Navigation auf unserer Website und den Suchkriterien, die du verwendet hast.
Energieausweistyp
Bedarfsausweis
Gebäudetyp
Wohngebäude
Baujahr laut Energieausweis
2016
Wesentliche Energieträger
GAS
Gültigkeit
seit 27.05.2015
Effizienzklasse
B
Endenergiebedarf
56,00 kWh/(m²·a)
Details
Objektbeschreibung
Im Herzen eines lebendigen Stadtteils gelegen, vereint dieses Wohnensemble am Buntentorsteinweg 171-183 modernes Wohnen mit hoher Alltagstauglichkeit und durchdachter Architektur. Die im Jahr 2016 errichtete Wirtschaftseinheit umfasst zwei separate Wohngebäude mit insgesamt 109 Wohneinheiten, die durch ihre zeitgemäße...
Ausstattung
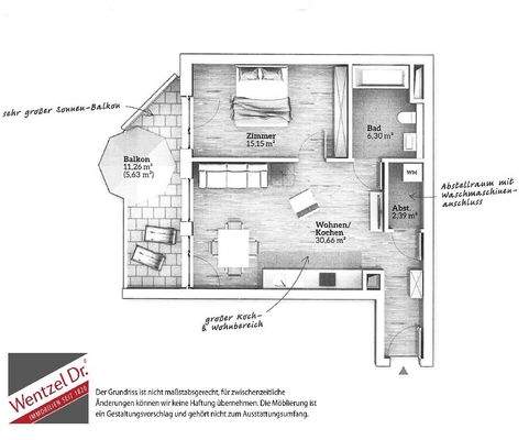
Diese helle und gut geschnittene 2-Zimmer-Wohnung überzeugt durch ihre moderne Ausstattung und durchdachte Raumaufteilung. Der großzügige Wohnbereich ist mit hochwertigem Parkettboden ausgestattet und bietet direkten Zugang zu einem sonnigen Balkon, der sowohl vom Wohnzimmer als auch vom Schlafzimmer begehbar ist - ideal zum...
Preisinformation
Nettokaltmiete: 861,00 EUR
Weitere Informationen
Sonstiges
Bei Mietvertragsabschluss wird ein Kündigungsausschluss von 1 Jahr sowie eine Indexmiete vereinbart. Der neue Energieausweis ist bereits beantragt und wird bei Vorlage nachgereicht.
Stichworte
Anzahl Balkone: 1
Dokumente
Anbieter der Immobilie
Wentzel Dr. Vertriebs GmbH
Stresemannallee 102-104, 22529 Hamburg
Vermietungsteam Hamburg BE
Dein Ansprechpartner
Kontaktiere den Anbieter schriftlich, es ist keine Telefonnummer hinterlegt.
Online-ID: 2mkfl5l
Referenznummer: 8732.0051
Finde Angebote wie dieses
Hier geht es zu unserem Impressum, den Allgemeinen Geschäftsbedingungen, den Hinweisen zum Datenschutz und nutzungsbasierter Online-Werbung.