
Immozentrum Thüringen, Inh. Robert Dietz
Herr Ralf Dietz
004 ···
Nr. anzeigenPreise & Kosten
Provision für Käufer
3,57 %
Lage
Die Immobilie befindet sich in einer zentralen Lage in Jena, einer lebendigen Stadt mit einer reichen Geschichte und einer dynamischen Gegenwart.
Jena ist bekannt für seine starke wirtschaftliche Struktur, die von einer Vielzahl von Unternehmen und Forschungseinrichtungen geprägt ist. Die Stadt ist ein bedeutender...
Die Wohnung
Kategorie
Maisonette
Energie & Heizung
Warum sehe ich diese Anzeige? – Du siehst diese Anzeige basierend auf Ihrer Navigation auf unserer Website und den Suchkriterien, die du verwendet hast.
Energieausweis: für diesen Gebäudetyp nicht notwendig
Weitere Energiedaten
Energieträger
Gas
Heizungsart
Zentralheizung
Details
Objektbeschreibung
Kurzbeschreibung
In unserem Exposé erhalten Sie zusätzlich:
- Adresse
- Ausführliche Daten zum Objekt
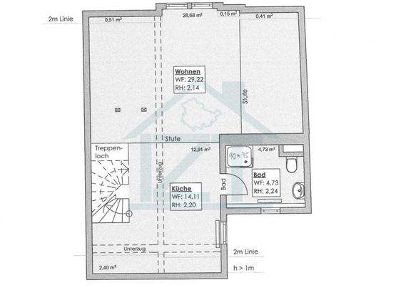
- Grundrisse
- Lagepläne
- Große Bildersammlung zum Objekt
- 360° Videorundgang (falls verfügbar)
- Angaben zum Energieausweis
Kontaktieren Sie uns gerne für die Zusendung des...
Ausstattung
Im Jahr 2000 wurde das Objekt einer umfassenden Kernsanierung unterzogen, bei der die gesamte Haustechnik auf einen modernen Stand gebracht wurde.
Die Sanierungsmaßnahmen im Detail:
- Leitungssysteme: Austausch aller Ver- und Entsorgungsleitungen im Haus
- Elektrotechnik: Komplette Erneuerung der...
Preisinformation
Soll-Mieteinnahmen pro Jahr: 11.160,00 EUR
Ist-Mieteinnahmen pro Jahr: 6.780,00 EUR
Weitere Informationen
Sonstiges
Die Wohnung ist zurzeit unbefristet vermietet
Da das Gebäude unter Ensembleschutz steht, besteht gemäß den gesetzlichen Regelungen des Gebäudeenergiegesetzes (GEG) keine Pflicht zur Vorlage eines Energieausweises.
Stichworte
Nutzfläche: 3,00 m², Grundstücksfläche: 83,00 m², Anzahl der...
Anbieter der Immobilie
Online-ID: 2ml5g5x
Referenznummer: 1122-RD272-ETWJEZEN
Finde Angebote wie dieses
Hier geht es zu unserem Impressum, den Allgemeinen Geschäftsbedingungen, den Hinweisen zum Datenschutz und nutzungsbasierter Online-Werbung.