
WEGEHAUPT Immobilienmakler GmbH
Herr Jürgen Wegehaupt
039 ···
Nr. anzeigenPreise & Kosten
Provision für Käufer
3,57% (inkl. MwSt.) vom Kaufpreis
Die Käuferprovision in Höhe von 3,57% vom Kaufpreis inkl. MwSt. ist mit Abschluss des vermittelten notariellen Kaufvertrages verdient und fällig.
Lage
Das Objekt liegt in der Landeshauptstadt von Sachsen-Anhalt und befindet sich südöstlich von Magdeburg. Die Elbe ist nur 500m entfernt.
Der Stadtteil Alt Salbke ist an das moderne Straßenbahnnetz von Magdeburg angeschlossen und verfügt über einen Bahnhof. Innerhalb von nur 10 Minuten erreicht man den Bahnhof zu Fuß...
Das Renditeobjekt
Kategorie
Mehrfamilienhaus
Baujahr
1903
Energie & Heizung
Warum sehe ich diese Anzeige? – Du siehst diese Anzeige basierend auf Ihrer Navigation auf unserer Website und den Suchkriterien, die du verwendet hast.
Energieausweistyp
Bedarfsausweis
Gebäudetyp
Wohngebäude
Wesentliche Energieträger
Kohle
Gültigkeit
03.07.2023 bis 03.07.2033
Effizienzklasse
H
Endenergiebedarf
288,70 kWh/(m²·a)
Weitere Energiedaten
Energieträger
Kohle
Heizungsart
Ofen
Details
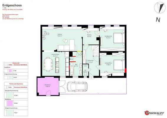
Objektbeschreibung
Großfamilie?
Mehrgenerationswohnen?
2 separate Wohnungen?
Wohnen und Arbeiten?
Herzlich willkommen zur Besichtigung!
Liebe Interessenten,
Sie sind auf der Suche nach einem Zuhause, das genug Platz für Ihre verrückten Ideen bietet? Dann sind Sie hier genau richtig!
Diese charmante...
Ausstattung
Das massiv errichtete Gebäude ist sanierungsbedürftig und wurde ca. 1900 errichtet.
* abgeschlossene Zufahrt
* massive Bauweise (Ziegelstein ca. 30cm)
* 2 Vollgeschosse
* 2-fach verglaste Kunststofffenster von 2000
* 4 Fenster auf der Vorderseite sind Holzfenster aus DDR-Zeit
* Dachlattung und Dachpappe...
Preisinformation
1 Stellplatz
Weitere Informationen
Sonstiges
Alle Angaben basieren auf Aussagen Dritter, der vorhandenen Unterlagen sowie einer Objektbesichtigung. Eine Gewähr für die Richtigkeit und Vollständigkeit kann daher nicht übernommen werden. Dieses Exposé möchten Sie bitte als freibleibendes unverbindliches Angebot betrachten.
ACHTUNG: Bitte haben Sie...
Dokumente
Anbieter der Immobilie
Online-ID: 2mll95m
Referenznummer: M 1358E
Finde Angebote wie dieses
Hier geht es zu unserem Impressum, den Allgemeinen Geschäftsbedingungen, den Hinweisen zum Datenschutz und nutzungsbasierter Online-Werbung.