
WEGEHAUPT Immobilienmakler GmbH
Herr Jürgen Wegehaupt
039 ···
Nr. anzeigenPreise & Kosten
zzgl. Nebenkosten
Kaution
3.980 €
Provision für Mieter
provisionsfrei
Warum sehe ich diese Anzeige? – Du siehst diese Anzeige basierend auf Ihrer Navigation auf unserer Website und den Suchkriterien, die du verwendet hast.
Lage
Beste Innenstadtlage - Ihr neuer Unternehmensstandort im Herzen von Bernburg
Diese Gewerbeeinheit befindet sich in absolut zentraler Lage - direkt an der belebten Fußgängerzone und nur wenige Schritte vom Marktplatz entfernt. Näher am Zentrum können Sie kaum sein.
Hier profitieren Sie von einer hohen...
Büro-/Praxisfläche
Kategorie
Bürofläche
Baujahr
1910
Derzeitige Nutzung
vermietet
Energie & Heizung
Warum sehe ich diese Anzeige? – Du siehst diese Anzeige basierend auf Ihrer Navigation auf unserer Website und den Suchkriterien, die du verwendet hast.
Weitere Energiedaten
Energieträger
Gas
Details
Objektbeschreibung
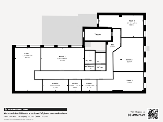
Zentrale Gewerbefläche / Büroräume / Praxisräume in Bernburg - über 390m² Nutzfläche zur Miete.
Inmitten der belebten Fußgängerzone von Bernburg befindet sich diese attraktive Gewerbeeinheit, die sich über das 1. und 2. Obergeschoss eines gepflegten Geschäftshauses erstreckt. Beide Geschosse sind auch einzeln zu...
Ausstattung
Die Gewerbeflächen überzeugen durch eine durchdachte Raumaufteilung, gepflegte Ausstattung und eine angenehme Arbeitsatmosphäre.
Sie eignen sich ideal für unterschiedlichste Nutzungskonzepte - von Büros über Praxen bis hin zu Bildungseinrichtungen, Studios oder Dienstleistungsbetrieben.
- Bodenbelag: In allen Räumen...
Weitere Informationen
Sonstiges
Alle Angaben basieren auf Aussagen Dritter, der vorhandenen Unterlagen sowie einer Objektbesichtigung. Eine Gewähr für die Richtigkeit und Vollständigkeit kann daher nicht übernommen werden. Dieses Exposé möchten Sie bitte als freibleibendes unverbindliches Angebot betrachten.
ACHTUNG: Bitte haben Sie...
Anbieter der Immobilie
Online-ID: 2mlm95m
Referenznummer: M 1322U
Finde Angebote wie dieses
Hier geht es zu unserem Impressum, den Allgemeinen Geschäftsbedingungen, den Hinweisen zum Datenschutz und nutzungsbasierter Online-Werbung.