
Wentzel Dr. Vertriebs GmbH
Vermietungsteam Hamburg KE
Kontaktiere den Anbieter schriftlich, es ist keine Telefonnummer hinterlegt.
Preise & Kosten
in Warmmiete enthalten
Kaution
1.710,00
Warum sehe ich diese Anzeige? – Du siehst diese Anzeige basierend auf Ihrer Navigation auf unserer Website und den Suchkriterien, die du verwendet hast.
Lage
Dieses Neubauobjekt liegt zentral in der Hansestadt Lüneburg. Die Lüneburger Innenstadt sowie den Bahnhof erreichen Sie in wenigen Gehminuten. Geschäfte für den täglichen Bedarf (Supermarkt, Apotheke und Arztpraxen) finden Sie ebenfalls in der nahen Umgebung.
Durch seine verkehrsgünstige Lage hat Lüneburg eine schnelle und...
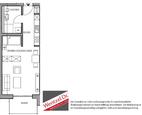
Die Wohnung
Wohnungslage
2. Geschoss
Bezug
01.02.2026
Wohnanlage
Energie & Heizung
Warum sehe ich diese Anzeige? – Du siehst diese Anzeige basierend auf Ihrer Navigation auf unserer Website und den Suchkriterien, die du verwendet hast.
Energieausweistyp
Bedarfsausweis
Gebäudetyp
Wohngebäude
Baujahr laut Energieausweis
2019
Wesentliche Energieträger
FERN
Gültigkeit
seit 19.11.2018
Effizienzklasse
B
Endenergiebedarf
75,00 kWh/(m²·a)
Weitere Energiedaten
Heizungsart
Zentralheizung
Details
Objektbeschreibung
Die Objekteinheit beinhaltet insgesamt 86 Wohneinheiten, welche auf 4 Häuser verteilt sind. Die im Treppenhaus vorhandenen Aufzüge sorgen für einen bequemen Zugang zu Ihrer Mietfläche. Für Ihr Auto stehen Außenstellplätze/Tiefgaragenstellplätze zur Verfügung. Aufgrund der attraktiven Lage ist die Ilmenau nur wenige...
Ausstattung
Die hier angebotene Wohnung verfügt über eine moderne Ausstattung. Die Wohnung ist mit einer Einbauküche (inkl. Kühlschrank mit Gefrierkombination, Herd, Cerankochfeld), einem Duschbad mit Waschmaschinenanschluss, Parkettboden sowie Fußbodenheizung ausgestattet. Der Balkon lädt zu gemütlichen Stunden ein. Als Abstellfläche...
Preisinformation
Nettokaltmiete: 570,00 EUR
Weitere Informationen
Sonstiges
Es werden eine Indexmiete sowie ein Kündigungsausschluss von 1 Jahr vereinbart.
Stichworte
Anzahl Balkone: 1
Dokumente
Anbieter der Immobilie
Wentzel Dr. Vertriebs GmbH
Stresemannallee 102-104, 22529 Hamburg
Vermietungsteam Hamburg KE
Dein Ansprechpartner
Kontaktiere den Anbieter schriftlich, es ist keine Telefonnummer hinterlegt.
Online-ID: 2mlt75r
Referenznummer: 7953.0015
Finde Angebote wie dieses
Hier geht es zu unserem Impressum, den Allgemeinen Geschäftsbedingungen, den Hinweisen zum Datenschutz und nutzungsbasierter Online-Werbung.