Elidagasse 24 Errichtungs GmbH

Herr Christian SPÖRK

BESTLAGE ALTE DONAU - Penthouse über das gesamte Dachgeschoss - 1 Minute zur Alten Donau

€ 958.000
Kaufpreis
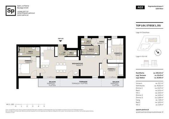
100,33 m²
Wohnfläche ca.
4
Zimmer
Finanzierung berechnen mit durchblicker

Der Anbieter dieses Objekts hat gegenüber der AVIV Germany GmbH als Betreiber dieses Online-Marktplatzes erklärt, nicht als Unternehmer im Sinne des § 1 KSchG zu handeln. Die im Verbraucherschutzrecht der Union verankerten Verbraucherrechte (insbesondere Informationspflichten und Rücktritts- bzw. Widerrufsrechte) finden auf den Vertrag zwischen dem Anbieter des Objekts und Ihnen (dem Interessenten) keine Anwendung.

Gewerblicher Anbieter

Der Anbieter dieses Objekts hat gegenüber der AVIV Germany GmbH als Betreiber dieses Online-Marktplatzes erklärt, als Unternehmer im Sinne des § 1 KSchG zu handeln.

AdresseArgonautenstraße 3
1220 Wien, Donaustadt 
Auf Karte ansehen

Preise & Kosten

Kaufpreis € 958.000

Provision für Käufer

Bitte beachte, das Angebot kann bei Vertragsabschluss die Zahlung einer Provision beinhalten. Weitere Informationen erhältst Du vom Anbieter.

Lage

Wohnen, wo Wien Urlaub macht.
Die Alte Donau ist einer der seltenen Orte, an denen Stadt und Natur im Gleichgewicht sind. Wer hier lebt, spürt sofort: besser geht es nicht.

Die Argonautenstraße 3 liegt im Filetstück der Alten Donau - nur eine Gehminute vom Wasser entfernt. Zwischen Segelbooten, Laufstrecken und...

Mehr anzeigen

Die Wohnung

Wohnungslage

3. Geschoss (Dachgeschoss)

Bezug

Frühjahr 2024

  • Bad mit Fenster und Dusche
  • WG-geeignet
  • Böden: Fliesenboden, Parkett
  • Zustand: Erstbezug
  • Anschlüsse: Kabelanschluss

Wohnanlage

  • Baujahr: 2022
  • Personenaufzug

Energie & Heizung

Heizwärmebedarf (HWB)

B

41,00 kWh/(m²·a)

Gesamtenergieeffizienz (fGEE)

A+

0,71

Weitere Energiedaten

Heizungsart

Fußbodenheizung

Details

Objektbeschreibung

Ein Zuhause, das seinesgleichen sucht: Diese Penthouse vereint zwei Einheiten zu einer großzügigen Dachgeschosswohnung - mit viel Licht, Weite und Flexibilität. Nur eine Minute zur Alten Donau, in absoluter Bestlage.

Die Architektur schafft Großzügigkeit und Struktur zugleich. Der offene Wohn-Ess-Bereich mit direktem...

Mehr anzeigen

Ausstattung

Beste Bauweise. Österreichische Qualität. Internationale Planung.

Architektur von Mayr & Glatz, international renommiertes Designbüro

Materialien: INKU-Parkett, Türen, RECORD-Fenster, GROHE Armaturen

Technik & Komfort: SIEMENS, BÖSCH-Wärmepumpe

Energieeffizient: Fußbodenheizung mit...

Mehr anzeigen

Weitere Informationen

Sonstiges
Spörk und Partner Bauträger GmbH - Elementares Wohnen seit 15 Jahren.

Als Familienunternehmen bauen wir nicht Masse, sondern das Zuhause, das Sie suchen - individuell, persönlich und mit Haltung. Mit Hingabe, Qualität und einer verlässlichen Begleitung von der ersten Idee bis zur...

Mehr anzeigen

Dokumente

file_pdf251101_AG3_1.6v_Expangle_right

Anbieter der Immobilie

Partner

Elidagasse 24 Errichtungs GmbH

Rotenturmstrasse 6/11, 1010 WIEN

user

Herr Christian SPÖRK

Dein Ansprechpartner

Anbieter-Website Anbieter-Profil Anbieter-Impressum

Online-ID: 2mmdq5j

Referenznummer: 3167

Finde Angebote wie dieses

imageimageimage

Günstige Immobilienfinanzierung einfach online berechnen

Persönliches Angebot berechnen

Hier geht es zu unserem Impressum, den Allgemeinen Geschäftsbedingungen, den Hinweisen zum Datenschutz und nutzungsbasierter Online-Werbung.