

TWE-Immobilien Thomas Erthle e. K.
Herr Uwe Gall
+49 ···
Nr. anzeigenPreise & Kosten
Provision für Käufer
3,57 % inkl. MwSt.
Lage
Das Einfamilienhaus liegt im ruhigen und beliebten Ortsteil Thurm der Gemeinde Mülsen, nur wenige Minuten östlich von Zwickau. Die Lage vereint ländliche Idylle mit hervorragender Anbindung - ideal für Familien und Berufspendler, die naturnah und dennoch komfortabel wohnen möchten.
Einkaufsmöglichkeiten, Ärzte...
Das Haus
Kategorie
Einfamilienhaus
Baujahr
1995
Bezug
sofort
Energie & Heizung
Warum sehe ich diese Anzeige? – Du siehst diese Anzeige basierend auf Ihrer Navigation auf unserer Website und den Suchkriterien, die du verwendet hast.
Energieausweistyp
Bedarfsausweis
Gebäudetyp
Wohngebäude
Baujahr laut Energieausweis
1995
Wesentliche Energieträger
Luft-/Wasser-Wärmepumpe
Gültigkeit
18.05.2025 bis 17.05.2035
Effizienzklasse
C
Endenergiebedarf
83,20 kWh/(m²·a)
Weitere Energiedaten
Haustyp
Massivhaus
Heizungsart
Fußbodenheizung, Luft-/Wasser-Wärmepumpe, Zentralheizung
Details
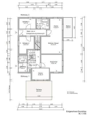
Objektbeschreibung
Attraktives Einfamilienhaus mit Einliegerwohnung, Wärmepumpe und Solaranlage in Mülsen OT Thurm
Dieses gepflegte und großzügige Einfamilienhaus mit Einliegerwohnung überzeugt durch seine gehobene Ausstattung, moderne Energieeffizienz und liebevoll instand gehaltene Details. Das dreigeschossige Wohnhaus wurde 1995...
Ausstattung
- Baujahr 1995, gepflegter Zustand
- Dreigeschossiges Einfamilienhaus mit Einliegerwohnung
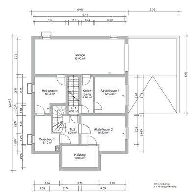
- Ca. 550 m² Grundstücksfläche, voll unterkellert
- Siebeneinhalb Zimmer, 2 Badezimmer + Gäste-WC
- Fußbodenheizung in Wohnbereichen, Heizkörper in Schlafräumen
- Luftwärmepumpe + Solarthermieanlage zur...
Preisinformation
1 Garagenstellplatz
Weitere Informationen
Sonstiges
Um eine schnelle Bearbeitung zu gewährleisten, übermitteln Sie uns bitte Ihre vollständigen Kontaktdaten mit Telefon-Nr. und E-Mail-Adresse.
Gerne vereinbaren wir einen Besichtigungstermin mit Ihnen und freuen uns über Ihre Kontaktaufnahme.
Wir vermitteln - mit...
Anbieter der Immobilie

Online-ID: 2mmmk5a
Referenznummer: 3507 (1/3507)
Finde Angebote wie dieses
Hier geht es zu unserem Impressum, den Allgemeinen Geschäftsbedingungen, den Hinweisen zum Datenschutz und nutzungsbasierter Online-Werbung.