
s REAL Immobilienvermittlung GmbH
Herr Milovan Knjeginjic
+43 ···
Nr. anzeigenPreise & Kosten
Provision für Käufer
provisionsfrei
Lage
Die Immobilie befindet sich in der Stadt Salzburg, genauer gesagt im Stadtteil Schallmoos. Sie liegt in der Nähe der beliebten Einkaufsstraße Linzergasse und des traditionellen Wirtshauses Fuxn. In unmittelbarer Umgebung gibt es viele wichtige Einrichtungen wie eine Arztpraxis, eine Apotheke, eine Klinik, eine Schule, einen...
Die Wohnung
Wohnungslage
Erdgeschoss
Bezug
sofort
Wohnanlage
Energie & Heizung
Warum sehe ich diese Anzeige? – Du siehst diese Anzeige basierend auf Ihrer Navigation auf unserer Website und den Suchkriterien, die du verwendet hast.
Heizwärmebedarf (HWB)
33,00 kWh/(m²·a)
Gesamtenergieeffizienz (fGEE)
0,73
Weitere Energiedaten
Energieträger
Fernwärme
Heizungsart
Fußbodenheizung
Details
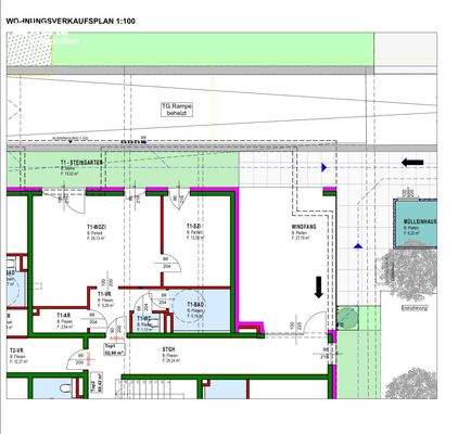
Objektbeschreibung
Neubauprojekt in Salzburg-Schallmoos, ca. 900 m von der Linzer Gasse entfernt.
Dieses Wohnprojekt mit 20 Einheiten wird in zentraler Lage in Zentrumsnähe errichtet. Beste Infrastruktur ist gegeben. Der Baukörper besteht aus vier Geschoßen und einem zurückversetzen Penthouse.
Alle Wohnungen im Erdgeschoß verfügen...
Weitere Informationen
Stichworte
Tiefgarage vorhanden, Nord-Balkon/Terrasse, Fahrradraum, Anzahl der Badezimmer: 1, Anzahl der separaten WCs: 1, Anzahl Terrassen: 1, Balkon-Terrassen-Fläche: 15,00 m², Bundesland: Salzburg, 4 Etagen
Sonstiges/Wohnen: seniorengerechtes Wohnen
Anbieter der Immobilie
s REAL Immobilienvermittlung GmbH
Landstraßer Hauptstraße 60, 1030 WIEN
Online-ID: 2mmt95b
Referenznummer: OBGC202511121710272906ea1003a9e
Finde Angebote wie dieses
Günstige Immobilienfinanzierung einfach online berechnen
Persönliches Angebot berechnenWarum sehe ich diese Werbung? – Du siehst diese Werbung basierend auf Deiner Navigation auf unserer Website und der von Dir verwendeten Suchkriterien.
Diese Werbung wird bezahlt von durchblicker
Werbung melden
Hier geht es zu unserem Impressum, den Allgemeinen Geschäftsbedingungen, den Hinweisen zum Datenschutz und nutzungsbasierter Online-Werbung.