
Schantl ITH Immobilientreuhand GmbH
Frau Maria Schantl, BA, MSc
+43 ···
Nr. anzeigenPreise & Kosten
Provision für Käufer
3% des Kaufpreises zzgl. 20% USt.
Lage
Ihre neue Liegenschaft befindet sich direkt im Ortskern Leibnitz zwischen Bundesgymnasium, Tennishalle und Dieselkino. In nur wenigen Gehminuten erreichen Sie das Einkaufszentrum Kauf-Park Leibnitz, Bundesrealgymnasium sowie weitere Freizeitmöglichkeiten und Restaurants. Die entgegenkommende Infrastruktur und Verkehrslage des...
Die Immobilie
Zu diesem Angebot wurden vom Anbieter keine weiteren Daten hinterlegt. Für weitere Informationen bitte den Anbieter kontaktieren.
Nach Informationen fragenDetails
Objektbeschreibung
TRAUMHAFT! BAUBEWILLIGTES WOHNBAUPROJEKT IN AUFSTREBENDER NACHBARSCHAFT IM BEZIRK LEIBNITZ! RASCHE REALISIERUNG MÖGLICH!
8430 LEIBNITZ, RUDOLF-HANS-BARTSCH-GASSE
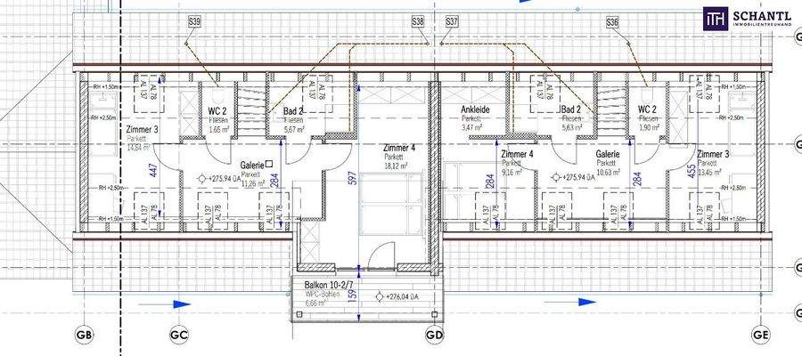
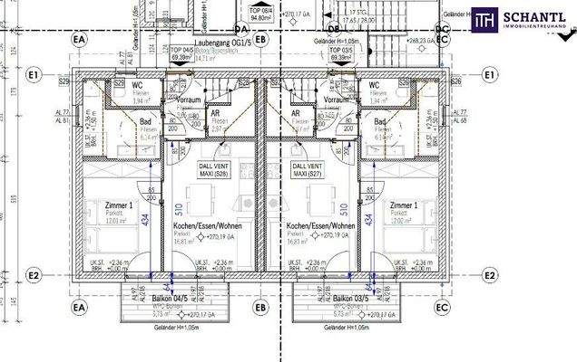
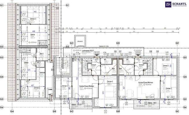
Dieses Wohnbauprojekt besticht durch die TOP Lage direkt im Zentrum des aufstrebenden Bezirkes Leibnitz. Es entstehen insgesamt 7 Bauteile mit...
Preisinformation
Kaufpreis zzgl. 20 % USt, 90 Stellplätze
Weitere Informationen
Stichworte
Nutzfläche: 3.972,00 m², Bundesland: Steiermark, 4 Etagen
Anbieter der Immobilie

Schantl ITH Immobilientreuhand GmbH
Messendorferstraße 71a, 8041 Graz
Online-ID: 2mpjq54
Referenznummer: OBGC2025103114265117619ac9e9d92
Finde Angebote wie dieses
Günstige Immobilienfinanzierung einfach online berechnen
Persönliches Angebot berechnenWarum sehe ich diese Werbung? – Du siehst diese Werbung basierend auf Deiner Navigation auf unserer Website und der von Dir verwendeten Suchkriterien.
Diese Werbung wird bezahlt von durchblicker
Werbung melden
Hier geht es zu unserem Impressum, den Allgemeinen Geschäftsbedingungen, den Hinweisen zum Datenschutz und nutzungsbasierter Online-Werbung.