
Living Fertighaus GmbH
Frau Derya Gülderen
+49 ···
Nr. anzeigenPreise & Kosten
Provision für Käufer
Provisionsfrei
Lage
Ranstadt ist eine Gemeinde im Wetteraukreis in Hessen, Deutschland, und liegt im östlichen Teil des Kreises, nahe der Grenze zum Vogelsbergkreis.
Geographische Lage:
Koordinaten: Ca. 50°22' N, 9°0' O
Höhe: Etwa 150 bis 220 Meter über dem Meeresspiegel
Umgebung:
Nördlich: Ortenberg
Östlich: Glauburg...
Das Haus
Kategorie
Einfamilienhaus
Baujahr
2026
Bezug
2026
Energie & Heizung
Warum sehe ich diese Anzeige? – Du siehst diese Anzeige basierend auf Ihrer Navigation auf unserer Website und den Suchkriterien, die du verwendet hast.
Energieausweistyp
Bedarfsausweis
Gebäudetyp
Wohngebäude
Baujahr laut Energieausweis
2026
Effizienzklasse
A+
Endenergiebedarf
18,00 kWh/(m²·a)
Weitere Energiedaten
Haustyp
KfW 55
Heizungsart
Zentralheizung
Details
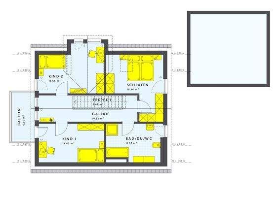
Objektbeschreibung
Du hast Wünsche. Du hast Ideen. Die setzt du um. In deinem SUNSHINE-Haus. Der Grundriss ganz nach deinem Geschmack. Du entscheidest. Und da machst du alles so, dass du und jeder in deiner Familie sich wohlfühlt. Denn jeder hat den Platz, den er braucht: Ein offener Gemeinschaftsbereich im Erdgeschoss. Ruhe- und Rückzugszonen...
Ausstattung
In diesem Angebot enthalten:
- 18 Monate Festpreisgarantie!
- Baugrundstück (falls benötigt)
- auf den Grundriss individuell geplante Küche mit Kochinsel,
Softclose, Induktion, Spülmaschine und vielem mehr!
- Haus als Plusenergiehaus mit Kühlfunktion
- Bodenplatte (oder Keller)
- Photovoltaikanlage mit...
Weitere Informationen
Sonstiges
Die APP für dein neues Zuhause
Mit der Bau-Cockpit APP hast du immer alle Infos zu deinem Fertighaus griffbereit. Alle relevanten Dokumente sowie der Baufortschritt sind mit einem Klick abrufbar.
Ich zeige dir, wie du zu deinem perfekten Traumhaus kommst und freue mich darauf, von dir zu...
Anbieter der Immobilie
Living Fertighaus GmbH
Ludwig-Erhard-Straße 3, 61118 Bad Vilbel
Online-ID: 2mpus5t
Referenznummer: 30627-9437
Finde Angebote wie dieses
Hier geht es zu unserem Impressum, den Allgemeinen Geschäftsbedingungen, den Hinweisen zum Datenschutz und nutzungsbasierter Online-Werbung.