

Jan Schmolke Immobilien & Investments
Herr Jan Schmolke
Kontaktiere den Anbieter schriftlich, es ist keine Telefonnummer hinterlegt.
Preise & Kosten
Provision für Käufer
2,5 % zzgl. 19% MwSt.
Lage
Die Doppelhaushälften befinden sich in einer attraktiven und naturnahen Wohngegend in Herzlake, eingebettet im idyllischen Hasetal im Landkreis Emsland. Besonders hervorzuheben ist die Nähe zu einem schönen See, der zum Entspannen, Spazierengehen und vielfältigen Freizeitaktivitäten einlädt. Die ruhige Umgebung bietet eine...
Das Haus
Kategorie
Mehrfamilienhaus
Baujahr
2019
Bezug
nach Vereinbarung
Derzeitige Nutzung
vermietet
Energie & Heizung
Warum sehe ich diese Anzeige? – Du siehst diese Anzeige basierend auf Ihrer Navigation auf unserer Website und den Suchkriterien, die du verwendet hast.
Energieausweistyp
Bedarfsausweis
Gebäudetyp
Wohngebäude
Baujahr laut Energieausweis
2019
Wesentliche Energieträger
ERDWAERME
Gültigkeit
bis 24.10.2035
Effizienzklasse
A+
Endenergiebedarf
20,30 kWh/(m²·a)
Weitere Energiedaten
Haustyp
KfW 55, Massivhaus
Energieträger
Erdwärme
Heizungsart
Fußbodenheizung
Details
Objektbeschreibung
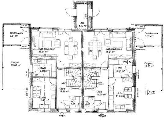
Zum Verkauf steht ein modernes Haus mit zwei identischen Doppelhaushälften aus dem Baujahr 2019/2020 auf einem ca. 610 m² großen Grundstück. Die Gesamtwohnfläche beträgt ca. 220 m² und verteilt sich auf zwei Einheiten mit jeweils ca. 110 m² Wohnfläche. Derzeit sind beide Doppelhaushälften vermietet; die linke Haushälfte wird...
Ausstattung
Doppelhaushälften
Baujahr: 2019/2020
Wohnfläche gesamt: ca. 220 m²
Wohnfläche je Doppelhaushälfte: ca. 110 m²
Grundstücksgröße: ca. 610m²
Die Grundrisse der linken und rechten Doppelhaushälfte sind identisch.
Erdgeschoss:
- Küche
- Wohnraum
- Hauswirtschaftsraum mit Zugang zum Carport...
Preisinformation
2 Carportplätze
2 Stellplätze
Weitere Informationen
Sonstiges
Wir freuen uns auf Ihre SCHRIFTLICHE Anfrage.
Bitte füllen Sie die Kontaktdaten VOLLSTÄNDIG aus. Um Ihre Anfrage schnell und fachgerecht beantworten zu können benötigen wir Ihren vollständigen Namen, Ihre E-Mail Adresse, eine Telefonnummer unter der wir Sie erreichen können und Ihre Adresse.
...
Anbieter der Immobilie

Herr Jan Schmolke
Dein Ansprechpartner
Kontaktiere den Anbieter schriftlich, es ist keine Telefonnummer hinterlegt.
Online-ID: 2mq6j5q
Referenznummer: 1221
Finde Angebote wie dieses
Hier geht es zu unserem Impressum, den Allgemeinen Geschäftsbedingungen, den Hinweisen zum Datenschutz und nutzungsbasierter Online-Werbung.