

Jan Schmolke Immobilien & Investments
Herr Jan Schmolke
Kontaktiere den Anbieter schriftlich, es ist keine Telefonnummer hinterlegt.
Preise & Kosten
Provision für Käufer
2,5 % zzgl. MwSt.
Lage
Die Immobilie befindet sich im Oldenburger Stadtteil Kreyenbrück, einem überwiegend wohngeprägten Quartier mit guter Infrastruktur und ruhiger Atmosphäre. Die Umgebung ist durchmischt bebaut - mit Ein- und Mehrfamilienhäusern sowie großzügigen Grünflächen, die das Wohnumfeld auflockern.
In unmittelbarer Nähe finden...
Das Haus
Kategorie
Einfamilienhaus
Baujahr
1981
Bezug
nach Vereinbarung
Energie & Heizung
Warum sehe ich diese Anzeige? – Du siehst diese Anzeige basierend auf Ihrer Navigation auf unserer Website und den Suchkriterien, die du verwendet hast.
Energieausweistyp
Bedarfsausweis
Gebäudetyp
Wohngebäude
Baujahr laut Energieausweis
2005
Wesentliche Energieträger
GAS
Gültigkeit
bis 27.10.2035
Effizienzklasse
E
Endenergiebedarf
132,40 kWh/(m²·a)
Weitere Energiedaten
Haustyp
Holzhaus
Energieträger
Gas
Heizungsart
offener Kamin
Details
Objektbeschreibung
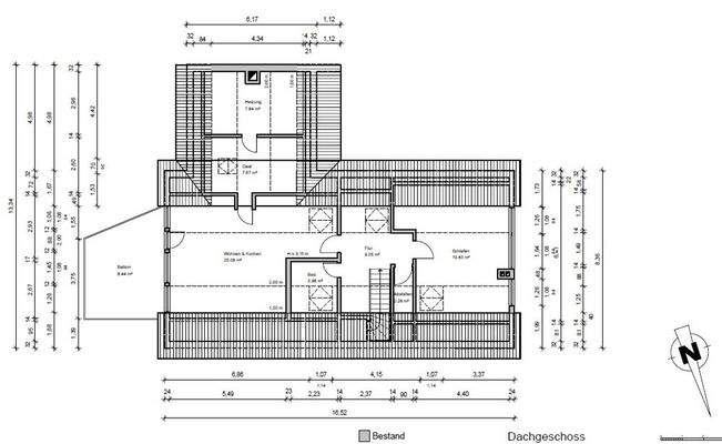
Dieses großzügige Einfamilienhaus mit Einliegerwohnung wurde 1981 in Fertigbauweise (Holzrahmenbau) errichtet und befindet sich auf einem ca. 784 m² großen Grundstück. Mit einer Wohnfläche von ca. 219 m², verteilt auf Erd- und Dachgeschoss, bietet das Haus vielfältige Nutzungsmöglichkeiten - ob als großzügiges Einfamilienhaus...
Ausstattung
- Einfamilienahaus mit Einliegerwohnung
- Fertigbauweise (Holzrahmenbau)
- Baujahr: 1981
- Grundstückgröße: ca. 784 m²
- Wohnfläche ca. 219 m²
Erdgeschoss:
- 4 Zimmer
- 2 Küchen
- 1 Badezimmer mit Dusche
- 1 Gäste-WC
- 1 Abstellraum
- Zugang zur Terrasse und Garten
- Gasheizung...
Preisinformation
2 Garagenstellplätze
Weitere Informationen
Sonstiges
Wir freuen uns auf Ihre SCHRIFTLICHE Anfrage.
Bitte füllen Sie die Kontaktdaten VOLLSTÄNDIG aus. Um Ihre Anfrage schnell und fachgerecht beantworten zu können benötigen wir Ihren vollständigen Namen, Ihre E-Mail Adresse, eine Telefonnummer unter der wir Sie erreichen können und Ihre Adresse.
Bitte...
Anbieter der Immobilie

Herr Jan Schmolke
Dein Ansprechpartner
Kontaktiere den Anbieter schriftlich, es ist keine Telefonnummer hinterlegt.
Online-ID: 2mqy554
Referenznummer: 1142
Finde Angebote wie dieses
Hier geht es zu unserem Impressum, den Allgemeinen Geschäftsbedingungen, den Hinweisen zum Datenschutz und nutzungsbasierter Online-Werbung.