Version: 8.24.1Navigation überspringen
919.000 €
5 Zimmer  •  139,1 m²  •  frei ab 01.04.2026

Doppelhaushälfte zum Kauf - Erstbezug
919000 €
6.607 €/m²
5 Zimmer  •  139,1 m²  •  frei ab 01.04.2026

NEU! ?? TOP-LAGE ?? ZIEGELMASSIVHÄUSER ?? KELLER ?? ERDGESCHOSS ?? OBERGESCHOSS ?? GARTEN ?? TERRASSE ?? PKW-STELLPLATZ

* PROJEKT:

Zum Verkauf gelangen 6 Doppelhaushälften, welche SCHLÜSSELFERTIG und in TOP Baumeisterqualität (100% Zigelmassiv!) hergestellt sind!

Die unverwechselbaren Doppelhäuser (Baujahr: 2024-2025) erfüllen alle technischen und konstruktiven Standards zeitgemäßen Bauens, bieten durchdachte Grundrisse und entsprechen allen Bedürfnissen des modernen Wohnens! 

______

* KELLER + ERDGESCHOSS + OBERGESCHOSS + GARTEN + TERRASSE + PKW STELLPLATZ:

______

HAUS 1: Gesamtfläche: ca. 292,57 m2

* Wohnnutzfläche: ca.121,32 m², 5 ZIMMER
* Gartenfläche: ca. 98,10 m²  
* Terrassenfläche (EG): ca. 18,15 m²
* Terrassenfläche (DG): ca. 11,63 m² 
* PKW Garagenplatz: ca. 28 m²
* AR 5,69 m²
* Technikraum ca. 10 m²
* Kaufpreis: EUR 999.000 (Schlüsselfertig!)

______

HAUS 2: Gesamtfläche: ca. 307 m2

* Wohnnutzfläche: ca.120,05 m², 5 ZIMMER + KELLER mit Fußbodenheizung
* Gartenfläche: ca. 126 m²  
* Terrasse EG: ca. 22 m²
* Terrasse DG: ca. 12,58 m² 
* PKW Parkplatz ca. 12,50 m²
* Keller: ca. 18 m²
* Technikraum: ca. 8,63 m²
* Kaufpreis: EUR 999.000 (Schlüsselfertig!)

______

HAUS 3: Gesamtfläche: ca. 231 m2

* Wohnnutzfläche: ca.135 m², 5 ZIMMER
* Gartenfläche: ca. 48,40 m²  
* Terrasse EG: ca. 14,57 m2
* Terrassen DG: ca. 14,24 m² + 6,60 m² 
* PKW Parkplatz ca. 12,50 m²
* Kaufpreis: EUR 919.000 (Schlüsselfertig!)

______

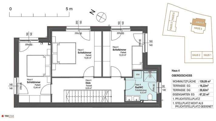
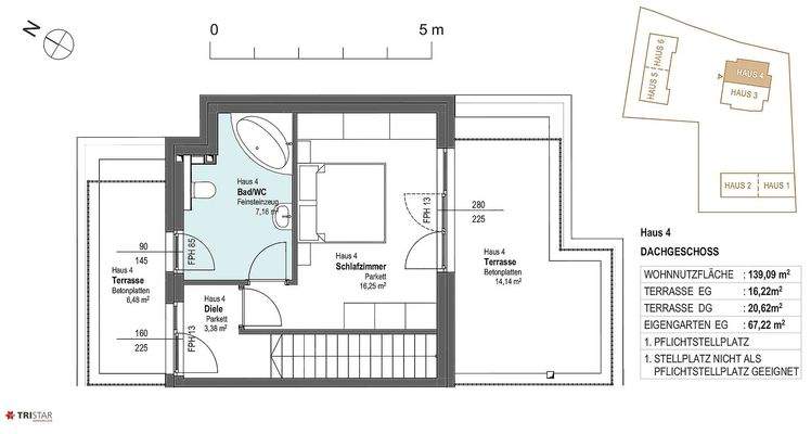
HAUS 4: Gesamtfläche: ca. 255,65 m2

* Wohnnutzfläche: ca. 139,09 m², 5 ZIMMER
* Gartenfläche: ca. 67,22 m2 
* Terrassenfläche (EG): ca. 16,22 m²
* Terrassenfläche (DG): ca. 20,62 m² 
* PKW Parkplatz ca. 12,50 m²
* Kaufpreis: EUR 919.000 (Schlüsselfertig!)

______

HAUS 5: Gesamtfläche: ca. 308,30 m2

* Wohnnutzfläche: ca.111,08 m², 4 ZIMMER + KELLER mit Fußbodenheizung
* Keller ca. 56 m²
* Gartenfläche: ca. 87,19 m2 
* Terrassen EG: ca. 18,03 m2
* Terrasse DG: ca. 11 m² 
* PKW Parkplatz ca. 25 m²
* Kaufpreis: EUR 899.000 (Schlüsselfertig!)

______

HAUS 6: Gesamtfläche: ca. 336 m2

* Wohnnutzfläche: ca. 111,78 m², 4 ZIMMER + 49,11 m² KELLER (mit Fußbodenheizung)!
* Keller ca. 49,11 m²
* Gartenfläche: ca. 116 m2 
* Terrassen EG: ca. 23,35 m2
* Terrasse DG: ca. 11 m² 
* PKW Parkplatz ca. 25 m²
* Kaufpreis: EUR 899.000 (Schlüsselfertig!)

______

* 6 PKW STELLPLÄTZE:

Für jedes Haus, steht ein PKW STELLPLATZ zu Verfügung (Eigentum!) und ist bereits im Kaufpreis inkludiert!

______

* KEIN BAURECHT, KEINE PACHT:

Sie erwerben hier IHR EIGENHEIM und EIGENTUMSGRUND!

______

* GEMÜTLICH UND HOCHWERTIG:

Für ein gemütliches Raumklima sorgt eine Fußbodenheizung, welche von einer höchst effizienten LUFT/WASSER WÄRMEPUMPE (Warmwasseraufbereitung ohne Schadstoffausstoß!) versorgt wird.

So gibt keine sperrigen und störenden Heizkörper und somit steht Ihnen für die Gestaltung Ihrer Wohnbereiche mehr Platz zur Verfügung!

Weiters zählen zur hochwertigen Ausstattung: KLIMAANLAGE, Eichenparkettböden, keramischer Fliesen-Belag/Feinsteinzeug, Garten mit Rollrasen, etc.

______

* ZIEGELMASSIV - QUALITÄT, DIE GENERATIONEN ÜBERDAUERT!

Die Ziegelbauweise kombiniert Tradition mit modernen Vorteilen. Dank ihrer hohen Wärmespeicherkapazität und den speziellen Eigenschaften von Ziegeln, wie Poren und Luftkammern, wird ein herausragender Wärmeschutz mit Top U-Werten erreicht. Dies sorgt für ein stets angenehmes Raumklima, wobei Ziegel überschüssige Feuchtigkeit aufnehmen und wieder abgeben können. Die Beschaffenheit des Ziegels bietet zudem exzellenten Schallschutz und Brandsicherheit.

Im Vergleich zu trendigen, "exotischen" Materialien ist die Ziegelmassivbauweise deutlich langlebiger und stellt somit eine überlegene Geldanlage und Investition für die Zukunft dar.

______

TOP LAGE:

Ein detailliertes LAGEEXPOSÉ (65 Seiten!) erfolgt umgehend nach Anfrage!

______

*
VERMITTLUNGSPROVISION / DOPPELMAKLERTÄTIGKEIT:

Der Ordnung halber wird darauf hingewiesen, dass die Vermittlungsprovision 3 % des Kaufpreises zuzüglich 20 % USt. (insgesamt 3,6 %) beträgt und mit Zustandekommen des vermittelten Rechtsgeschäfts (Annahme des Kaufanbots ohne aufschiebende Bedingungen durch den Verkäufer) fällig wird. Der Makler ist als Doppelmakler tätig.

NEU! ?? TOP-LAGE ?? ZIEGELMASSIVHÄUSER ?? KELLER ?? ERDGESCHOSS ?? OBERGESCHOSS ?? GARTEN ?? TERRASSE ?? PKW-STELLPLATZ

Hinweis gemäß Energieausweisvorlagegesetz: Ein Energieausweis wurde vom Eigentümer bzw. Verkäufer, nach unserer Aufklärung über die generell geltende Vorlagepflicht, sowie Aufforderung zu seiner Erstellung noch nicht vorgelegt. Daher gilt zumindest eine dem Alter und der Art des Gebäudes entsprechende Gesamtenergieeffizienz als vereinbart. Wir übernehmen keinerlei Gewähr oder Haftung für die tatsächliche Energieeffizienz der angebotenen Immobilie.

Wir weisen darauf hin, dass zwischen dem Vermittler und dem zu vermittelnden Dritten ein familiäres oder wirtschaftliches Naheverhältnis besteht.

Der Vermittler ist als Doppelmakler tätig.

Merkmale

  • frei ab 01.04.2026
  • Außen-Stellplatz
  • Gäste-WC
  • Terrasse
  • Badezimmer: Badewanne, Bad mit Dusche, Bad mit Fenster

Grundrisse

Grundrisse
1 / 3

Realisiere Dein Projekt

Bausubstanz und Energie

Der Anbieter hat keine Informationen zum Energieverbrauch bereit gestellt.
  • Baujahr2024
  • Zustand der ImmobilieNeubau, Massivhaus, Erstbezug
  • HeizungsartFußbodenheizung
  • EnergieträgerLuft-/Wasser-Wärmepumpe
MediumRectangleTop

Preisdetails

Kaufpreis
919000 €
6.607,23 €/m²
Provision für Käufer
3% des Kaufpreises zzgl. 20% USt.
Weitere Preisinformationen
1 Stellplatz

Lage

address-icon
Klosterneuburg (3400)

Weitere Informationen

Stichworte Stellplatz vorhanden, Ost-Süd-Balkon/Terrasse, Nutzfläche: 255,65 m², Anzahl der Badezimmer: 2, Anzahl der separaten WCs: 3, Anzahl Terrassen: 3, Balkon-Terrassen-Fläche: 37,00 m², Bundesland: Niederösterreich, 4 Etagen, Wohnungsnr.: 4

Weitere Services

Lust auf eine Besichtigung?
Eine Frage zur Immobilie?
Nachricht hinzufügen
Mit der Nutzung der oben angegebenen Telefonnummer oder durch Klicken auf „Kontaktieren“ akzeptierst Du die Allgemeinen Nutzungsbedingungen, denen Du jederzeit widersprechen kannst. Weitere Informationen zum Datenschutz

Über den Anbieter

Am Hof 5/10, 1010 WIEN
partner badge
6 Jahre Partnerschaft
TRISTAR ImmobilienDein Kontakt
Online-ID: 2mrj35x
Referenznummer: OBGC202407252323419141706b0417f
TRISTAR Immobilien GmbH & Co KG
Nachricht hinzufügen
Mit der Nutzung der oben angegebenen Telefonnummer oder durch Klicken auf „Kontaktieren“ akzeptierst Du die Allgemeinen Nutzungsbedingungen, denen Du jederzeit widersprechen kannst. Weitere Informationen zum Datenschutz
MediumRectangleTop
MediumRectangleBottom
MediumRectangleTop
Wie zufrieden bist du mit dieser Seite (nicht mit der Immobilie selbst)?