

Immobilien Britschuk
Herr Igor Britschuk
+49 ···
Nr. anzeigenPreise & Kosten
Kaution
2400
Provision für Mieter
2,38 Netto-Mieten inkl. MwSt.
Warum sehe ich diese Anzeige? – Du siehst diese Anzeige basierend auf Ihrer Navigation auf unserer Website und den Suchkriterien, die du verwendet hast.
Lage
In der charmanten Stadt Neuwied zeichnet sich diese Immobilie durch ihre ideale Lage aus, die nur etwa 10 Minuten zu Fuß vom pulsierenden Stadtzentrum entfernt ist.
Nahegelegene Bushaltestellen und der Bahnhof garantieren eine einfache Anbindung an den öffentlichen Nahverkehr, wodurch sowohl Pendelstrecken als auch...
Büro-/Praxisfläche
Kategorie
Bürofläche
Baujahr
1970
Bezug
01.03.2026
Mindestmietdauer
12 Monate
Energie & Heizung
Warum sehe ich diese Anzeige? – Du siehst diese Anzeige basierend auf Ihrer Navigation auf unserer Website und den Suchkriterien, die du verwendet hast.
Energieausweis: für diesen Gebäudetyp nicht notwendig
Weitere Energiedaten
Energieträger
Gas
Heizungsart
Zentralheizung
Details
Objektbeschreibung
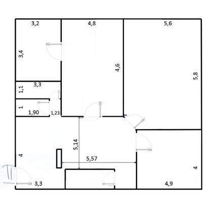
Diese attraktive Gewerbefläche befindet sich im ersten Obergeschoss des Gebäudes und ist ideal geeignet für eine Praxis, ein Büro oder eine Kanzlei. Der Zugang erfolgt bequem über den Haupteingang, der direkt vom Hof aus zugänglich ist.
Die Immobilie bietet insgesamt vier separate Räume, zwei WCs, einen einladenden...
Ausstattung
Das Gebäude überzeugt durch eine effiziente Gas-Zentralheizung, die für eine angenehme Wärme sorgt. Auf derselben Etage befinden sich zwei WCs, die den Komfort erhöhen.
Der Eingangsbereich, die Küche sowie die WCs sind elegant gefliest, während die meisten Böden in einem attraktiven Vinyl im Schiffer-Look gestaltet...
Weitere Informationen
Sonstiges
Info: Anzahl Etagen: 2
Bitte senden Sie mir Ihre schriftliche Anfrage, damit ich nach Rücksprache mit dem Eigentümer eine Besichtigung für Sie arrangieren kann.
Sie erreichen mich mobil unter 01522 - 86 52 636 oder im Büro unter 02652 - 93 62 21.
Beachten Sie bitte, dass dieses Angebot...
Anbieter der Immobilie
Immobilien Britschuk
Anne-Frank-Straße 19, 56743 Mendig

Online-ID: 2mrtk5h
Referenznummer: GM-263
Finde Angebote wie dieses
Hier geht es zu unserem Impressum, den Allgemeinen Geschäftsbedingungen, den Hinweisen zum Datenschutz und nutzungsbasierter Online-Werbung.