

Christoph Soetebeer GmbH
Frau Susanne Speith
041 ···
Nr. anzeigenPreise & Kosten
Provision für Käufer
3,57% incl. Mwst
Lage
Die Wohnung liegt traumhaft ruhig im Erdgeschoss der gepflegten Anlage mit ihren 10 Wohneinheiten. Nur wenige Fußminuten entfernt stehen ein Supermarkt, ein Bäcker, eine Bank, eine Post, ein Ärztehaus, ein Kosmetikinstitut , ein Friseur und eine Tankstelle zur Verfügung und bieten alles für den tägliche Bedarf. Ein kleines...
Die Wohnung
Wohnungslage
Erdgeschoss
Bezug
01.02.2026
Wohnanlage
Energie & Heizung
Warum sehe ich diese Anzeige? – Du siehst diese Anzeige basierend auf Ihrer Navigation auf unserer Website und den Suchkriterien, die du verwendet hast.
Energieausweistyp
Bedarfsausweis
Gebäudetyp
Wohngebäude
Wesentliche Energieträger
Gas
Gültigkeit
bis 06.02.2027
Effizienzklasse
A
Endenergiebedarf
45,00 kWh/(m²·a)
Weitere Energiedaten
Energieträger
Gas
Heizungsart
Zentralheizung
Details
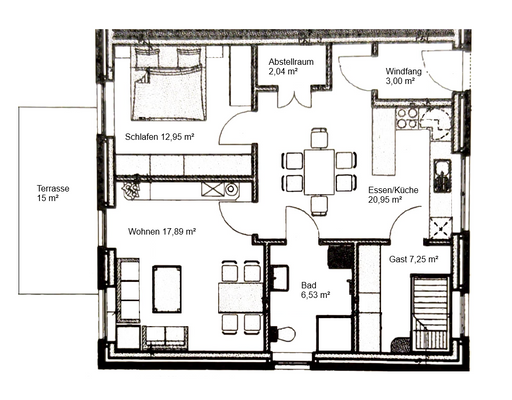
Objektbeschreibung
Sie wollen im Grünen und in Ihren eigenen vier Wänden wohnen, aber sich nicht mehr um den großen Garten kümmern? Dann sind Sie hier genau richtig! Barrierefreies Wohnen mit viel Komfort: In dieser wunderschönen Anlage sind in 2017 zehn sehr hochwertige und energetisch top ausgerüstete Wohnungen entstanden. Die warme...
Ausstattung
Eigentumswohnung im EG
Anlage mit 10 barrierefreien Wohnungen ab 50+
hochwertige Klinkerfassade
ca. 76 m² Wohnfläche
ca. 4,50 m² Nutzfläche
3 Zimmer
hochwertige Einbauküche mit Markengeräten
Bad mit ebenerdiger Dusche und Anschlüssen für Waschmaschine und Trockner
Glasfaseranschluss
große überdachte...
Preisinformation
1 Stellplatz
Weitere Informationen
Sonstiges
Wir haben unseren Auftraggebern Diskretion zugesagt, es handelt sich bei den Informationen zu den Immobilien um sensible Daten, haben Sie bitte Verständnis, dass wir Ihre Anfragen nur unter vollständiger Nennung Ihres Namens, der Anschrift und der Telefonnummer bearbeiten können! Vielen...
Anbieter der Immobilie
Christoph Soetebeer GmbH
Mühlenweg 19, 21354 Bleckede

Online-ID: 2ms845t
Referenznummer: 4661618
Finde Angebote wie dieses
Hier geht es zu unserem Impressum, den Allgemeinen Geschäftsbedingungen, den Hinweisen zum Datenschutz und nutzungsbasierter Online-Werbung.