
EV Mecklenburg GmbH
Engel & Völkers Wismar
+49 ···
Nr. anzeigenPreise & Kosten
Provision für Käufer
3.57 % inkl. gesetzl. MwSt.
Der Makler-Vertrag mit uns und/oder unserem Beauftragten kommt durch die Beauftragung der Maklertätigkeit in Textform (z.B. Weitere Informationen siehe Provisionshinweis.
Lage
Eingebettet in die malerische Umgebung von Lübstorf, nahe dem schimmernden Schweriner See, bietet die Alleinlage einen unvergleichlichen Ausgangspunkt für Ausflüge in alle Richtungen. Diese Gegend zieht anspruchsvolle Käufer an, die die Ruhe und Schönheit der norddeutschen Landschaft zu schätzen wissen. In nur 15 Minuten mit...
Das Haus
Baujahr
1950
Bezug
Sofort
Energie & Heizung
Warum sehe ich diese Anzeige? – Du siehst diese Anzeige basierend auf Ihrer Navigation auf unserer Website und den Suchkriterien, die du verwendet hast.
Energieausweistyp
Verbrauchsausweis
Gebäudetyp
Wohngebäude
Baujahr laut Energieausweis
1950
Gültigkeit
seit 14.02.2023
Effizienzklasse
F
Endenergieverbrauch
173,00 kWh/(m²·a)
Weitere Energiedaten
Heizungsart
Ofen, offener Kamin, Zentralheizung
Details
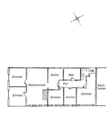
Objektbeschreibung
Willkommen in einem charmanten Refugium im idyllischem Lübstorf, einem Ort, an dem sich Geschichte und grüne Idylle auf faszinierende Weise vereinen. Dieses großzügige Haus, ursprünglich 1950 erbaut und zwischen 2009 und 2025 liebevoll restauriert, erstreckt sich über eine großzügige Fläche von 248 Quadratmetern und bietet...
Ausstattung
Abstellkammer, Einbauküche, Study, Einbauschränke, BBQ Area, Blick ins Grüne, unverbaute Sicht
Weitere Informationen
Provisionshinweis
3.57 % inkl. gesetzl. MwSt.
Der Makler-Vertrag mit uns und/oder unserem Beauftragten kommt durch die Beauftragung der Maklertätigkeit in Textform (z.B. E-Mail mit Bestätigung der gewollten Inanspruchnahme) zustande. Die Höhe der Courtage richtet sich nach den ab dem 23.12.2020 in Kraft getretenen...
Anbieter der Immobilie
Online-ID: 2mttu56
Referenznummer: I-046XP6-W-046XP6
Finde Angebote wie dieses
Hier geht es zu unserem Impressum, den Allgemeinen Geschäftsbedingungen, den Hinweisen zum Datenschutz und nutzungsbasierter Online-Werbung.