

Christiana Baur Immobilien
Frau Christiana Baur
+49 ···
Nr. anzeigenPreise & Kosten
Provision für Käufer
3,57% inkl. der gesetzl. Mwst.
Zuzüglich zum Kaufpreis sind folgende Nebenkosten vom Käufer zu entrichten: Grunderwerbsteuer (5%), Notargebühren (ca. 2%) und Maklergebühren (3,57% inkl. der gesetzlichen Mehrwertsteuer).
Lage
Wohnen mit fantastischer Aussicht in Ebingens SCHÖNSTER LAGE: Stadtnah und doch mitten im Grünen steht das besondere Wohnhaus mit dem Charme aus vergangenen Tagen. Das Haus ist umgeben von alten Bäumen und hat eine herrliche Sicht über Albstadt. Die große Süd-West-Terrasse lädt zum Verweilen ein, hier können Sie den Alltag...
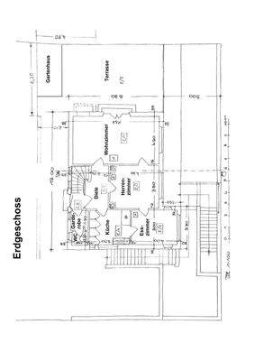
Das Haus
Kategorie
Einfamilienhaus
Baujahr
1930
Bezug
sofort
Energie & Heizung
Warum sehe ich diese Anzeige? – Du siehst diese Anzeige basierend auf Ihrer Navigation auf unserer Website und den Suchkriterien, die du verwendet hast.
Energieausweistyp
Bedarfsausweis
Gebäudetyp
Wohngebäude
Wesentliche Energieträger
Öl
Gültigkeit
06.02.2025 bis 06.02.2035
Effizienzklasse
H
Endenergiebedarf
303,66 kWh/(m²·a)
Weitere Energiedaten
Energieträger
Öl
Heizungsart
Zentralheizung
Details
Objektbeschreibung
Das Haus wurde im Jahr 1930 mit Stil und Geschmack erbaut. Alle Räume sind lichtdurchflutet und haben eine Stockhöhe von ca. 2,80 m. Ein ganz besonderes Flair schaffen die großzügigen Verglasungen. Aus jedem Fenster haben Sie einen herrlichen Blick über Ebingen. Hier ist das unverbaute Juwel, welches Sie schon lange gesucht...
Ausstattung
Das Haus ist im originalen Zustand mit liebenswerter Ausstattung und vielen Details erhalten:
- Öl-Zentralheizung (1986)
- Teilw. erneuerte Elektrik
- Eleganter Hauseingang mit Steinbogen
- Weißlackierte Türen und Fenster
- Parkett in den Wohnräumen
- Stockhöhe: ca. 2,80 m
- Stuckdecken
-...
Preisinformation
1 Garagenstellplatz
Weitere Informationen
Stichworte
Garage vorhanden, Gesamtfläche: 957,00 m², Anzahl der Schlafzimmer: 4, Anzahl der Badezimmer: 2, Anzahl Balkone: 1, Bundesland: Baden-Württemberg
Anbieter der Immobilie

Online-ID: 2mtw85t
Referenznummer: 1794
Finde Angebote wie dieses
Hier geht es zu unserem Impressum, den Allgemeinen Geschäftsbedingungen, den Hinweisen zum Datenschutz und nutzungsbasierter Online-Werbung.