
Engel & Völkers Immobilien Deutschland GmbH
Engel & Völkers Berlin-Brandenburg MMC
+49 ···
Nr. anzeigenPreise & Kosten
Provision für Käufer
3.57 % inkl. gesetzl. MwSt. Weitere Informationen siehe Provisionshinweis.
Lage
Die Immobilie befindet sich in einer der exklusivsten Wohnlagen im Südwesten Berlins, an der Grenze zwischen Zehlendorf und Dahlem. Diese Lage überzeugt durch eine hervorragende Infrastruktur und eine optimale Verkehrsanbindung: Bus, S- und U-Bahn-Stationen sind fußläufig erreichbar, die Stadtautobahn sowie der Kurfürstendamm...
Das Haus
Kategorie
Reihenendhaus
Baujahr
1938
Bezug
nach Vereinbarung
Energie & Heizung
Warum sehe ich diese Anzeige? – Du siehst diese Anzeige basierend auf Ihrer Navigation auf unserer Website und den Suchkriterien, die du verwendet hast.
Energieausweistyp
Verbrauchsausweis
Gebäudetyp
Wohngebäude
Baujahr laut Energieausweis
1938
Gültigkeit
seit 22.10.2035
Effizienzklasse
C
Endenergieverbrauch
95,40 kWh/(m²·a)
Weitere Energiedaten
Energieträger
Gas
Heizungsart
offener Kamin
Details
Objektbeschreibung
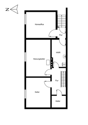
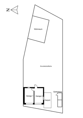
Das zum Verkauf stehende Endreihenhaus wurde 1938 erbaut und 1970 saniert. Es befindet sich auf einem außergewöhnlich großen Grundstück von ca. 690 m² und bietet eine Wohnfläche von ca. 155 m² sowie zusätzlich ca. 140 m² Nutzfläche.
Das Haus verfügt über insgesamt fünf Zimmer und zwei halbe Zimmer, drei Bäder sowie einen...
Weitere Informationen
Provisionshinweis
3.57 % inkl. gesetzl. MwSt.
Kommt auf Grundlage unserer Maklerleistung ein Kaufvertrag über das Objekt zustande, ist der Kunde verpflichtet, eine Maklerprovision in Höhe von 3,57 % einschließlich der gesetzlichen Umsatzsteuer zu zahlen. Die Berechnungsgrundlage für die Provision ist der Gesamtkaufpreis...
Anbieter der Immobilie
Online-ID: 2muns54
Referenznummer: I-046CTB-W-046CTB
Finde Angebote wie dieses
Hier geht es zu unserem Impressum, den Allgemeinen Geschäftsbedingungen, den Hinweisen zum Datenschutz und nutzungsbasierter Online-Werbung.