
Seeber Immobilien SRL
Lea Demetz
+39 ···
Nr. anzeigenPreise & Kosten
Provision für Käufer
Bitte beachte, das Angebot kann bei Vertragsabschluss die Zahlung einer Provision beinhalten. Weitere Informationen erhältst Du vom Anbieter.
Gastronomie/Hotel
Kategorie
Restaurant
Energie & Heizung
Warum sehe ich diese Anzeige? – Du siehst diese Anzeige basierend auf Ihrer Navigation auf unserer Website und den Suchkriterien, die du verwendet hast.
Weitere Energiedaten
Energieträger
Pellets
Details
Objektbeschreibung
In Atzwang, zwischen Bozen und Klausen, steht ein traditionsreicher Gasthof zum Verkauf - ein Haus mit Geschichte, Charakter und vielfältigen Nutzungsmöglichkeiten.
Dank seiner günstigen Lage an der Durchzugsstraße ist das Gasthaus seit jeher ein beliebter Halt für Radfahrer, Geschäftsreisende und...
Weitere Informationen
Stichworte
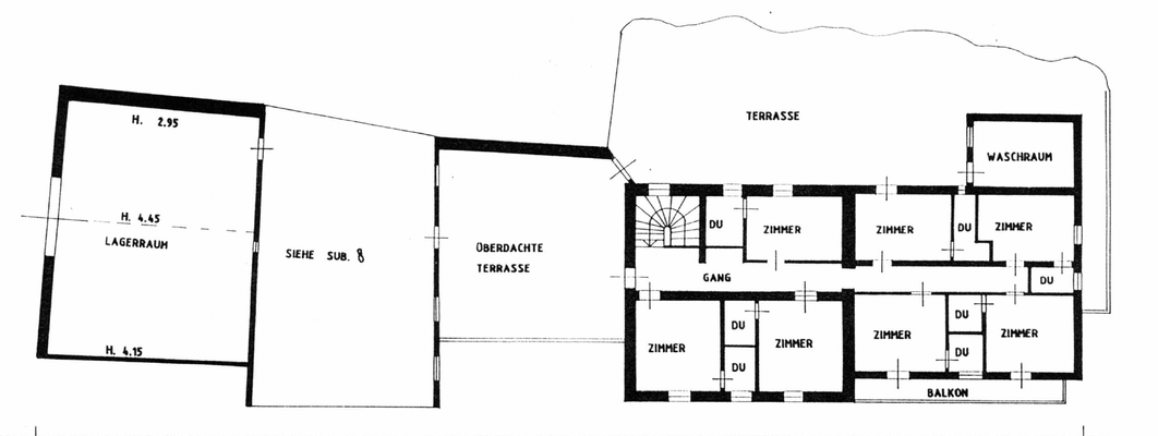
Stellplatz vorhanden, Gesamtfläche: 683,00 m², Verkaufsfläche: 683,00 m², Anzahl der Badezimmer: 15, Anzahl Balkone: 1, Anzahl Terrassen: 1, Anzahl der Wohn-Schlafzimmer: 10, 2 Etagen
Anbieter der Immobilie
Seeber Immobilien SRL
Laubengasse 70, 39100 BOZEN
Online-ID: 2muvb5a
Referenznummer: BZ03123
Finde Angebote wie dieses
Hier geht es zu unserem Impressum, den Allgemeinen Geschäftsbedingungen, den Hinweisen zum Datenschutz und nutzungsbasierter Online-Werbung.