
Gerschlauer GmbH
Frau Julia Ettenhuber
089 ···
Nr. anzeigenPreise & Kosten
Provision für Käufer
3,57 % inkl. gesetzlicher MwSt.
Lage
Willkommen in Moosach, einem der grünsten und familienfreundlichsten Stadtteile Münchens. Wer Wert auf ein ruhiges, gepflegtes Wohnumfeld legt, dabei aber nicht auf die Nähe zur Innenstadt verzichten möchte, ist hier genau richtig.
Das Wohnviertel rund um die Immobilie vereint das Beste aus zwei Welten: eine ruhige...
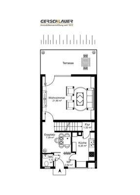
Das Haus
Kategorie
Reihenmittelhaus
Baujahr
1962
Energie & Heizung
Warum sehe ich diese Anzeige? – Du siehst diese Anzeige basierend auf Ihrer Navigation auf unserer Website und den Suchkriterien, die du verwendet hast.
Energieausweistyp
Bedarfsausweis
Gebäudetyp
Wohngebäude
Wesentliche Energieträger
Öl
Gültigkeit
27.10.2025 bis 26.10.2035
Effizienzklasse
H
Endenergiebedarf
255,61 kWh/(m²·a)
Weitere Energiedaten
Energieträger
Öl
Details
Objektbeschreibung
Willkommen in Ihrem zukünftigen Zuhause! Dieses charmante Reihenmittelhaus aus dem Jahr 1962 befindet sich in einer ruhigen, familienfreundlichen Lage und bietet auf ca. 111 m² Wohnfläche und ca. 200 m² Grundstücksfläche reichlich Platz zur freien Entfaltung.
Das Haus erstreckt sich über vier Etagen - vom...
Ausstattung
- 4 Etagen (EG, 1. OG, DG, KG)
- renovierungsbedürftig (Bäder, Böden, manche Fenster, Heizung, usw.)
- sonnige, große Terrasse mit angrenzendem Garten
- elektrische Markise
- Einzelgarage mit direktem Zugang in den Garten
Preisinformation
1 Garagenstellplatz
Weitere Informationen
Sonstiges
Die im Exposé angegebene Käuferprovision ist der Verkäuferprovision äquivalent.
Die Garage ist mit 30.000,- € (und die Einbauküche mit 1.000,- €) im Kaufpreis enthalten. Dadurch verringert sich der Quadratmeterpreis um den entsprechenden Faktor.
Alle Angaben des Exposés beruhen auf Aussage und Angaben des...
Anbieter der Immobilie
Online-ID: 2mvr758
Referenznummer: 16241
Finde Angebote wie dieses
Hier geht es zu unserem Impressum, den Allgemeinen Geschäftsbedingungen, den Hinweisen zum Datenschutz und nutzungsbasierter Online-Werbung.