
1a - Immobilien Dresden
Herr Silko Protze
+49 ···
Nr. anzeigenPreise & Kosten
Kaution
2 Kaltmieten
Warum sehe ich diese Anzeige? – Du siehst diese Anzeige basierend auf Ihrer Navigation auf unserer Website und den Suchkriterien, die du verwendet hast.
Lage
Traumhaftes Grundstück in ruhiger Lage mit
unverbaubaren Blick über weite Felder bis zum
Tharandter Wald.
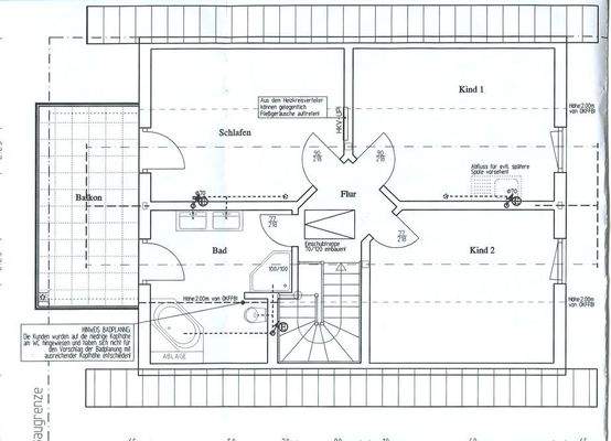
Das Haus
Kategorie
Einfamilienhaus
Baujahr
2010
Bezug
01.03.2026
Energie & Heizung
Warum sehe ich diese Anzeige? – Du siehst diese Anzeige basierend auf Ihrer Navigation auf unserer Website und den Suchkriterien, die du verwendet hast.
Weitere Energiedaten
Haustyp
Niedrigenergiehaus
Heizungsart
Luft-/Wasser-Wärmepumpe, Zentralheizung
Details
Objektbeschreibung
Moternes EFH exklusiver Ausstattung,
Wintergarten und Balkon sowie einer geräumigen
Doppelgarage und großem Grundstück. Das
Objekt ist nicht Unterkellert.
Ausstattung
Befeuerung/Energieträger Erdwärme
Einbauküche vorhanden: Ja
Markisen (elektrisch)
Jalousien
Edelholz-Innentüren
Ganzglas-Innentüren
Laminatboden
Fliesen-Bodenbelag
Erdwärme
Zentrale Warmwassererzeugung
Holztreppe
Badewanne/Dusche/WC
Dusche/WC
Bad mit Fenster
offene...
Weitere Informationen
Das EFH wird mit Erdwärme beheizt. Keine
Heizkosten für Gas oder Öl. Die
Abwasserentsorgung erfolgt über eine
ökologische Kläranlage. Keine Kosten für
Abwasser. Die Wasserversorgung erfolgt über
das öffentliche Netz. Das Grundstück besitzt
zusätzlich einen eigenen Brunnen. Die Raumluft
wird zusätzlich...
Anbieter der Immobilie
Online-ID: 2mx445j
Referenznummer: HM/Kling
Finde Angebote wie dieses
Hier geht es zu unserem Impressum, den Allgemeinen Geschäftsbedingungen, den Hinweisen zum Datenschutz und nutzungsbasierter Online-Werbung.