

Sparkasse Forchheim in Vertretung der Sparkassen-Immobilien-Vermittlungs-GmbH
Herr Jona Seitz
091 ···
Nr. anzeigenPreise & Kosten
Provision für Käufer
3,57 % inkl. MwSt.
Lage
Eingebettet zwischen Feldern, Wiesen und Mischwäldern liegt die 1000-jährige Stadt im unteren Wiesenttal. Die historische Altstadt wird durch die Marienkapelle, Marktplatz, sehenswerten Fachwerkhäusern, das Wasserschöpfrad und zwei Scheunenviertel geprägt. Geschäfte, Cafes und Gaststätten laden zum Bummeln und Verweilen...
Das Haus
Kategorie
Mehrfamilienhaus
Baujahr
1953
Energie & Heizung
Warum sehe ich diese Anzeige? – Du siehst diese Anzeige basierend auf Ihrer Navigation auf unserer Website und den Suchkriterien, die du verwendet hast.
Energieausweistyp
Bedarfsausweis
Gebäudetyp
Wohngebäude
Baujahr laut Energieausweis
1953
Wesentliche Energieträger
Öl
Gültigkeit
19.09.2025 bis 18.09.2035
Effizienzklasse
H
Endenergiebedarf
260,50 kWh/(m²·a)
Weitere Energiedaten
Haustyp
Massivhaus
Energieträger
Öl
Heizungsart
Zentralheizung
Details
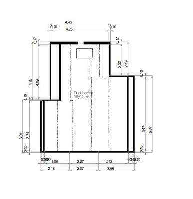
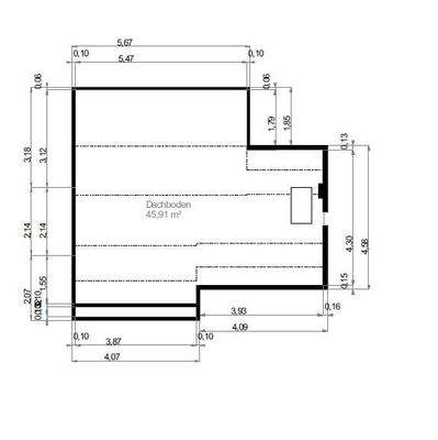
Objektbeschreibung
Das Doppelhaus besteht aktuell aus zwei Doppelhaushälften, die beide separat genutzt werden. Die Häuser können jedoch auch miteinander verbunden und als Einfamilienhaus umgebaut werden.
Das Haus wurde nachträglich mit einer Außenisolierung ausgestattet.
Die linke Doppelhaushälfte hat einen klassischen Schnitt und ca...
Ausstattung
Energieausweis DHH 1:
Heizung: Öl (Bauj. 1990), Energiebedarfsausweis: 260,5 kWh/(m²·a), EEK: H,
Energieausweis DHH 2:
Heizung: Strom - Nachtspeicheröfen (Bauj. 1980), Energiebedarfsausweis: 205,4 kWh/(m²·a), EEK: G,
Weitere Informationen
Stichworte
Garage vorhanden, Nutzfläche: 204,21 m², Anzahl der Schlafzimmer: 5, Anzahl der Badezimmer: 4, Anzahl Balkone: 1, Anzahl Terrassen: 1, Bundesland: Bayern
Sonstiges: Etagenheizung
Anbieter der Immobilie
Sparkasse Forchheim in Vertretung der Sparkassen-Immobilien-Vermittlungs-GmbH
Klosterstr. 14, 91301 Forchheim

Online-ID: 2mxbm5v
Referenznummer: 1/20/214-214/010897
Finde Angebote wie dieses
Hier geht es zu unserem Impressum, den Allgemeinen Geschäftsbedingungen, den Hinweisen zum Datenschutz und nutzungsbasierter Online-Werbung.