
RE/MAX Prime Immobilien | Baldur Immobilien GmbH
Frau Waltraud Grabl
004 ···
Nr. anzeigenPreise & Kosten
Provision für Käufer
3,57 % inkl. 19 % MwSt. inkl. MwSt.
Lage
Die Doppelhaushälfte befindet sich in einer gewaschsenen und angenehm ruhigen Wohnsiedlung von Pienzenau, etwa 2 km westlich von Grafing-Bahnhof. Diese Lage vereint ein entspanntes Wohnumfeld mit einer alltagstauglichen Anbindung - ideal sowohl für Berufspendler als auch für Familien.
Für den täglichen Weg nach...
Das Haus
Kategorie
Doppelhaushälfte
Baujahr
1999
Bezug
01.02.2026
Energie & Heizung
Warum sehe ich diese Anzeige? – Du siehst diese Anzeige basierend auf Ihrer Navigation auf unserer Website und den Suchkriterien, die du verwendet hast.
Energieausweistyp
Verbrauchsausweis
Gebäudetyp
Wohngebäude
Baujahr laut Energieausweis
2000
Wesentliche Energieträger
ERDWAERME
Gültigkeit
bis 08.12.2035
Effizienzklasse
A+
Endenergieverbrauch
23,81 kWh/(m²·a)
Weitere Energiedaten
Heizungsart
Fußbodenheizung
Details
Objektbeschreibung
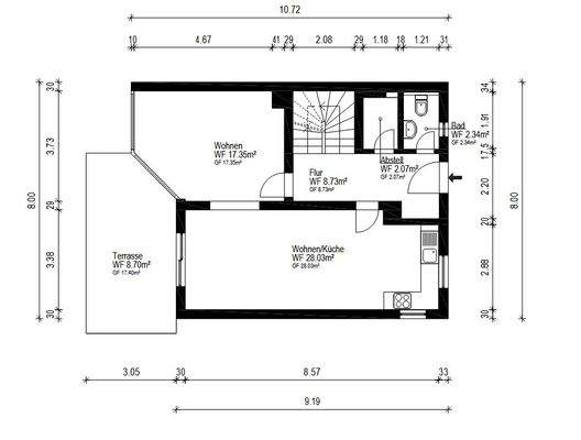
Willkommen in Ihrer neuen Doppelhaushälfte in Bruck-Pienzenau, einem malerischen Teil des Landkreises Ebersberg. Dieses gepflegte Haus aus dem Baujahr 1999 bietet Ihnen ein komfortables und modernes Wohnambiente mit einer großzügigen Wohnfläche von 161 m².
Auf drei Etagen verteilt, finden Sie insgesamt fünf Zimmer...
Ausstattung
Bauweise & Komfort
- Außen- und Innenwände in massiver Ziegelbauweise
- Komplett barrierefreies Erdgeschoss
- Fußbodenheizung in allen Wohnräumen vom Erdgeschoss bis zum Dachgeschoss
- Heizung über energiesparende Wärmepumpe mit Erdwärme
Wohnen & Grundriss
- Wohnzimmer mit Kaminanschluss und...
Preisinformation
1 Garagenstellplatz
Weitere Informationen
Sonstiges
Rechtlicher Hinweis:
3,57% Käuferprovision inkl. MwSt. vom notariell beurkundeten Kaufpreis, verdient und fällig bei notarieller Beurkundung. Wir haben einen provisionspflichtigen Maklervertrag in gleicher Höhe mit dem Eigentümer abgeschlossen.
Wir haben die Wohnfläche durch Ansicht der Pläne...
Anbieter der Immobilie
RE/MAX Prime Immobilien | Baldur Immobilien GmbH
Semmelweisstraße 8, 82152 Planegg - Steinkirchen
Online-ID: 2mxtj5r
Referenznummer: 1000-138
Finde Angebote wie dieses
Hier geht es zu unserem Impressum, den Allgemeinen Geschäftsbedingungen, den Hinweisen zum Datenschutz und nutzungsbasierter Online-Werbung.