Elidagasse 24 Errichtungs GmbH

Herr Bernhard SPÖRK

WOHNEN IN WOLFSBERG DEM PARADIES KÄRNTENS

€ 633.000
Kaufpreis
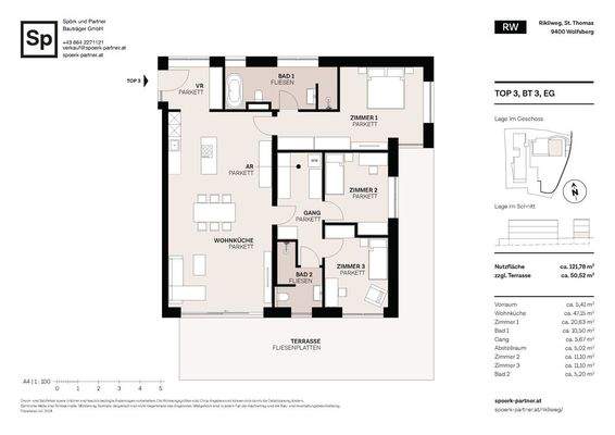
121,78 m²
Wohnfläche ca.
4
Zimmer
Finanzierung berechnen mit durchblicker

Der Anbieter dieses Objekts hat gegenüber der AVIV Germany GmbH als Betreiber dieses Online-Marktplatzes erklärt, nicht als Unternehmer im Sinne des § 1 KSchG zu handeln. Die im Verbraucherschutzrecht der Union verankerten Verbraucherrechte (insbesondere Informationspflichten und Rücktritts- bzw. Widerrufsrechte) finden auf den Vertrag zwischen dem Anbieter des Objekts und Ihnen (dem Interessenten) keine Anwendung.

Gewerblicher Anbieter

Der Anbieter dieses Objekts hat gegenüber der AVIV Germany GmbH als Betreiber dieses Online-Marktplatzes erklärt, als Unternehmer im Sinne des § 1 KSchG zu handeln.

AdresseRikliweg
9400 Wolfsberg 
Auf Karte ansehen

Preise & Kosten

Kaufpreis € 633.000 2 Stellplätze, je € 20.000

Provision für Käufer

Bitte beachte, das Angebot kann bei Vertragsabschluss die Zahlung einer Provision beinhalten. Weitere Informationen erhältst Du vom Anbieter.

Lage

Diese Lage spielt in Wolfsberg in einer eigenen Liga:

. Ruhig & sonnig, mit Blick auf Koralpe & Saualpe
. Zentrum in Minuten, alles alltagsnah
. LKH, Ärzte, Apotheken, Schulen, Einkauf - ums Eck
. Natur vor der Haustür, Wege zum Abschalten, Berge, die tragen
. Top-Anbindung: A2, Bus...

Mehr anzeigen

Die Wohnung

Wohnungslage

Erdgeschoss

Bezug

Frühjahr 2027

  • Bad mit Fenster und Dusche
  • Garten
  • Böden: Parkett
  • Zustand: Erstbezug
  • Anschlüsse: Kabelanschluss

Wohnanlage

  • Baujahr: 2026
  • Personenaufzug
  • 2 Stellplätze: Tiefgarage

Energie & Heizung

Heizwärmebedarf (HWB)

B

43,00 kWh/(m²·a)

Gesamtenergieeffizienz (fGEE)

A+

0,57

Weitere Energiedaten

Heizungsart

Fußbodenheizung

Details

Objektbeschreibung

Am Rikliweg entsteht Wohnen, das berührt - und Wohnung 3 in Stiege 3 ist eine jener großen Gartenwohnungen, die sofort das Gefühl vermitteln: Hier kann man bleiben. Auf 121,78 m² Wohnfläche entsteht ein großzügiger Familiengrundriss mit viel Platz, klaren Linien und einem starken Bezug ins Freie.

Der offen gestaltete...

Mehr anzeigen

Ausstattung

Wohnen, das man spürt - in jedem Detail:

. Eichenparkett, warm und beständig
. Edles Feinsteinzeug, ruhig und zeitlos
. 50er Ziegel + Thermoputz, ökologisch & langlebig
. 3-fach-Verglasung, Stille im besten Sinn
. Elektrische Raffstores, Licht nach Stimmung
. 280 cm Raumhöhe, Luft & Weite
...

Mehr anzeigen

Preisinformation

2 Tiefgaragenstellplätze, Kaufpreis je: 20.000,00 EUR

Weitere Informationen

Sonstiges
Spörk und Partner - Elementares Wohnen seit 15 Jahren.

Als Familienunternehmen bauen wir nicht Masse, sondern das Zuhause, das Menschen wirklich suchen:
. persönlich
. gewissenhaft
. mit Haltung.

Der Rikliweg ist unser erstes Projekt in der Heimat - mit allen Erfahrungen, die wir...

Mehr anzeigen

Anbieter der Immobilie

Partner

Elidagasse 24 Errichtungs GmbH

Rotenturmstrasse 6/11, 1010 WIEN

user

Herr Bernhard SPÖRK

Dein Ansprechpartner

Anbieter-Website Anbieter-Profil Anbieter-Impressum

Online-ID: 2mz7t5j

Referenznummer: 9433

Finde Angebote wie dieses

imageimageimage

Günstige Immobilienfinanzierung einfach online berechnen

Persönliches Angebot berechnen

Hier geht es zu unserem Impressum, den Allgemeinen Geschäftsbedingungen, den Hinweisen zum Datenschutz und nutzungsbasierter Online-Werbung.