
Engel & Völkers Immobilien Deutschland GmbH
Engel & Völkers Berlin-Brandenburg MMC
+49 ···
Nr. anzeigenPreise & Kosten
Provision für Käufer
Weitere Informationen siehe Provisionshinweis.
Lage
Die Immobilie befindet sich in der Rheingoldstraße 6, einer ruhigen und gepflegten Seitenstraße im beliebten Berliner Ortsteil Karlshorst (Lichtenberg). Das Umfeld ist geprägt von charaktervollen Altbauten, Einfamilienhäusern und viel Grün, was den besonderen Wohnwert dieser Lage ausmacht.
Karlshorst gilt als einer der...
Das Haus
Kategorie
Mehrfamilienhaus
Baujahr
1926
Energie & Heizung
Warum sehe ich diese Anzeige? – Du siehst diese Anzeige basierend auf Ihrer Navigation auf unserer Website und den Suchkriterien, die du verwendet hast.
Energieausweistyp
Bedarfsausweis
Gebäudetyp
Wohngebäude
Baujahr laut Energieausweis
1926
Gültigkeit
seit 10.08.2025
Effizienzklasse
H
Endenergiebedarf
288,00 kWh/(m²·a)
Weitere Energiedaten
Energieträger
Gas
Heizungsart
Zentralheizung
Details
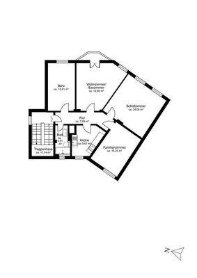
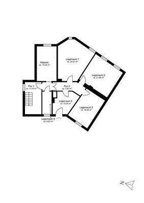
Objektbeschreibung
Dieses gepflegte Mehrfamilienhaus aus dem Jahr 1926 befindet sich in einer ruhigen und grünen Wohnlage von Berlin-Karlshorst, einem der beliebtesten Stadtteile im Südosten der Hauptstadt. Das Objekt ist vollständig vermietet und bietet eine solide Grundlage für eine langfristige Kapitalanlage. Das Haus umfasst insgesamt ca...
Preisinformation
1 Garagenstellplatz
Weitere Informationen
Provisionshinweis
Kommt auf Grundlage unserer Maklerleistung ein Kaufvertrag über das Objekt zustande, ist der Kunde verpflichtet, eine Maklerprovision in Höhe von 3,57 % einschließlich der gesetzlichen Umsatzsteuer zu zahlen. Die Berechnungsgrundlage für die Provision ist der Gesamtkaufpreis, der sich aus dem Kaufpreis...
Anbieter der Immobilie
Online-ID: 2mz955l
Referenznummer: I-0476RR-W-0476RR
Finde Angebote wie dieses
Hier geht es zu unserem Impressum, den Allgemeinen Geschäftsbedingungen, den Hinweisen zum Datenschutz und nutzungsbasierter Online-Werbung.