

Bauernhaus zum Kauf245000 €2.042 €/m²120 m² • 6.399 m² Grundstück
245000 €
2.042 €/m²
120 m² • 6.399 m² Grundstück
Selbstversorgerhof in den weiten Feldern des Anklamer Landes
Merkmale
- 6.399 m² Grundstück
- Fernblick
- Fenster: Kunststoff
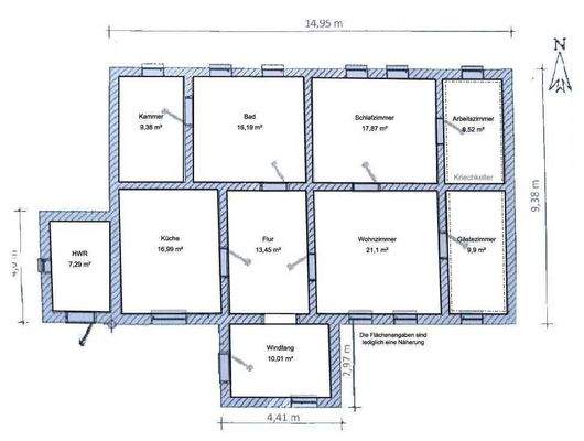
Grundrisse
Grundrisse
1 / 1
Realisiere Dein Projekt
Bausubstanz und Energie
Der Anbieter hat keine Informationen zum Energieverbrauch bereit gestellt.
- HeizungsartZentralheizung: Ofen
- EnergieträgerElektro, Holz
Preisdetails
Kaufpreis
245000 €
2.041,67 €/m²
Provision für Käufer
Die Käuferprovision in Höhe von 3,5 % inkl. 19 % gesetzlicher MwSt. ist im Kaufpreis nicht
enthalten und vom Käufer bei notarieller Beurkundung zu zahlen
Geschätzte Gesamtkosten
273.175 €1
Kaufpreis
245.000 €
Kaufnebenkosten
28.175 €
2Notarkosten (1,5%)
3.675 €
Grunderwerbsteuer (6%)
14.700 €
Provision für Käufer (3,5%)
8.575 €
Grundbucheintrag (0,5%)
1.225 €
1Der angezeigte Wert ist eine automatisch berechnete Schätzung von immowelt.
2Bei den Angaben handelt es sich um ortsübliche Werte. Individuelle Kosten können abweichen.
Lage

Japenzin, Spantekow (17392)
Der Anbieter hat die genaue Adresse nicht freigegeben
Weitere Informationen
Weitere Services
Lust auf eine Besichtigung?
Eine Frage zur Immobilie?
Ăśber den Anbieter
landluft UG (haftungsbeschränkt)Maklerbüro
Friedrichshof 14, 17309 Fahrenwalde

Erik SchmitzDein Kontakt
Online-ID: 2mzwl5v


landluft UG (haftungsbeschränkt)
Wie zufrieden bist du mit dieser Seite (nicht mit der Immobilie selbst)?

