
WEIDA Immobilien
Herr Siegmar WEIDA
+49 ···
Nr. anzeigenPreise & Kosten
Provision für Käufer
provisionsfrei
Lage
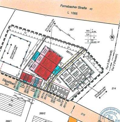
In Murrhardt, in einer kaum befahrenen Seiten- und Anlieger-Straße gelegen, Stadtrand-Lage, direkt neben Wald und Wiesen - gleich im Anschluss "Natur Pur"!
Das Grundstück
Details
Objektbeschreibung
SOFORT bebaubar- die Baugenehmigung liegt vor!
Kinder-Bonus 3.000.- €! Reihen-Mittelhaus Grundstück - Naturnah leben - angrenzend zu Wald und Wiesen in Murrhardt!
Das Reihen-Mittelhaus Grundstück, mit ca. 165 m² Fläche, wird Ihnen im Teil-Eigentum des 2. Bauabschnitt zum Kauf angeboten. Die leicht am Hang...
Weitere Informationen
Sonstiges
KEINE Makler- und Vermittlungsprovision, SIE erwerben das Grundstück direkt vom Projektentwickler und Eigentümer!
Stichworte
Stadtrandlage
Anbieter der Immobilie
WEIDA Immobilien
Winnender Straße 9, 71404 Korb
Online-ID: 2ncfu58
Referenznummer: 666#cR7syh
Finde Angebote wie dieses
Hier geht es zu unserem Impressum, den Allgemeinen Geschäftsbedingungen, den Hinweisen zum Datenschutz und nutzungsbasierter Online-Werbung.