

TWE-Immobilien Thomas Erthle e. K.
Herr Bernd Seilheimer
+49 ···
Nr. anzeigenPreise & Kosten
Provision für Käufer
3,57 % inkl. MwSt.
Lage
Die Wohnung liegt in einem gewachsenen Wohngebiet von Rheinstetten-Forchheim. Das Mehrfamilienhaus steht bewusst in zweiter Reihe zur Straße und bietet dadurch eine angenehm ruhige Wohnlage, fernab von Verkehrslärm, bei gleichzeitig sehr guter Erreichbarkeit.
Rheinstetten-Forchheim zeichnet sich durch eine ausgewogene...
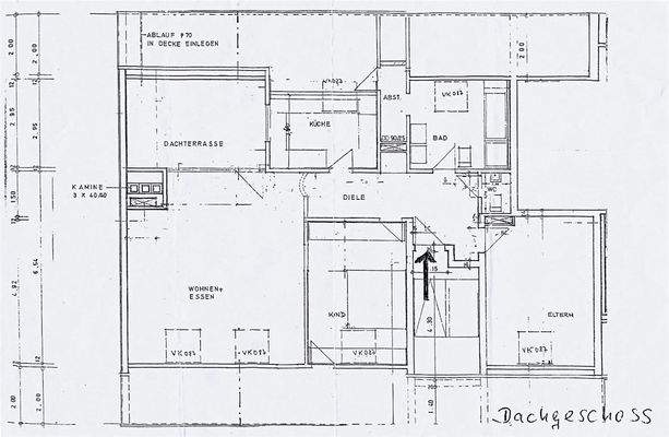
Die Wohnung
Wohnungslage
4. Geschoss (Dachgeschoss)
Bezug
sofort
Derzeitige Nutzung
frei
Wohnanlage
Energie & Heizung
Warum sehe ich diese Anzeige? – Du siehst diese Anzeige basierend auf Ihrer Navigation auf unserer Website und den Suchkriterien, die du verwendet hast.
Energieausweistyp
Verbrauchsausweis
Gebäudetyp
Wohngebäude
Baujahr laut Energieausweis
1996
Wesentliche Energieträger
Öl
Gültigkeit
19.11.2018 bis 19.11.2028
Effizienzklasse
D
Endenergieverbrauch
116,00 kWh/(m²·a)
Weitere Energiedaten
Energieträger
Öl
Heizungsart
Zentralheizung
Details
Objektbeschreibung
Diese gepflegte 3,5-Zimmer-Eigentumswohnung stellt eine interessante Kapitalanlage in gefragter Wohnlage dar. Sie befindet sich im Dachgeschoss eines ruhigen Mehrfamilienhauses, das zurückversetzt von der Straße liegt und dadurch eine hohe Wohnqualität bietet - ein wichtiges Kriterium für eine nachhaltige...
Ausstattung
- Einbauküche
- Bad mit Dusche, Wanne und Fenster
- Gäste-WC
- Dachterrasse
- Fliesen
- Laminat
- Abschließbarer Keller
- Gemeinschaftlicher Waschmaschinenkeller
- Garage (€ 10.000)
Preisinformation
1 Garagenstellplatz, Kaufpreis: 10.000,00 EUR
Weitere Informationen
Sonstiges
Wir sind der allein beauftragte Makler und freuen uns auf Sie und Ihre Anfrage.
Um eine schnelle Bearbeitung zu gewährleisten, übermitteln Sie uns bitte Ihre vollständigen Kontaktdaten mit Telefon-Nr. und E-Mail-Adresse.
Wir vermitteln - mit Sicherheit.
Anbieter der Immobilie

Online-ID: 2ncp855
Referenznummer: 3637 (1/3637)
Finde Angebote wie dieses
Hier geht es zu unserem Impressum, den Allgemeinen Geschäftsbedingungen, den Hinweisen zum Datenschutz und nutzungsbasierter Online-Werbung.