
NASPA Immobilien GmbH
Herr Oliver Soll
061 ···
Nr. anzeigenPreise & Kosten
Provision für Käufer
provisionsfrei
Lage
Das Neubauprojekt befindet sich im Frankfurter Stadtteil Sossenheim, im Westen der Mainmetropole. Sossenheim grenzt westlich an Unterliederbach und Höchst, nördlich an Eschborn, Schwalbach am Taunus und Sulzbach (Taunus) sowie östlich an Rödelheim. Der Stadtteil bietet eine sehr gute Infrastruktur: Zahlreiche...
Wohnanlage
Energie & Heizung
Warum sehe ich diese Anzeige? – Du siehst diese Anzeige basierend auf Ihrer Navigation auf unserer Website und den Suchkriterien, die du verwendet hast.
Energieausweistyp
Bedarfsausweis
Gebäudetyp
Wohngebäude
Baujahr laut Energieausweis
2025
Wesentliche Energieträger
Elektroenergie
Gültigkeit
05.01.2025 bis 04.01.2035
Effizienzklasse
A+
Endenergiebedarf
15,90 kWh/(m²·a)
Weitere Energiedaten
Energieträger
Elektro
Haustyp
KfW 55
Details
Objektbeschreibung
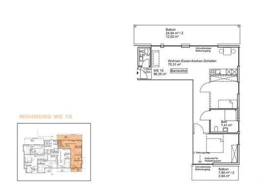
Wir präsentieren Ihnen eine hervorragend geschnittene 3-Zimmer-Wohnung im 1. Obergeschoss mit 2 Balkonen.
Bereits im Eingangsbereich finden Sie auf der linken Seite das Gäste-WC. Geradeaus öffnet sich der großzügige, lichtdurchflutete Wohn- und Essbereich mit großer Fensterfront und direktem Zugang zum großzügigen Balkon...
Ausstattung
* Provisionsfrei für Kaufende
* KfW 55
* Tiefgarrage
* Kellerraum
* Fahrradstellraum
* Gäste-WC
* Aufzug / Barrierefrei
* Balkon oder Terrasse
* Garten/-mitbenutzung
* Teilweise Gartenanteil
* Exklusive Dachterrassen
* Stellplätze für Kinderwagen
* Elektrisch betriebene Rollläden
*...
Preisinformation
1 Tiefgaragenstellplatz, Kaufpreis: 35.000,00 EUR
Weitere Informationen
Provisionshinweis
prov.frei
Die Käufercourtage ist verdient und fällig mit notarieller Beurkundung des Kaufvertrages. Die NASPA IMMOBILIEN GmbH hat einen provisionspflichtigen Maklervertrag mit dem Verkäufer abgeschlossen.Die Käufercourtage ist verdient und fällig mit notarieller Beurkundung des Kaufvertrages. Die NASPA...
Dokumente
Anbieter der Immobilie
NASPA Immobilien GmbH
Adolfstr. 1, 65185 Wiesbaden
Online-ID: 2ndm553
Referenznummer: 07-25-0023-10
Finde Angebote wie dieses
Hier geht es zu unserem Impressum, den Allgemeinen Geschäftsbedingungen, den Hinweisen zum Datenschutz und nutzungsbasierter Online-Werbung.