
WERTGRUND Immobilien Verwaltungs GmbH
Frau Roberta Wiesinger
Kontaktiere den Anbieter schriftlich, es ist keine Telefonnummer hinterlegt.
Preise & Kosten
Kaution
5.040,00 €
Warum sehe ich diese Anzeige? – Du siehst diese Anzeige basierend auf Ihrer Navigation auf unserer Website und den Suchkriterien, die du verwendet hast.
Lage
Am südlichen Stadtrand Hannovers - im Stadtteil Döhren-Wülfel - finden Sie das Neubauquartier "Am Brabrinke" direkt zwischen der Hildesheimer Straße und dem Naturschutzgebiet "Leineauen" mit Verbindung zum Maschsee.
Dinge für den täglichen Bedarf finden Sie zum Teil direkt im Quartier. Hier sollen ein Bäcker, ein...
Die Wohnung
Kategorie
Terrassenwohnung
Wohnungslage
Erdgeschoss
Bezug
nach Absprache
Wohnanlage
Energie & Heizung
Warum sehe ich diese Anzeige? – Du siehst diese Anzeige basierend auf Ihrer Navigation auf unserer Website und den Suchkriterien, die du verwendet hast.
Energieausweistyp
Bedarfsausweis
Gebäudetyp
Wohngebäude
Effizienzklasse
B
Endenergiebedarf
53,00 kWh/(m²·a)
Weitere Energiedaten
Energieträger
Fernwärme
Heizungsart
Fußbodenheizung
Details
Objektbeschreibung
Diese hochwertige Neubauwohnung im Erdgeschoss bietet modernen Wohnkomfort und ist vollständig rollstuhlgerecht gestaltet. Helle, großzügige Räume, Echtholzparkett und bodentiefe Fenster schaffen eine angenehme Wohnatmosphäre. Das elegante Tageslichtbad überzeugt mit einer großzügigen Walk In Dusche. Die moderne Einbauküche...
Ausstattung
. Neubau, barrierefrei & rollstuhlgerecht
. Erdgeschosswohnung mit Terrasse
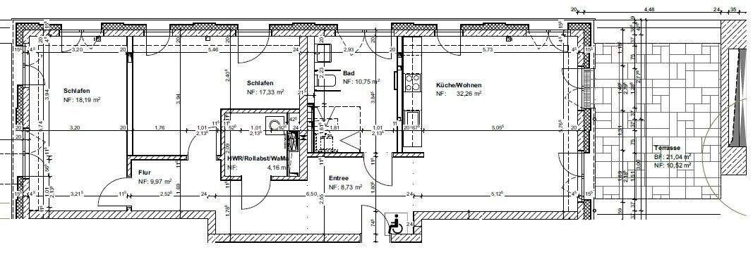
. 3 Zimmer
. ca. 111,91 m² Wohnfläche
. Aufzug bis zur Tiefgarage
. Helle Räume & bodentiefe Fenster
. Hochwertiges Echtholzparkett
. Tageslichtbad mit Walk In Dusche
. Moderne Einbauküche inklusive
. glatte...
Preisinformation
1 Garagenstellplatz, Miete: 100,00 EUR
Nettokaltmiete: 1.680,00 EUR
Weitere Informationen
Sonstiges
Hinweis zur Terminvereinbarung:
Die Besichtigungstermine werden von uns ausschließlich per E-Mail vergeben. Bitte nehmen Sie daher mit uns über den "Kontakt-Button" des Portals Kontakt auf. Sie erhalten dann von uns eine Einladung zur Besichtigung mit mehreren Termin-Optionen.
WERTGRUND Homepage -...
Dokumente
Anbieter der Immobilie
Frau Roberta Wiesinger
Dein Ansprechpartner
Kontaktiere den Anbieter schriftlich, es ist keine Telefonnummer hinterlegt.
Online-ID: 2nehu56
Referenznummer: H-HDH452-WL-02.1003
Finde Angebote wie dieses
Hier geht es zu unserem Impressum, den Allgemeinen Geschäftsbedingungen, den Hinweisen zum Datenschutz und nutzungsbasierter Online-Werbung.