Riwog Real Estate Management GmbH

Herr Learco Andrea Tews, MSc (WU)

MIETKAUF | Ca. 404 m² Nutzfläche | Sanierungsbedürftig | Potenzial zum Luxuseinfamilienhaus oder Mehrgenerationenhaus | Ost/West | Großer Garten & Gar

€ 3.620
Gesamtmiete inkl. BK
404,08 m²
Wohnfläche ca.
10
Zimmer
540 m²
Grundstücksfl. ca.

Der Anbieter dieses Objekts hat gegenüber der AVIV Germany GmbH als Betreiber dieses Online-Marktplatzes erklärt, nicht als Unternehmer im Sinne des § 1 KSchG zu handeln. Die im Verbraucherschutzrecht der Union verankerten Verbraucherrechte (insbesondere Informationspflichten und Rücktritts- bzw. Widerrufsrechte) finden auf den Vertrag zwischen dem Anbieter des Objekts und Ihnen (dem Interessenten) keine Anwendung.

Gewerblicher Anbieter

Der Anbieter dieses Objekts hat gegenüber der AVIV Germany GmbH als Betreiber dieses Online-Marktplatzes erklärt, als Unternehmer im Sinne des § 1 KSchG zu handeln.

AdresseStraße nicht freigegeben
1230 Wien 
(Liesing)
Auf Karte ansehen

Preise & Kosten

Gesamtmiete

inkl. Betriebskosten

€ 3.620
Nettokaltmiete € 2.000 Betriebskosten € 200

Kaution

10.860,00 €

Provision für Mieter

Gemäß Erstauftraggeberprinzip bezahlt der Abgeber die Provision.

Lage

Die Liegenschaft liegt inmitten einer Wohngegend umgeben von Einfamilienhäuser. Geschäfte des täglichen Bedarfs befinden sich u.a. im Kaufpark Alterlaa, welcher in einem etwa zwölfminütigem Fußmarsch oder in ca. vier Minuten mit dem Auto erreichbar ist.

Folgende Verkehrsmittel stehen für die öffentliche...

Mehr anzeigen

Das Haus

  • Zustand: renovierungsbedürftig / sanierungsbedürftig
  • Terrasse, Garten
  • 1 Stellplatz: Garage
  • Bad mit Fenster, Wanne und Dusche, Gäste-WC, Bidet

Energie & Heizung

Heizwärmebedarf (HWB)

E

197,40 kWh/(m²·a)

Gesamtenergieeffizienz (fGEE)

E

3,19

Weitere Energiedaten

Energieträger

Öl

Details

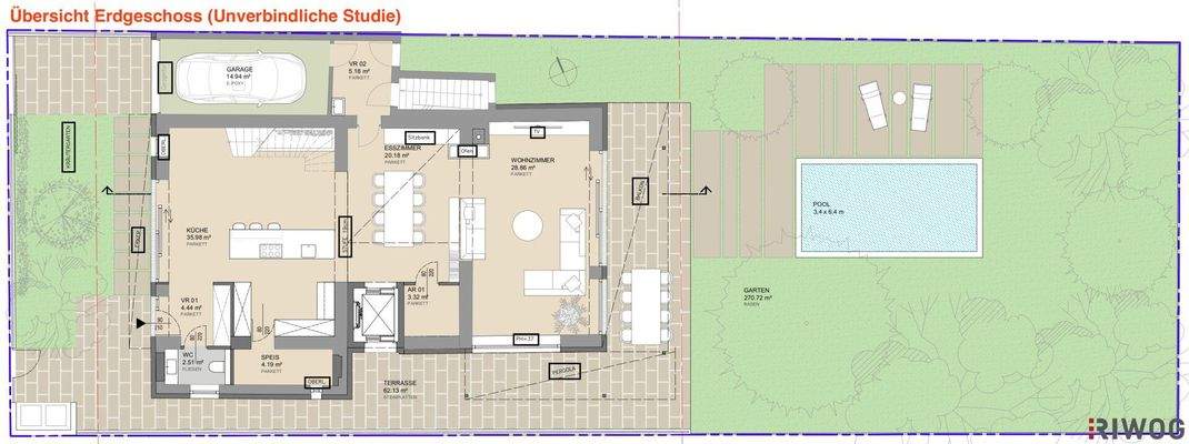
Objektbeschreibung

Zur Vermietung auf 3 Jahre befristet mit Kaufoption gelangt ein sanierungsbedürftiges Haus mit derzeit ca. 404 m² Nutzfläche (inkl. Keller, Dachboden und Garage) in der Johann-Gottek-Gasse inmitten einer gediegenen Wohngegend unweit des Steinsees. Die aktuelle Nutzfläche verteilt sich auf...

Mehr anzeigen

Preisinformation

1 Garagenstellplatz
Nettokaltmiete: 2.000,00 EUR

Weitere Informationen

Stichworte
Garage vorhanden, Ost-Balkon/Terrasse, Anzahl der Badezimmer: 3, Anzahl der separaten WCs: 3, Anzahl Terrassen: 1, Kellerfläche: 29,10 m², Bundesland: Wien

Anbieter der Immobilie

Partner

Riwog Real Estate Management GmbH

im Durchschnitt  5,00  Sterne
(bei 2 Bewertungen)

Börsegasse 12, 1010 WIEN

Geschäftszeiten
user

Herr Learco Andrea Tews, MSc (WU)

Dein Ansprechpartner

Anbieter-Profil Anbieter-Impressum

Online-ID: 2nf6p5a

Referenznummer: OBGC20260128140504538cfdcb90827

Finde Angebote wie dieses

imageimageimage

Hier geht es zu unserem Impressum, den Allgemeinen Geschäftsbedingungen, den Hinweisen zum Datenschutz und nutzungsbasierter Online-Werbung.