
Winkler Eigenheim-Bau-GmbH & Co. KG Town&Country Partner
Herr Stephan Reinhardt
036 ···
Nr. anzeigenPreise & Kosten
Provision für Käufer
Bitte beachte, das Angebot kann bei Vertragsabschluss die Zahlung einer Provision beinhalten. Weitere Informationen erhältst Du vom Anbieter.
Lage
Vieselbach, ein charmanter Ortsteil im Osten der Landeshauptstadt Erfurt, bietet mit seiner ruhigen Wohnlage und hervorragender Infrastruktur den perfekten Rahmen für Ihr neues Reihenhaus mit modernem Wohnkomfort auf drei Etagen.
Informationen zur Infrastruktur:
- Nur 7 km östlich vom Erfurter Stadtzentrum
-...
Das Haus
Kategorie
Reihenmittelhaus
Energie & Heizung
Warum sehe ich diese Anzeige? – Du siehst diese Anzeige basierend auf Ihrer Navigation auf unserer Website und den Suchkriterien, die du verwendet hast.
Weitere Energiedaten
Heizungsart
Fußbodenheizung
Details
Objektbeschreibung
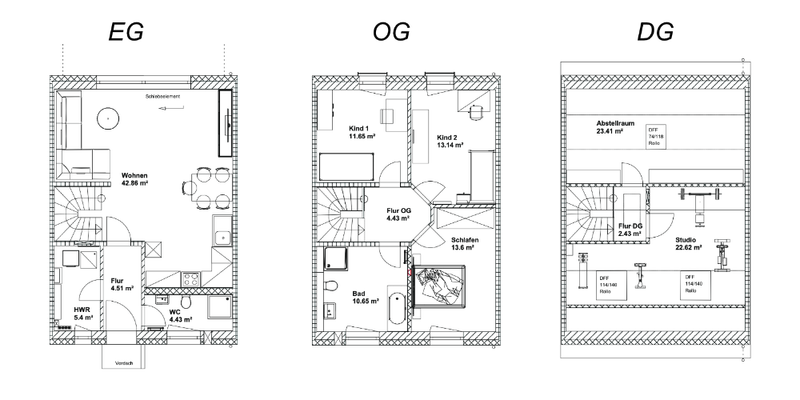
Ein Reihenhaus ist eine optimale Lösung für alle, die sich genügend Raum zum Wohnen wünschen, aber zugleich in einer Region bauen in der Grundstücke knapp sind. Das Mainz 128 wird in klassischer Weise als Kombination von drei Reihenhäusern gebaut. Drei Familien leben quasi unter einem Dach, Sie können von der guten...
Ausstattung
Inklusivleistungen:
. Baugrundgutachten durch ein geologisches Institut
. Bodenplatte & Erdarbeiten
. Luft-Wasser-Wärmepumpe
. Fußbodenheizung
. elektrische Rollläden
. Lüftungsanlage
. Echtholztreppe
. Elektropaket inkl. E-Auto-Anschluss
. Vorrüstung Photovoltaik
. bodengleiche Dusche
...
Preisinformation
Der Gesamtpreis setzt sich zusammen aus den Preisen für Haus und Grundstück.
zzgl. Baunebenkosten und Ihren persönlichen Wünschen.
Bitte beachten Sie, dass Bilder Zusatzausstattung enthalten können.
Hinzu kommen noch die Baunebenkosten wie Grunderwerbssteuer, Versorgeranschlüsse etc.. Auf Wunsch ist...
Weitere Informationen
Sonstiges
Falls das passende Haus noch nicht dabei ist, planen wir gerne gemeinsam mit Ihnen Ihr Traumhaus oder setzen Ihre spezifischen Grundrisswünsche um. Sie haben die Wahl: Ausbauhaus, schlüsselfertig oder bezugsfertig - entscheiden Sie sich für die Option, die am besten zu Ihnen passt. Selbstverständlich realisieren...
Anbieter der Immobilie
Winkler Eigenheim-Bau-GmbH & Co. KG Town&Country Partner
Kranichfelder Straße 49/51, 99097 Erfurt
Online-ID: 2nfdc52
Referenznummer: RMHMainz128 Vieselbach
Finde Angebote wie dieses
Hier geht es zu unserem Impressum, den Allgemeinen Geschäftsbedingungen, den Hinweisen zum Datenschutz und nutzungsbasierter Online-Werbung.