

TWE-Immobilien Thomas Erthle e. K.
Herr Johannes Schieren
+49 ···
Nr. anzeigenPreise & Kosten
Provision für Käufer
3,57 % inkl. MwSt.
Lage
Sehr gut und schnell erreichbar ist der Kindergarten und die Grundschule ca. 1 km sowie einige Geschäfte und Supermärkte ca. 2 bis 3 km.
Das Haus
Kategorie
Reihenmittelhaus
Baujahr
2016
Bezug
01.08.2026
Energie & Heizung
Warum sehe ich diese Anzeige? – Du siehst diese Anzeige basierend auf Ihrer Navigation auf unserer Website und den Suchkriterien, die du verwendet hast.
Energieausweistyp
Bedarfsausweis
Gebäudetyp
Wohngebäude
Baujahr laut Energieausweis
2016
Gültigkeit
11.02.2017 bis 10.02.2027
Effizienzklasse
A
Endenergiebedarf
34,30 kWh/(m²·a)
Weitere Energiedaten
Haustyp
Massivhaus
Energieträger
Fernwärme
Heizungsart
Zentralheizung
Details
Objektbeschreibung
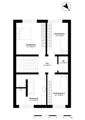
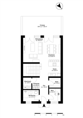
Sehr schönes großes helles Reihenmittelhaus Baujahr 2016. Die großen Fenster lassen so viel Licht in die Räume das Sie sich dort direkt wohlfühlen. Die hochwertigen Bodenfliesen erwärmen über die Fußbodenheizung die Räume optimal. Der Grundriss ist klar gegliedert:
Erdgeschoss: Wohn- Esszimmer, offene Küche, Speis...
Ausstattung
- Tolle, moderne Küche mit großer Theke (kann übernommen werden)
- Hochwertige Fliesen im gesamten Haus - ideal für Fußbodenheizung
- Dezentrale Wohnraumlüftung mit Wärmerückgewinnung (bluMartin) für dauerhaft sehr gute
Luftqualität
- Internet & TV in allen Schlafzimmern sowie im Büro
- Elektrische...
Preisinformation
1 Carportplatz
1 Stellplatz
Weitere Informationen
Sonstiges
Wir sind der allein beauftragte Makler und freuen uns auf Ihre Kontaktaufnahme.
Um eine schnelle Bearbeitung zu gewährleisten, übermitteln Sie uns bitte Ihre vollständigen Kontaktdaten mit Telefon-Nr. und E-Mail-Adresse.
Wir vermitteln mit Sicherheit.
Stichworte
Sonstiges: frei werdend
Anbieter der Immobilie

Online-ID: 2nff656
Referenznummer: 3600 (1/3600)
Finde Angebote wie dieses
Hier geht es zu unserem Impressum, den Allgemeinen Geschäftsbedingungen, den Hinweisen zum Datenschutz und nutzungsbasierter Online-Werbung.