
EHL Immobilien GmbH
Frau Ingrid Neugebauer
+43 ···
Nr. anzeigenPreise & Kosten
inkl. Betriebskosten
Kaution
4.740,00 €
Provision für Mieter
Gemäß Erstauftraggeberprinzip bezahlt der Abgeber die Provision.
Warum sehe ich diese Anzeige? – Du siehst diese Anzeige basierend auf Ihrer Navigation auf unserer Website und den Suchkriterien, die du verwendet hast.
Das Haus
Kategorie
Reihenmittelhaus
Baujahr
2025
Bezug
sofort
Energie & Heizung
Warum sehe ich diese Anzeige? – Du siehst diese Anzeige basierend auf Ihrer Navigation auf unserer Website und den Suchkriterien, die du verwendet hast.
Heizwärmebedarf (HWB)
29,60 kWh/(m²·a)
Gesamtenergieeffizienz (fGEE)
0,66
Weitere Energiedaten
Energieträger
Fernwärme
Heizungsart
Fußbodenheizung
Details
Objektbeschreibung
Die frisch fertiggestellten Reihenhäuser in ökologischer Holzbauweise richten sich an Familien, die modernes Wohnen mit Natur verbinden möchten. Eingebettet in eine grüne Umgebung nahe dem Wiener Neustädter Kanal genießen Sie hier Ruhe, Weite und zahlreiche Freizeitmöglichkeiten direkt vor der Haustür. Spazier- und Radwege...
Preisinformation
Nettokaltmiete: 1.254,62 EUR
Weitere Informationen
Stichworte
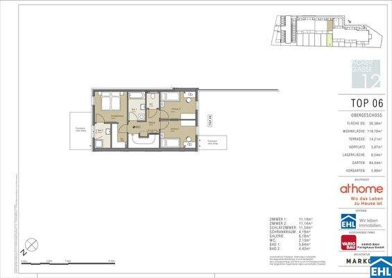
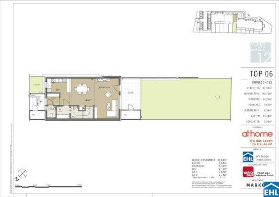
Süd-West-Balkon/Terrasse, Fahrradraum, Rolladen, Anzahl der Badezimmer: 2, Anzahl der separaten WCs: 2, Anzahl Terrassen: 1, Balkon-Terrassen-Fläche: 14,21 m², Gartenfläche: 90,34 m², Bundesland: Niederösterreich, 2 Etagen, Wohnungsnr.: 6
Dokumente
Anbieter der Immobilie
EHL Immobilien GmbH
Prinz-Eugen-Straße 8-10, 1040 WIEN
Online-ID: 2nfwu56
Referenznummer: OBGC20251209092136473a653b79f7b
Finde Angebote wie dieses
Hier geht es zu unserem Impressum, den Allgemeinen Geschäftsbedingungen, den Hinweisen zum Datenschutz und nutzungsbasierter Online-Werbung.