
reAlp Consult
Herr Laurenz Breyer
004 ···
Nr. anzeigenPreise & Kosten
Provision für Käufer
2,975 % inkl. MwSt. vom beurkundeten Kaufpreis zzgl. MwSt.
Lage
Das Grundstück mit Altbestand liegt in der Gemeinde Oberau, einer attraktiven Wohnlage im Landkreis Garmisch-Partenkirchen. Oberau zeichnet sich durch seine ruhige, gewachsene Struktur, die naturnahe Umgebung sowie die sehr gute Anbindung an Garmisch-Partenkirchen und die Landeshauptstadt München aus. München ist sowohl über...
Das Haus
Kategorie
Einfamilienhaus
Baujahr
1970
Energie & Heizung
Warum sehe ich diese Anzeige? – Du siehst diese Anzeige basierend auf Ihrer Navigation auf unserer Website und den Suchkriterien, die du verwendet hast.
Energieausweistyp
Verbrauchsausweis
Gebäudetyp
Wohngebäude
Baujahr laut Energieausweis
1970
Wesentliche Energieträger
OEL
Gültigkeit
bis 16.10.2033
Effizienzklasse
G
Endenergieverbrauch
201,87 kWh/(m²·a)
Weitere Energiedaten
Energieträger
Öl
Details
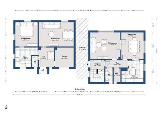
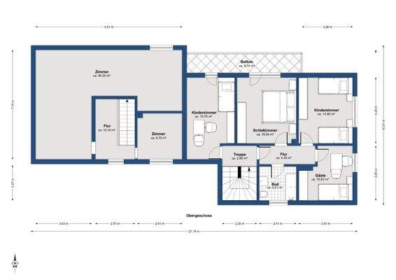
Objektbeschreibung
Zum Verkauf steht ein großzügiges Grundstück mit einer Fläche von über 833 m², bebaut mit zwei baulich miteinander verbundenen Wohnhäusern.
Der vorhandene Altbestand setzt sich aus einem ursprünglichen Wohnhaus aus den 1940er-Jahren (ca. 140 qm WFL) sowie einem direkt angrenzend errichteten Wohnhaus aus dem Baujahr ca...
Ausstattung
- Der Bestand von 1970 ist voll unterkellert
- Der Bestand von 1940 ist teilunterkellert mit Außentreppe
- Das Obergeschoss des Bestands von 1940 teilt sich in 3 Zimmer, Küche und ein Badezimmer auf
- Das Anwesen ist mietfrei
- Der jüngere Bestand wird beheizt; der ältere Bestand wird nicht beheizt
- Eine erste...
Preisinformation
2 Garagenstellplätze
Weitere Informationen
Sonstiges
Haftungshinweis:
Alle Objektangaben, Pläne und Unterlagen stammen vom Eigentümer oder Dritten. Für deren Richtigkeit, Vollständigkeit und Aktualität übernimmt die reAlp Consult keine Haftung. Irrtum, Zwischenverkauf, -vermietung und Änderungen bleiben vorbehalten. Alle Angebote sind...
Anbieter der Immobilie
reAlp Consult
Riedweg 26, 82467 Partenkirchen
Online-ID: 2nfzz55
Referenznummer: 2026-111
Finde Angebote wie dieses
Hier geht es zu unserem Impressum, den Allgemeinen Geschäftsbedingungen, den Hinweisen zum Datenschutz und nutzungsbasierter Online-Werbung.