
Schantl ITH Immobilientreuhand GmbH
Frau Jacqueline Fellner, MBA
+43 ···
Nr. anzeigenPreise & Kosten
Provision für Käufer
Bitte beachte, das Angebot kann bei Vertragsabschluss die Zahlung einer Provision beinhalten. Weitere Informationen erhältst Du vom Anbieter.
Lage
Die angebotenen Grundstücke befinden sich in einer der begehrtesten Wohnlagen der Weststeiermark - in unmittelbarer Nähe zu Lannach und St. Josef (Oisnitz). Eingebettet in eine idyllische, ruhige Umgebung, genießen Sie hier absolute Privatsphäre und einen unvergleichlichen Ausblick auf die sanften Hügel der Region. Die Lage...
Die Immobilie
Zu diesem Angebot wurden vom Anbieter keine weiteren Daten hinterlegt. Für weitere Informationen bitte den Anbieter kontaktieren.
Nach Informationen fragenDetails
Objektbeschreibung
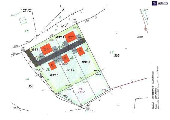
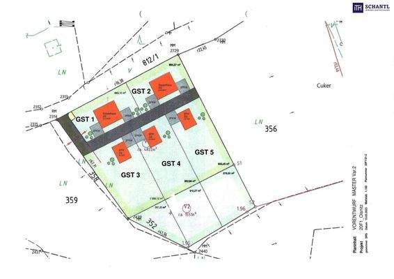
SPITZEN GRUNDSTÜCK, VOLLERSCHLOSSEN MIT HOHER BEBAUUNGSDICHTE - CA. 330M² WOHNFLÄCHE IN OISNITZ / ST. JOSEF - NÄHE LANNACH
IHR TRAUM BEGINNT HIER:
INMITTEN DER IDYLLISCHEN HÜGELLANDSCHAFT DER WESTSTEIERMARK ENTSTEHEN EXKLUSIVE BAUGRUNDSTÜCKE, DIE KEINE WÜNSCHE OFFENLASSEN. MIT EINER...
Preisinformation
Es gibt unterschiedlichste Grundstücksgrößen!
Weitere Informationen
Stichworte
Bundesland: Steiermark
Anbieter der Immobilie

Schantl ITH Immobilientreuhand GmbH
Messendorferstraße 71a, 8041 Graz
Online-ID: 2njvl52
Referenznummer: OBGC20260112101603936cf63ecbd46
Finde Angebote wie dieses
Günstige Immobilienfinanzierung einfach online berechnen
Persönliches Angebot berechnenWarum sehe ich diese Werbung? – Du siehst diese Werbung basierend auf Deiner Navigation auf unserer Website und der von Dir verwendeten Suchkriterien.
Diese Werbung wird bezahlt von durchblicker
Werbung melden
Hier geht es zu unserem Impressum, den Allgemeinen Geschäftsbedingungen, den Hinweisen zum Datenschutz und nutzungsbasierter Online-Werbung.