

RE/MAX Prime Immobilien | Baldur Immobilien GmbH
Frau Kristina Kühn
089 ···
Nr. anzeigenPreise & Kosten
Provision für Käufer
Bitte beachte, das Angebot kann bei Vertragsabschluss die Zahlung einer Provision beinhalten. Weitere Informationen erhältst Du vom Anbieter.
Lage
Dieses Mehrfamilienhaus befindet sich in einer der etablierten Wohngegenden von Gräfelfing, nur wenige Minuten vom lebendigen Ortskern entfernt. Die Nahversorgung ist hervorragend: Supermärkte wie EDEKA, REWE und Landsmann sind schnell erreichbar, ebenso Bäckereien, Apotheken, Ärzte und kleine, lokale Geschäfte.
In...
Das Haus
Kategorie
Einfamilienhaus
Baujahr
1976
Energie & Heizung
Warum sehe ich diese Anzeige? – Du siehst diese Anzeige basierend auf Ihrer Navigation auf unserer Website und den Suchkriterien, die du verwendet hast.
Energieausweistyp
Verbrauchsausweis
Gebäudetyp
Wohngebäude
Baujahr laut Energieausweis
1976
Wesentliche Energieträger
OEL
Gültigkeit
bis 23.11.2034
Effizienzklasse
G
Endenergieverbrauch
202,99 kWh/(m²·a)
Weitere Energiedaten
Energieträger
Öl
Heizungsart
Zentralheizung
Details
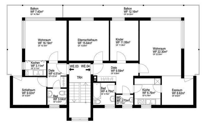
Objektbeschreibung
Klare Zahlen. Klare Struktur. Klare Entscheidung.
Dieses Mehrfamilienhaus in Gräfelfing bietet Ihnen alles, was Kapitalanleger suchen: Top-Lage im Münchner Westen, vier Wohneinheiten, attraktive Außenflächen, solide Substanz - und vor allem: Potenzial für Wertsteigerung und Optimierung.
Die Fakten:
- 4...
Ausstattung
Ausstattung & Investment-Argumente - Substanz, Skalierbarkeit, Strategie
Flächen, die rechnen:
- Wohnfläche ca. 271 m²
- Grundstücksgröße ca. 942 m²
Das ist keine Standard-Immobilie - das ist Investorenfläche mit Perspektive. Großzügig, flexibel nutzbar, solide verwertbar. Hier wird nicht gewohnt - hier...
Preisinformation
3 Stellplätze
3 Garagenstellplätze
Weitere Informationen
Sonstiges
Rechtlicher Hinweis:
Maklercourtage: Ohne zusätzliche Käuferprovision.
Der Makler hat nur mit dem Verkäufer einen Makler-Vertrag abgeschlossen. Gemäß § 656d BGB ist seitens des Verkäufers beabsichtigt, dass der Verkäufer eine Provision in Höhe von maximal 3,57 %, inkl. MwSt., auf den Käufer abwälzt...
Anbieter der Immobilie
RE/MAX Prime Immobilien | Baldur Immobilien GmbH
Semmelweisstraße 8, 82152 Planegg - Steinkirchen

Online-ID: 2nmp852
Referenznummer: 1000-152
Finde Angebote wie dieses
Hier geht es zu unserem Impressum, den Allgemeinen Geschäftsbedingungen, den Hinweisen zum Datenschutz und nutzungsbasierter Online-Werbung.