
Wentzel Dr. Vertriebs GmbH
Vermietungsteam Düsseldorf JH
Kontaktiere den Anbieter schriftlich, es ist keine Telefonnummer hinterlegt.
Preise & Kosten
in Warmmiete enthalten
Kaution
6.225,00
Warum sehe ich diese Anzeige? – Du siehst diese Anzeige basierend auf Ihrer Navigation auf unserer Website und den Suchkriterien, die du verwendet hast.
Lage
Die Graf-Recke-Straße in Düsseldorf erstreckt sich zentral im Stadtteil Oberbilk und verknüpft auf kompakte Weise urbanes Lebensgefühl mit guter Erreichbarkeit. Sie verläuft durch eine Mischung aus Wohn- und Gewerbebebauung, wobei sich moderne Neubauten harmonisch neben beständigen Altbauten einfügen. Die Straße bietet eine...
Die Wohnung
Wohnungslage
Erdgeschoss
Bezug
sofort
Wohnanlage
Energie & Heizung
Warum sehe ich diese Anzeige? – Du siehst diese Anzeige basierend auf Ihrer Navigation auf unserer Website und den Suchkriterien, die du verwendet hast.
Energieausweistyp
Verbrauchsausweis
Gebäudetyp
Wohngebäude
Baujahr laut Energieausweis
2010
Wesentliche Energieträger
FERN
Gültigkeit
seit 28.01.2021
Effizienzklasse
C
Endenergieverbrauch
81,00 kWh/(m²·a)
Weitere Energiedaten
Energieträger
Fernwärme
Details
Objektbeschreibung
Die Graf-Recke-Straße 84-92 in Düsseldorf ist ein im Jahr 2010 errichtetes Wohnobjekt mit sieben Hauseingängen, das insgesamt 88 Wohnungen beherbergt. Die Anlage überzeugt durch eine klare, zeitgemäße Architektur sowie solide Bau- und Ausstattungsqualität, die sich in einer ruhigen, gut durchdachten Grundrissgestaltung...
Ausstattung
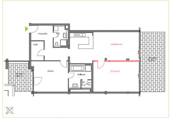
Diese großzügige 3 Zimmer Wohnung verfügt über zwei Terrassen. Das Badezimmer ist mit einer Badewanne, sowie einer Dusche ausgestattet. Zudem verfügt die Wohnung über ein separates Duschbad. Die Wohnräume sind mit einem Parkettboden ausgestattet. Für Abstellmöglichkeiten ist ein Hauswirtschaftsraum in der Wohnung vorhanden...
Preisinformation
1 Tiefgaragenstellplatz, Miete: 100,00 EUR
Nettokaltmiete: 2.075,00 EUR
Weitere Informationen
Sonstiges
Bei Mietvertragsabschluss werden ein Kündigungsausschluss von einem Jahr und eine Indexmiete vereinbart.
Stichworte
Anzahl Terrassen: 1
Dokumente
Anbieter der Immobilie
Wentzel Dr. Vertriebs GmbH
Stresemannallee 102-104, 22529 Hamburg
Vermietungsteam Düsseldorf JH
Dein Ansprechpartner
Kontaktiere den Anbieter schriftlich, es ist keine Telefonnummer hinterlegt.
Online-ID: 2nt495b
Referenznummer: 7828.0024
Finde Angebote wie dieses
Hier geht es zu unserem Impressum, den Allgemeinen Geschäftsbedingungen, den Hinweisen zum Datenschutz und nutzungsbasierter Online-Werbung.