
Winkler Eigenheim-Bau-GmbH & Co. KG Town&Country Partner
Herr Stephan Reinhardt
036 ···
Nr. anzeigenPreise & Kosten
Provision für Käufer
Bitte beachte, das Angebot kann bei Vertragsabschluss die Zahlung einer Provision beinhalten. Weitere Informationen erhältst Du vom Anbieter.
Lage
Alperstedt liegt im südöstlichen Teil des Thüringer Beckens, etwa 10 Kilometer nördlich von Erfurt. Die Gemeinde gehört zum Landkreis Sömmerda und ist Teil der Verwaltungsgemeinschaft Gramme-Vippach. Alperstedt bietet eine perfekte Balance zwischen ländlicher Ruhe und guter Anbindung an städtische Annehmlichkeiten. Hier...
Das Haus
Kategorie
Reihenendhaus
Energie & Heizung
Warum sehe ich diese Anzeige? – Du siehst diese Anzeige basierend auf Ihrer Navigation auf unserer Website und den Suchkriterien, die du verwendet hast.
Weitere Energiedaten
Heizungsart
Fußbodenheizung
Details
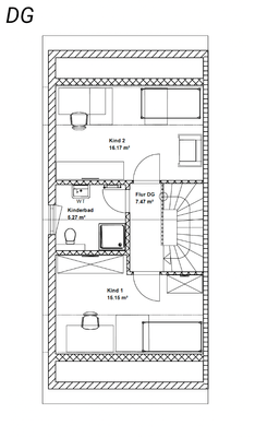
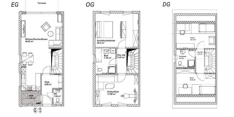
Objektbeschreibung
Ein Reihenhaus ist eine optimale Lösung für alle, die sich genügend Raum zum Wohnen wünschen, aber zugleich in einer Region bauen in der Grundstücke knapp sind. Das Mainz 128 wird in klassischer Weise als Kombination von drei Reihenhäusern gebaut. Drei Familien leben quasi unter einem Dach, Sie können von der guten...
Ausstattung
Inklusivleistungen:
. Baugrundgutachten durch ein geologisches Institut
. Bodenplatte & Erdarbeiten
. Luft-Wasser-Wärmepumpe
. Fußbodenheizung
. elektrische Rollläden
. Lüftungsanlage
. Echtholztreppe
. Elektropaket inkl. E-Auto-Anschluss
. Vorrüstung Photovoltaik
. bodengleiche Dusche
...
Preisinformation
Der Gesamtpreis setzt sich zusammen aus den Preisen für Haus und Grundstück.
zzgl. Baunebenkosten und Ihren persönlichen Wünschen.
Bitte beachten Sie, dass Bilder Zusatzausstattung enthalten können.
Hinzu kommen noch die Baunebenkosten wie Grunderwerbssteuer, Versorgeranschlüsse etc.. Auf Wunsch ist...
Weitere Informationen
Sonstiges
Falls das passende Haus noch nicht dabei ist, planen wir gerne gemeinsam mit Ihnen Ihr Traumhaus oder setzen Ihre spezifischen Grundrisswünsche um. Sie haben die Wahl: Ausbauhaus, schlüsselfertig oder bezugsfertig - entscheiden Sie sich für die Option, die am besten zu Ihnen passt. Selbstverständlich realisieren...
Anbieter der Immobilie
Winkler Eigenheim-Bau-GmbH & Co. KG Town&Country Partner
Kranichfelder Straße 49/51, 99097 Erfurt
Online-ID: 2nv9c52
Referenznummer: REHMainz128 Alperstedt
Finde Angebote wie dieses
Hier geht es zu unserem Impressum, den Allgemeinen Geschäftsbedingungen, den Hinweisen zum Datenschutz und nutzungsbasierter Online-Werbung.