
Donauimmobilien dieHausberater24 GmbH & Co KG
Frau Patricia Sverak
+43 ···
Nr. anzeigenPreise & Kosten
Provision für Käufer
Bitte beachte, das Angebot kann bei Vertragsabschluss die Zahlung einer Provision beinhalten. Weitere Informationen erhältst Du vom Anbieter.
Lage
2753 Dreistetten - naturnah, ruhig und lebenswert | liegt idyllisch am Fuße der Hohen Wand und überzeugt durch seine ruhige, naturnahe Wohnlage. Umgeben von Wiesen, Wäldern und zahlreichen Spazier- und Wanderwegen bietet der Ort hohe Lebensqualität und Erholung direkt vor der Haustüre. Markt Piesting, Wiener Neustadt, Bad...
Das Haus
Baujahr
2026
Energie & Heizung
Warum sehe ich diese Anzeige? – Du siehst diese Anzeige basierend auf Ihrer Navigation auf unserer Website und den Suchkriterien, die du verwendet hast.
Weitere Energiedaten
Haustyp
Massivhaus, Niedrigenergiehaus
Heizungsart
Fußbodenheizung, Luft-/Wasser-Wärmepumpe
Details
Objektbeschreibung
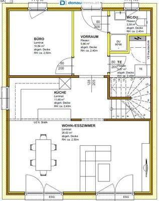
NEUBAU | MODERNES HOLZMASSIVHAUS IN DREISTETTEN
Neubauprojekt auf Baurechtsgrund - Vertragsabschluss direkt mit dem Bauträger, individuelle Anpassungen in der Planungsphase möglich.
Dieses moderne Holzmassivhaus vereint nachhaltige Bauweise mit zeitgemäßem Wohnkomfort. Der Neubau überzeugt durch klare...
Weitere Informationen
Stichworte
Anzahl der Badezimmer: 2, Anzahl der separaten WCs: 2, Bundesland: Niederösterreich
Anbieter der Immobilie
Donauimmobilien dieHausberater24 GmbH & Co KG
Obere Landstraße 9/2, 3500 KREMS
Online-ID: 2nw9956
Referenznummer: OBGC20260116175226498aaab623b59
Finde Angebote wie dieses
Günstige Immobilienfinanzierung einfach online berechnen
Persönliches Angebot berechnenWarum sehe ich diese Werbung? – Du siehst diese Werbung basierend auf Deiner Navigation auf unserer Website und der von Dir verwendeten Suchkriterien.
Diese Werbung wird bezahlt von durchblicker
Werbung melden
Hier geht es zu unserem Impressum, den Allgemeinen Geschäftsbedingungen, den Hinweisen zum Datenschutz und nutzungsbasierter Online-Werbung.