Version: 8.24.0Navigation überspringen
143.000 €
6 Zimmer  •  140 m²
Immowelt logo

Mehrfamilienhaus zum Kauf
143000 €
1.021 €/m²
6 Zimmer  •  140 m²

Zweifamilienhaus in Bad Schmiedeberg

Das Ein- oder Zweifamilienhaus als Doppelhaushälfte eignet sich sowohl zur Eigennutzung als auch für
Kapitalanleger. Hier haben Sie die perfekte Gelegenheit,
ein komfortables und geräumiges Zuhause zu erwerben.
Das Erdgeschoss ist derzeit vermietet und erwirtschaftet Einnahmen
von 4.800 € p.a. Nettokaltmiete.
Mit einer Gesamtwohnfläche von 140 Quadratmetern und einem großzügigen
Grundstück von 550 Quadratmetern ist dieses Haus ideal für
Familien, die Platz und Flexibilität schätzen. Auch ein Generationshaushalt wäre realisierbar.
Das 1933 erbaute Haus beeindruckt mit einer zeittypischen Architektur und
durchdachten Raumaufteilung über zwei Etagen.
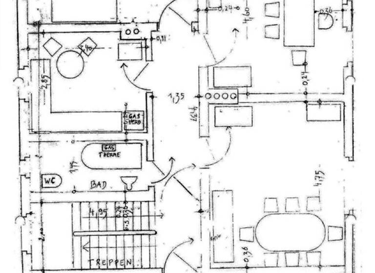
Im Erdgeschoss und im 1. Obergeschoss befinden sich jeweils 3 Zimmer, eine Küche und ein Tageslichtbad mit Wanne und WC.
Das Dachgeschoss ist auf ca. 40 m² weiter ausbaubar.
Eine Wanne und ein WC wurden bereits installiert.
Beheizbar ist das Dachgeschoss mittels verbauter Gastherme.
Die Zentralheizung mit einer umweltfreundlichen Gasbefeuerung stammt aus dem Jahr 2017.
Sie sorgt zuverlässig für wohlige Wärme an kühlen Tagen und wird im
Erdgeschoss durch einen zusätzlichen Kaminofen unterstützt.

Merkmale

  • 2 Stellplätze
- Gaszentralheizung mit Warmwasseraufbereitung
- Kunststofffenster mit Isolierverglasung, die Fenster sind mit Rollläden ausgestattet.
Medien:
- Strom, Gas, Wasser, zentrales Abwasser, Telefon, DSL verfügbar bis 16 MBit/s, bzw. bis 100 MBit/s über
Telekom-Tarif Magenta Zuhause L Hybrid (über Mobilfunk) lt. Verfügbarkeitsprüfung der Telekom

Grundrisse

Grundrisse
1 / 2

Realisiere Dein Projekt

Bausubstanz und Energie

Energieausweis

F
  • Baujahr1933
  • Zustand der ImmobilieAltbau (bis 1945)
  • EnergieträgerGas
Immowelt logo

Preisdetails

Kaufpreis
143000 €
1.021,43 €/m²
Provision für Käufer
3,57 % (inkl. MwSt.) vom Kaufpreis.
Geschätzte Gesamtkosten
158.115 €1
Kaufpreis
143.000 €
Notarkosten (1,5%)
2.145 €
Grunderwerbsteuer (5%)
7.150 €
Provision für Käufer (3,57%)
5.105 €
Grundbucheintrag (0,5%)
715 €
1Der angezeigte Wert ist eine automatisch berechnete Schätzung von immowelt.
2Bei den Angaben handelt es sich um ortsübliche Werte. Individuelle Kosten können abweichen.

Lage

address-icon
Bad Schmiedeberg (06905)
Der Anbieter hat die genaue Adresse nicht freigegeben
Die Doppelhaushälfte liegt nur ca. 10 Gehminuten vom Zentrum
der Kurstadt Bad Schmiedeberg entfernt.
Bad Schmiedeberg ist eine Stadt mit ca. 8.300 Einwohnern
im Landkreis Wittenberg in Sachsen-Anhalt.
Das staatlich anerkannte Moor-, Mineral- und Kneippheilbad Bad
Schmiedeberg liegt im Naturpark Dübener Heide etwa 30 km
südöstlich der Kreisstadt Lutherstadt Wittenberg und etwa 50 km
nordöstlich von Leipzig.
Im öffentlichen Personennahverkehr bestehen Busverbindungen
nach Wittenberg, Pretzsch, Eilenburg und Gräfenhainichen.
Bad Schmiedeberg bietet eine ausgezeichnete Infrastruktur mit
zahlreichen Einkaufsmöglichkeiten, medizinischen Einrichtungen
und einer guten Anbindung an öffentliche Verkehrsmittel.
Die Stadt ist bekannt für ihre heilklimatischen Bedingungen.
In Bad Schmiedeberg gibt es fußläufig in ca. 6 Minuten erreichbar
einen Lebensmitteldiscounter und einen EDEKA.
Eine Bushaltestelle ist nur ca. 100 m, der Busbahnhof ca. 300 m
entfernt. In Bad Schmiedeberg gibt es weitere
Einkaufsmöglichkeiten, Ärzte, Kindergärten und eine Sekundarschule.
Das nächste Gymnasium befindet sich in Wittenberg bzw. in Gräfenhainichen.

Weitere Informationen

Sonstiges Das Haus befindet sich in einem guten Zustand. In den letzten 15
Jahren wurden immer wieder bauliche Modernisierungen und
Verschönerungsarbeiten durchgeführt.
In einigen Räumen, wie z.B. bei den Bädern, müssen allerdings
wieder Renovierungsarbeiten erfolgen.

Weitere Services

Lust auf eine Besichtigung?
Eine Frage zur Immobilie?
Nachricht hinzufügen
Mit der Nutzung der oben angegebenen Telefonnummer oder durch Klicken auf „Kontaktieren“ akzeptierst Du die Allgemeinen Nutzungsbedingungen, denen Du jederzeit widersprechen kannst. Weitere Informationen zum Datenschutz

Über den Anbieter

Breite Str. 6, 04860 Torgau
Frau Patricia MelzigDein Kontakt

Weitere Unterlagen

Online-ID: 2mpwg5l
Referenznummer: BS-Zfh (1/427)
Dr. Jürgen Herzog Immobilien e. K. Inhaberin Patricia Melzig
Dr. Jürgen Herzog Immobilien e. K. Inhaberin Patricia Melzig
Nachricht hinzufügen
Mit der Nutzung der oben angegebenen Telefonnummer oder durch Klicken auf „Kontaktieren“ akzeptierst Du die Allgemeinen Nutzungsbedingungen, denen Du jederzeit widersprechen kannst. Weitere Informationen zum Datenschutz
Wie zufrieden bist du mit dieser Seite (nicht mit der Immobilie selbst)?