Version: 8.24.0Navigation überspringen
Raiffeisen Immobilien Vermittlung GmbH
380.000 €
4 Zimmer  •  152 m²  •  1.320 m² Grundstück

Einfamilienhaus zum Kauf
380000 €
2.500 €/m²
4 Zimmer  •  152 m²  •  1.320 m² Grundstück

Passivhaus in Kilb

Kurzbeschreibung Passivhaus in Kilb Objekt PASSIVHAUS IN KILB
In idyllischer Lage von Kilb erwartet Sie dieses hochwertig errichtete Passivhaus in Mantelbetonbauweise. Das 2010 erbaute Haus überzeugt durch durchdachte Raumaufteilung, energieeffiziente Ausstattung (HWB 10 - A++) und eine großzügige Grundstücksfläche von ca. 1.320 m².
Ideal für Familien oder alle, die modernes, nachhaltiges Wohnen in naturnaher Umgebung schätzen.
ANBOTSPREIS: € 380.000,- inkl. Wohnbauförderung ca. € 57.500,-
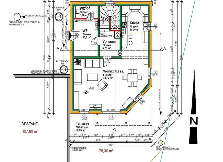
Erdgeschoss - ca. 76,30 m²
  • Windfang
  • zusätzlicher Vorraum
  • separates WC
  • großzügiger Wohn- & Essbereich mit Ausgang auf die Terrasse
  • Küche

Obergeschoss - ca. 75,60 m²
  • Vorraum
  • drei Zimmer (ideal als Schlaf-, Kinder- oder Arbeitszimmer)
  • separates WC
  • großzügiges Badezimmer mit Dusche, Badewanne, Doppelwaschbecken und Waschmaschinenanschluss
  • Zugang zum Dachboden

Gesamtwohnfläche ca. 152m²
?? Ausstattung & Highlights
  • Passivhausstandard (HWB 10 - A++)
  • dreifach verglaste Holz/Alu-Fenster
  • elektrische Außenrollos & teilweise Fliegengitter
  • kontrollierte Wohnraumlüftung mit Wärmerückgewinnung
  • Fußbodenheizung im gesamten Haus
  • Zentralheizung mit Pellets
  • Photovoltaikanlage (7 kW)
  • SAT-Anlage vorhanden
  • Anschlussmöglichkeit für Schwedenofen

  • Grundstücksfläche ca. 1.320 m²
  • Grünland mit erhaltenswertem Gebäude
  • Terrasse
  • französische Balkone
  • Brunnen (gemeinsame Nutzung mit angrenzender Liegenschaft)
  • eigene Kläranlage (nur Wartungskosten, gemeinsame Nutzung)
  • Garage für zwei Autos
  • Carport für zwei Autos
  • genügend Autoabstellplätze

Nähere Informationen werden gerne übermittelt, bzw. freue ich mich sehr, Ihnen diese wunderschöne Liegenschaft präsentieren zu dürfen
Ich weiße sie darauf hin, dass ich als Doppelmakler auftrete!

RAIFFEISEN IMMOBILIENEXKLUSIVER VERTRIEB
KARIN PLESIUTSCHNIG0664/60 517 517 63

! Wir möchten Sie informieren - Maklervertrag (FAGG-Bestimmungen)
Gerne übermitteln wir ihnen ein unverbindliches, kostenloses Angebot mit der Adresse der angefragten Immobilie bzw. vereinbaren mit Ihnen auf Wunsch einen Termin.Alleine durch die Unterfertigung dieses Maklervertrages und die Besichtigung von Objekten entstehen Ihnen keine Kosten. Erst mit dem Abschluss eines Kaufvertrages oder eines Mietvertrages tritt Verdienstlichkeit ein und es wird die Provisionsvereinbarung dieses Vertrages ausgelöst!Bitte haben Sie dafür Verständnis, dass wir Ihnen seit dem 13. Juni 2014 aufgrund der neuen EU-Richtlinie Unterlagen und Informationen zu unseren Objekten erst dann übersenden können, wenn wir Ihre Kontaktdaten inkl. Wohnadresse haben und Sie bestätigen, dass Sie unser vorzeitiges Tätigwerden wünschen und über Ihre Rücktrittsrechte aufgeklärt wurden. Hierfür erhalten Sie nach Ihrer Anfrage eine Email mit den entsprechenden Unterlagen und einem Link, um diese Punkte zu bestätigen.Vielen Dank!

Merkmale

  • 1.320 m² Grundstück
  • offene Küche
  • 2 Stellplätze: 2 Carports, 2 Garagen, 2 Außen-Stellplätze
  • Gäste-WC
  • Garten
  • Terrasse
  • teilweise möbliert

Grundrisse

Grundrisse
1 / 2

Realisiere Dein Projekt

Bausubstanz und Energie

Heizwärmebedarf (HWB)

A++

Gesamtenergieeffizienz (fGEE)

Der Anbieter hat keine Daten zum Energieausweis hinterlegt.
  • Baujahr2010
  • HeizungsartZentralheizung: Fußbodenheizung
  • EnergieträgerPellets
MediumRectangleTop

Preisdetails

Kaufpreis
380000 €
2.500 €/m²
Provision für Käufer
3% des Kaufpreises plus 20% USt.
Weitere Preisinformationen
2 Carportplätze
2 Stellplätze
2 Garagenstellplätze

Lage

address-icon
Fleischessen (3233)
Der Anbieter hat die genaue Adresse nicht freigegeben

Weitere Informationen

Sonstiges
Wikipedia Kilb - https://de.wikipedia.org/wiki/Kilb

Homepage Kilb - https://www.kilb.gv.at/ Stichworte Rolladen, Anzahl der Schlafzimmer: 3, Anzahl der Badezimmer: 1, Anzahl der separaten WCs: 2, Anzahl Terrassen: 1, Bundesland: Niederösterreich Sonstiges/Wohnen: Dachboden

Weitere Services

Lust auf eine Besichtigung?
Eine Frage zur Immobilie?
Nachricht hinzufügen
Mit der Nutzung der oben angegebenen Telefonnummer oder durch Klicken auf „Kontaktieren“ akzeptierst Du die Allgemeinen Nutzungsbedingungen, denen Du jederzeit widersprechen kannst. Weitere Informationen zum Datenschutz

Über den Anbieter

F.-W.-Raiffeisen-Platz 1/ 4.OG, 1020 WIEN, STADT
partner badge
10 Jahre Partnerschaft
Frau Karin PlesiutschnigDein Kontakt

Weitere Unterlagen

Online-ID: 2nfs25q
Referenznummer: 0001011437
Raiffeisen Immobilien Vermittlung GmbH
Raiffeisen Immobilien Vermittlung GmbH
Bewertung: 4,3 von 5 Sternen
Nachricht hinzufügen
Mit der Nutzung der oben angegebenen Telefonnummer oder durch Klicken auf „Kontaktieren“ akzeptierst Du die Allgemeinen Nutzungsbedingungen, denen Du jederzeit widersprechen kannst. Weitere Informationen zum Datenschutz
MediumRectangleTop
MediumRectangleBottom
MediumRectangleTop
Wie zufrieden bist du mit dieser Seite (nicht mit der Immobilie selbst)?