Version: 8.26.0Navigation überspringen
699.000 €
3 Zimmer  •  126 m²  •  679 m² Grundstück
Immowelt logo

Einfamilienhaus zum Kauf - Erstbezug • provisionsfrei
699000 €
5.548 €/m²
3 Zimmer  •  126 m²  •  679 m² Grundstück

Provisionsfrei für Käufer! Ebenerdiges Traumhaus in einmaliger Seelage !

Ihr Traumhaus am See - Exklusives Wohnen in Herzlake

Willkommen in Ihrem neuen Zuhause! Dieses hochmoderne Einfamilienhaus mit Garage liegt in einer privilegierten Lage direkt am Ufer des Sees in Herzlake. Hier verschmelzen Ruhe, Natur und exklusives Wohnen zu einer perfekten Einheit, während Sie dennoch die Annehmlichkeiten der Stadt in unmittelbarer Nähe genießen.

Das Haus wird schlüsselfertig mit zwei großzügigen Schlafzimmern übergeben - für einen sofortigen Einzug und höchsten Wohnkomfort.

Nach Fertigstellung erhalten Sie einen Energieausweis, der die herausragenden energetischen Eigenschaften des Hauses dokumentiert.

Perfekte Lage mit Naturidylle und optimaler Anbindung

Die naturnahe Südlage direkt am See bietet Ihnen eine Oase der Entspannung mit traumhaftem Ausblick. Gleichzeitig profitieren Sie von der Nähe zur Hasenähe in Herzlake sowie einer hervorragenden Infrastruktur: Der Stadtkern ist in nur fünf Minuten erreichbar, und die gute Anbindung an die B213 sorgt für kurze Wege in alle Richtungen.

Erleben Sie modernes Wohnen in einer einzigartigen Umgebung - vereinbaren Sie noch heute einen Besichtigungstermin und lassen Sie sich von diesem besonderen Angebot begeistern!

Merkmale

  • Bezug: nach Vereinbarung
  • 679 m² Grundstück
  • Barrierefrei
  • Badezimmer: Bad mit Dusche, Bad mit Fenster
  • Gäste-WC
  • Bodenbelag: Fliesen
  • 2 Stellplätze: 2 Garagen
Exklusive Ausstattungsmerkmale:

Sicherheit & Komfort: Hochwertige, einbruchssichere Kunststofffenster in stilvollem Schwarz mit dreifacher Isolierverglasung und Raffstores bieten optimalen Schutz und höchsten Wohnkomfort.

Smart Home-Technologie: Die moderne Elektroinstallation inklusive Smarthome-System ermöglicht eine intelligente Steuerung sämtlicher Haustechnik - für maximalen Wohnkomfort und Energieeffizienz.

Wohnambiente mit Seeblick: Die offene Wohn-/Essküche beeindruckt mit einer großzügigen Glasfront und einer eleganten Schiebetür, die einen atemberaubenden Blick auf den See freigibt und eine lichtdurchflutete Wohlfühlatmosphäre schafft.

Hochwertige Bodenbeläge: Das gesamte Erdgeschoss ist mit edlem Feinsteinzeug gefliest - eine Kombination aus stilvoller Optik und pflegeleichter Handhabung.

Modernste Bauweise & Energieeffizienz:

Architektonisches Highlight: Das moderne Pultdach mit hochwertigen schwarzen Tondachpfannen verleiht dem Haus eine markante Optik und eignet sich ideal für die Installation einer Photovoltaikanlage zur nachhaltigen Energiegewinnung.

Energieeffizienz KfW 40: Eine innovative Luftwärmepumpe in Kombination mit einer Fußbodenheizung sorgt für eine nachhaltige, kosteneffiziente Beheizung und ein angenehmes Raumklima.
Glasfaser-Highspeed-Internet: Perfekte digitale Vernetzung dank ultraschnellem Glasfaseranschluss für maximale Konnektivität.

Exklusives Design & Wohnkomfort:

Barrierefreies Designbad: Das modern gestaltete Badezimmer überzeugt mit einer großzügigen, bodengleichen Dusche und stilvoller Ausstattung für höchsten Komfort.

Edle Innenraumgestaltung: Designer-Holzinnentüren mit einer imposanten Höhe von 2,50 m setzen elegante Akzente und verleihen dem Haus eine exklusive Note.

Hochwertige Malerarbeiten: Wände mit hochwertiger, weißer Vliestapete sorgen für ein helles, modernes und harmonisches Wohnambiente.
Perfekt durchdachte Außenanlage:

Gartenidylle & Privatsphäre: Eine liebevoll gestaltete Gartenanlage inklusive Pflasterarbeiten und Zaunanlage schafft eine einladende Wohlfühloase.

Zusätzlicher Raum: Das Dachgeschoss mit Fensteroption bietet Potenzial für einen individuellen Ausbau - ob als Hobbyraum, Abstellfläche oder weiteres Wohnareal.

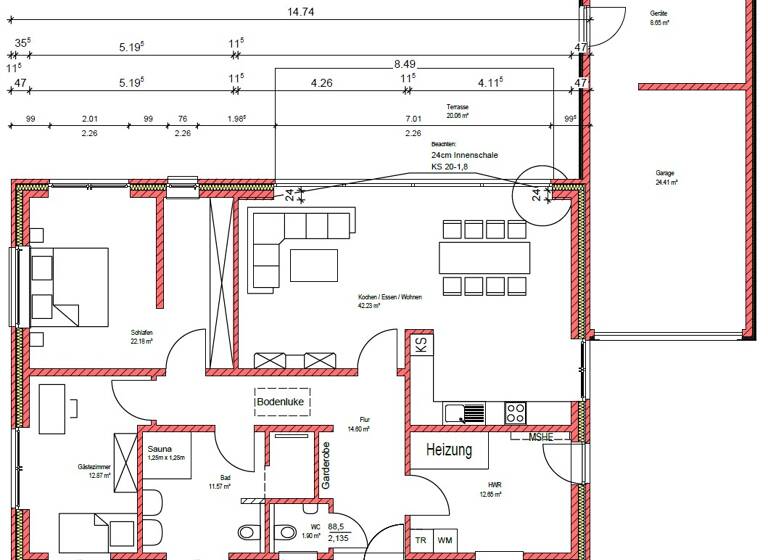
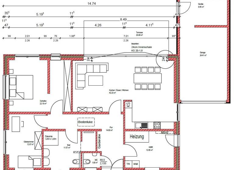
Grundrisse

Grundrisse
1 / 1

Bausubstanz und Energie

Möchtest du Details zum Energieverbrauch?info_energy_calculation-icon
  • Baujahr2025
  • Zustand der ImmobilieErstbezug
  • EnergieträgerLuft-/Wasser-Wärmepumpe
Immowelt logo

Preisdetails

Kaufpreis
699000 €
5.547,62 €/m²
Provision für Käufer
provisionsfrei
Weitere Preisinformationen
2 Garagenstellplätze
Geschätzte Gesamtkosten
747.930 €1
Kaufpreis
699.000 €
Notarkosten (1,5%)
10.485 €
Grunderwerbsteuer (5%)
34.950 €
Grundbucheintrag (0,5%)
3.495 €
1Der angezeigte Wert ist eine automatisch berechnete Schätzung von immowelt.
2Bei den Angaben handelt es sich um ortsübliche Werte. Individuelle Kosten können abweichen.

Lage

address-icon
Herzlake (49770)
Der Anbieter hat die genaue Adresse nicht freigegeben
Willkommen in Herzlake, einem charmanten Ort, der seinen Bewohnern und Besuchern eine perfekte Mischung aus ländlicher Idylle und modernem Lebensstil bietet. Gelegen in der Region Emsland in Niedersachsen, ist Herzlake nicht nur für seine malerische Landschaft bekannt, sondern auch für seine lebendige Gemeinschaft und seine vielfältigen Freizeitmöglichkeiten. Herzlake liegt eingebettet in eine reizvolle Umgebung aus Wäldern, Wiesen und Seen, die zu ausgedehnten Spaziergängen, Fahrradtouren und erholsamen Stunden in der Natur einladen. Der nahe gelegene See bietet nicht nur eine traumhafte Kulisse, sondern auch Gelegenheiten zum Angeln, Schwimmen und Wassersport.

Herzlake ist eine lebendige Gemeinde, die das ganze Jahr über eine Vielzahl von Veranstaltungen und Festen bietet. Ob traditionelle Volksfeste, kulturelle Events oder sportliche Wettbewerbe - hier ist für jeden Geschmack etwas dabei. Tauchen Sie ein in das bunte Treiben und erleben Sie die herzliche Gastfreundschaft der Einheimischen.

Trotz seiner ländlichen Lage bietet Herzlake eine hervorragende Infrastruktur und alle Annehmlichkeiten des modernen Lebens. Einkaufsmöglichkeiten, Schulen, Ärzte und Freizeiteinrichtungen sind gut erreichbar und tragen zum hohen Lebensstandard in der Region bei.

Dank seiner verkehrsgünstigen Lage ist Herzlake optimal an das regionale und überregionale Verkehrsnetz angebunden. Die B213 ermöglicht eine schnelle Anbindung an umliegende Städte und Ortschaften, während der nahegelegene Bahnhof für eine bequeme Anreise mit dem Zug sorgt.

Herzlake ist mehr als nur ein Ort - es ist ein Lebensgefühl. Hier finden Sie die perfekte Balance zwischen Natur und urbanem Leben, zwischen Tradition und Moderne. Erleben Sie die Schönheit und Vielfalt von Herzlake und lassen Sie sich von seiner einzigartigen Atmosphäre verzaubern.

Weitere Informationen

Sonstiges Wohnflächenaufteilung:

Erdgeschoss:
Flur ca. 14,30 qm
Wohnen / Essen ca. 41,75 qm
Schlafen/Ankleide ca. 21,90 qm
Gästezimmer ca. 12,64 qm
Bad ca. 11,19 qm
Gäste-WC ca. 1,79 qm
HWR ca. 12,44 qm
Terrasse ca. 9,90 qm (50%) Energiepass Energieausweis wird bei Besichtigung vorgelegt. Stichworte Garage vorhanden, Anzahl der Schlafzimmer: 2, Anzahl der Badezimmer: 1

Weitere Services

Lust auf eine Besichtigung?
Eine Frage zur Immobilie?
Nachricht hinzufügen
Mit der Nutzung der oben angegebenen Telefonnummer oder durch Klicken auf „Kontaktieren“ akzeptierst Du die Allgemeinen Nutzungsbedingungen, denen Du jederzeit widersprechen kannst. Weitere Informationen zum Datenschutz

Über den Anbieter

Haupstraße 97, 26892 Dörpen
partner badge
10 Jahre Partnerschaft
Herr Ralf Gründer
Herr Ralf GründerDein Kontakt
Online-ID: 25PMHRJMMB8Q
Referenznummer: 8309
Wie zufrieden bist du mit dieser Seite (nicht mit der Immobilie selbst)?