Version: 8.25.1Navigation überspringen
Kollitsch Immobilien GmbH
429.800 €
4 Zimmer  •  85,4 m²

Wohnung zum Kauf
429800 €
5.036 €/m²
4 Zimmer  •  85,4 m²

Neubauwohnungen! Das besondere Leben in der Harter Straße genießen.

Herzerfrischend. Gut Haben.
Wohnen am Puls der Zeit. In einer grünen Stadtoase im Südwesten von Graz. Wo ein lauschiger Innenhof zum Verweilen einlädt und große Gärten große Freude bereiten. Gut Haben ist ein Ort zum Verlieben. Zum Wohlfühlen und Bleiben. Ein bezahlbares Gut für unbezahlbare Momente.

- 4 Gebäude
- Etwa 42 Eigentumswohnungen
- Circa 45 bis 114 m² Wohnfläche
- Etwa 43 Tiefgaragenplätze


Einladende Architektur.
Gut Haben ist eine einladende Wohnanlage in der Harter Straße in Graz. Die vier Gebäude, in denen rund 42 gemütliche Eigentumswohnungen Raum finden, umschließen einen geschützten grünen Innenhof. Grünflächen und bewachsene Fassaden laden ein zum Verweilen. Zum Wohlfühlen und Genießen.

Ökologisch vorausgedacht.
Hier genießen Sie auch einige ökologische Details: von der Photovoltaikanlage auf dem Dach über die Bewässerung der Grünflächen mit eigenem Grundwasser bis zu den großen, überdachten Fahrradabstellflächen im Innenhof. Außerdem sind die Tiefgaragenplätze bereits E-Mobility-ready, sodass sie optional mit einer E-Ladestation versehen werden können.

Merkmale

  • Bezug: nach Fertigstellung
  • Personenaufzug
  • 44 Stellplätze: Außen-Stellplatz, 43 Tiefgaragenstellplätze
  • Garten

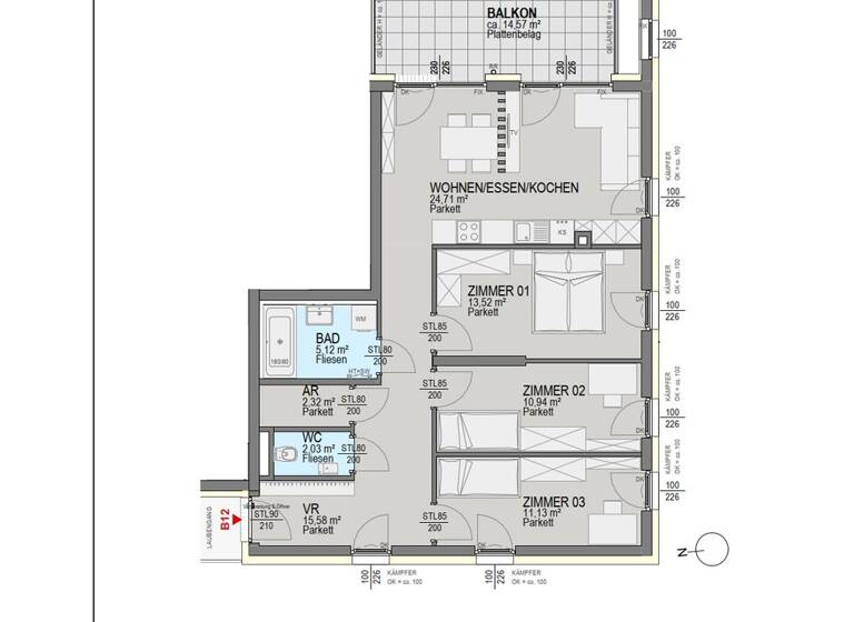
Grundrisse

Grundrisse
1 / 2

Realisiere Dein Projekt

Bausubstanz und Energie

Möchtest du Details zum Energieverbrauch?info_energy_calculation-icon
  • EnergieträgerFernwärme
MediumRectangleTop

Preisdetails

Kaufpreis
429800 €
5.035,74 €/m²
Provision für Käufer
Bitte beachte, das Angebot kann bei Vertragsabschluss die Zahlung einer Provision beinhalten. Weitere Informationen erhältst Du vom Anbieter.
Weitere Preisinformationen
1 Stellplatz
43 Tiefgaragenstellplätze

Lage

address-icon
StraßgangGraz (8054)
Der Anbieter hat die genaue Adresse nicht freigegeben
Ganz nah an einfach allem.
In Gut Haben ist gut leben. Auch weil sich in direkter Nachbarschaft alles befindet, was man täglich braucht: verschiedenste Einkaufsmöglichkeiten, Bildungs-, Gesundheits- und Freizeiteinrichtungen. Die Innenstadt ist mit dem Auto gute 15 Minuten entfernt. Und wer auspendelt, befindet sich im Nullkommanix auf der Autobahn.

Wandern. Biken. Natur genießen.
Mit dem Fahrrad erreicht man in ungefähr 8 Minuten das malerische Schloss St. Martin. Einen bildhübschen Ausgangspunkt für Wanderungen und Mountainbiketouren auf dem Buchkogel. Auf verschlungenen Waldwegen geht es hinauf. Zur Kronprinz-Rudolf-Warte. Zum Westblick. Zum Waldlehrpfad. Und mit etwas Glück trifft man unterwegs sogar ein paar Gämsen.

Die Stadt im Blick.
Rund um Gut Haben: Das besondere Leben genießen. Einen freudigen Blick auf Straßgang werfen. Und sehen, dass all die guten Dinge so nah liegen. Nur ein paar Herzschläge entfernt.

Weitere Informationen

Stichworte Fahrradraum, Balkon-Terrassen-Fläche: 14,57 m², Kellerfläche: 3,65 m², Bundesland: Steiermark Sonstiges/Wohnen: seniorengerechtes Wohnen

Weitere Services

Lust auf eine Besichtigung?
Eine Frage zur Immobilie?
Nachricht hinzufügen
Mit der Nutzung der oben angegebenen Telefonnummer oder durch Klicken auf „Kontaktieren“ akzeptierst Du die Allgemeinen Nutzungsbedingungen, denen Du jederzeit widersprechen kannst. Weitere Informationen zum Datenschutz

Über den Anbieter

Deutenhofenstraße 3, 9020 Klagenfurt am Wörthersee
Firma Kollitsch Immobilien GrazDein Kontakt
Online-ID: 25G3TU5USW28
Referenznummer: 005809_24
Kollitsch Immobilien GmbH
Kollitsch Immobilien GmbH
Nachricht hinzufügen
Mit der Nutzung der oben angegebenen Telefonnummer oder durch Klicken auf „Kontaktieren“ akzeptierst Du die Allgemeinen Nutzungsbedingungen, denen Du jederzeit widersprechen kannst. Weitere Informationen zum Datenschutz
MediumRectangleTop
MediumRectangleBottom
MediumRectangleTop
Wie zufrieden bist du mit dieser Seite (nicht mit der Immobilie selbst)?